409 FALCON LANE, Russell, Ontario, K4R1E5
MLS: X9517771 | House (Freehold)
$634,900



















Property Description
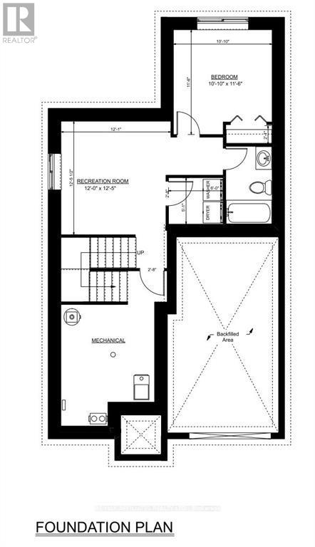
The Mayflower is sure to impress! The main floor consist of an open concept which included a large gourmet kitchen with walk-in pantry and central island, sun filled dinning room with easy access to the back deck, a large great room, and even a main floor office. The second level is just as beautiful with its 3 generously sized bedrooms, modern family washroom, second floor laundry facility and to complete the master piece a massive 3 piece master Ensuite with large integrated walk-in closet. The basement is unspoiled and awaits your final touches! Possibility of having the basement completed for an extra $32,500. This home is not built. Construction for August 2026. *Please note that the pictures are from the same Model but from a different home with some added upgrades.* (id:64974)
Quick Facts
- Property Type: House (Freehold)
- Bedrooms: 3 (3 above)
- Bathrooms: 3 (1 half)
- Ownership: Freehold
- Attached: No
- Parking: 4 spaces (Attached Garage, Garage, Inside Entry)
- Frontage: 33 ft (10.1 m)
Listing Provided by: REMAX BOARDWALK REALTY
Board: Ottawa Real Estate Board
Data provided via CREA DDF®.
Detailed Features
Interior & Systems
- Heating: Forced air, Natural gas
- Cooling: Air exchanger, None
- Basement: Unfinished, Full
- Appliances: Hood Fan
Exterior & Construction
- Exterior: Wood, Stone
- Foundation: Concrete
- Sewer: Sanitary sewer
- Water: Municipal water
Lot & Land
- Frontage: 33 ft (10.1 m)
- Zoning: Residential
Community & Neighbourhood
- Neighbourhood: 601 - Village of Russell
Room Details (7 rooms)
Listing Information
Listing History
Buy/Sell/Terminated/Expired listing history for 409 FALCON LANE, Russell, Ontario, K4R1E5
Location & Neighborhood
🚗 Travel times
Neighborhood Walkability
Mortgage & Cost Calculators
Nearby Homes (Within 2km)
Similar Homes
Similar Properties
No rental comparables found in this area.
Sold Comparables
Access to sold property data requires a registered and verified account with TRREB DDF integration.
Coming SoonRented Comparables
Access to rented property data requires a registered and verified account with TRREB DDF integration.
Coming Soon


















