405 - 363 SORAUREN AVENUE, Toronto (Roncesvalles), Ontario, M6R3C2
MLS: W12966862 | Apartment (Condo)
$1,039,900
































Property Description
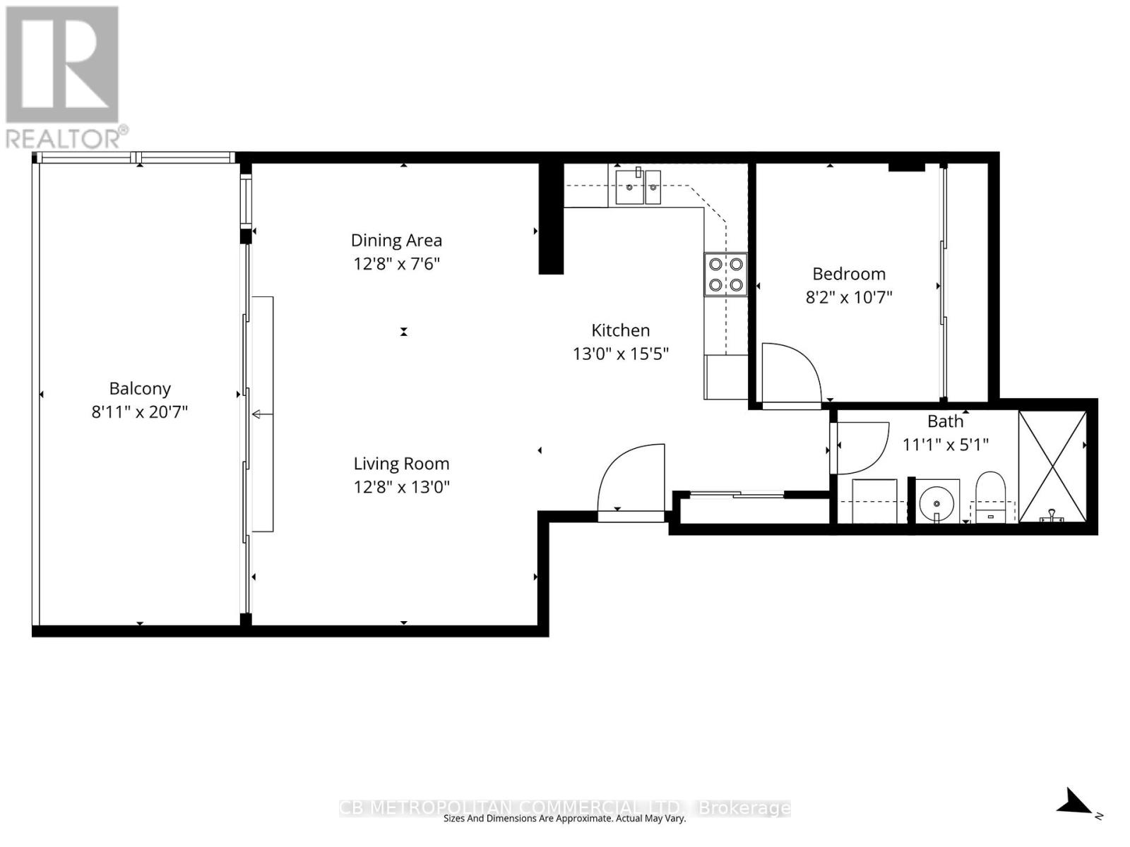
This Stunning Roncesvalles Loft At Robert Watson Will Not Disappoint! Exposed Bricks, Steel Beams, Gleaming Hardwood Floors, High Ceilings W/ Bright South Exposure. The Terrace and View is unmatched and must be seen. Industrial charm meets modern comfort. This large one bedroom, one bathroom Loft blends character with convenience, offering expansive windows that frame unobstructed views. Inside, the open-concept living, dining, and kitchen areas create a seamless space to entertain and unwind. Gorgeous Kitchen W/ Upgraded Stainless Steel Appliances, Stone Counters And Colourful Backsplash. Parking & Locker Are Included In This Wonderful Unit. Right Next Sorauren Park, Walk To Shops/Cafes/Butchers/Restaurants On Roncesvalles/Queen & Dundas West, Near By-Bike Lane-Easy Access To The Gardiner For Commuting. Unique Terraced Lofts such as this are Very Rare in Toronto. (id:64974)
Quick Facts
- Property Type: Apartment (Condo)
- Style: Loft
- Bedrooms: 1 (1 above)
- Bathrooms: 1
- Ownership: Condo/Strata
- Attached: Yes
- Parking: 1.0 space (Garage, Underground)
Costs
- Annual Taxes: $4,064.53
- Condo/HOA Fee: $816.67 / monthly
- Corp: Icon Property Management
- Includes: Common Area Maintenance, Heat, Water, Insurance, Parking
Listing Provided by: CB METROPOLITAN COMMERCIAL LTD.
Board: Toronto Regional Real Estate Board
Data provided via CREA DDF®.
Detailed Features
Interior & Systems
- Heating: Forced air, Natural gas
- Cooling: Central air conditioning
- Basement: None
- Appliances: Washer, Refrigerator, Stove, Dryer, Microwave
- Flooring: Hardwood
Exterior & Construction
- Style: Loft
- Exterior: Brick
Lot & Land
- Features: Carpet Free, In suite Laundry
Community & Neighbourhood
- Community: Community Centre, Pets Allowed With Restrictions
- Building: Storage - Locker, Exercise Centre, Party Room, Visitor Parking
- Neighbourhood: Roncesvalles
Room Details (5 rooms)
Listing Information
Listing History
MLS listing activity for 405 - 363 SORAUREN AVENUE, Toronto (Roncesvalles), Ontario, M6R3C2 — dates reflect when changes were recorded in the DDF
🚗 Travel times
Neighborhood Walkability
Mortgage & Cost Calculators
Nearby Homes ?Nearby Homes — Search CriteriaSearch Radius1 kmPrice Range±5%Match BedroomsYesMatch BathroomsYes

212 - 347 SORAUREN AVENUE, Toronto (Roncesvalles)
Condo - Apartment$2,950/mo
Listing Courtesy of RE/MAX PROFESSIONALS INC.

608 - 383 SORAUREN AVENUE, Toronto (Roncesvalles)
Condo - Apartment$589,900
$2,768/yr taxListing Courtesy of RARE REAL ESTATE

610 - 383 SORAUREN AVENUE, Toronto (Roncesvalles)
Condo - Apartment$669,880
$3,318/yr taxListing Courtesy of RARE REAL ESTATE

2065 DUNDAS STREET W, Toronto (Roncesvalles)
Single Family$5,600/mo
Listing Courtesy of CENTURY 21 LEADING EDGE REALTY INC.

283 LANSDOWNE AVENUE, Toronto (Little Portugal)
Row / Townhouse$1,190,000
$5,052/yr taxListing Courtesy of PROPERTY.CA INC.

UPPER - 13 SILVER AVENUE, Toronto (Roncesvalles)
Row / Townhouse$2,000/mo
Listing Courtesy of CHESTNUT PARK REAL ESTATE LIMITED

PH9 - 138 ST HELEN'S AVENUE, Toronto (Dufferin Grove)
Condo - Apartment$749,000
$3,733/yr taxListing Courtesy of BOSLEY REAL ESTATE LTD.

276 RONCESVALLES AVENUE, Toronto (High Park-Swansea)
House$2,195,000
$9,924/yr taxListing Courtesy of ROYAL LEPAGE SIGNATURE REALTY

209 - 36 HOWARD PARK AVENUE, Toronto (Roncesvalles)
Condo - Apartment$890,000
$3,786/yr taxListing Courtesy of BOSLEY REAL ESTATE LTD.

707 - 36 HOWARD PARK AVENUE, Toronto (Roncesvalles)
Condo - Apartment$888,000
$3,704/yr taxListing Courtesy of SAGE REAL ESTATE LIMITED

510 - 36 HOWARD PARK AVENUE, Toronto (Roncesvalles)
Condo - Apartment$575,000
$2,790/yr taxListing Courtesy of ROYAL LEPAGE TERREQUITY REALTY

219 - 38 HOWARD PARK AVENUE, Toronto (Roncesvalles)
Condo - Apartment$550,000
$2,602/yr taxListing Courtesy of ROYAL LEPAGE SIGNATURE REALTY

TH155 - 38 HOWARD PARK AVENUE, Toronto (Roncesvalles)
Condo - Row / Townhouse$5,250/mo
Listing Courtesy of HOMELIFE/MIRACLE REALTY LTD

36 GOLDEN AVENUE, Toronto (Roncesvalles)
Row / Townhouse$1,299,000
$5,264/yr taxListing Courtesy of CENTURY 21 REGAL REALTY INC.

90 GARDEN AVENUE, Toronto (Roncesvalles)
House$3,880,000
$10,504/yr taxListing Courtesy of RE/MAX HALLMARK REALTY LTD.
Similar Homes ?Similar Homes — Search CriteriaSearch Radius5 kmPrice Range±5%Match Home TypeYesMatch BedroomsYes

217 - 637 LAKE SHORE BOULEVARD W, Toronto (Niagara)
Condo - Apartment$999,000
$3,302/yr taxListing Courtesy of RIGHT AT HOME REALTY

501 - 133 HAZELTON AVENUE, Toronto (Annex)
Condo - Apartment$989,909
$6,033/yr taxListing Courtesy of RE/MAX ULTIMATE REALTY INC.

35 CAVERHILL CRESCENT, Middlesex Centre (Komoka)
House$1,039,900
$5,229/yr taxListing Courtesy of Toronto Regional Real Estate Board

3907 - 805 CARLING AVENUE, Ottawa
Condo - Apartment$1,039,900
$8,487/yr taxListing Courtesy of RE/MAX HALLMARK PILON GROUP REALTY

127 ELFIN GROVE, Ottawa
House$1,039,900
$5,961/yr taxListing Courtesy of INNOVATION REALTY LTD.

1114 LINDSAY DRIVE, Oakville (GA Glen Abbey)
Row / Townhouse$1,039,900
$3,614/yr taxListing Courtesy of RE/MAX ABOUTOWNE REALTY CORP.

1114 LINDSAY Drive, Oakville
Row / Townhouse$1,039,900
$3,614/yr taxListing Courtesy of RE/MAX Aboutowne Realty Corp.

3 AGINCOURT ROAD, Vaughan (West Woodbridge)
House$1,039,900
$3,751/yr taxListing Courtesy of HOMELIFE/MIRACLE REALTY LTD

975 RAY ROAD, Centre Hastings
House$1,039,900
$8,355/yr taxListing Courtesy of ROYAL LEPAGE FRANK REAL ESTATE

4 MANORCREST STREET, Brampton (Central Park)
House$1,039,900
$6,375/yr taxListing Courtesy of ONE PERCENT REALTY LTD.

79 ELIZABETH STREET, Oshawa (McLaughlin)
House$1,039,900
$9,345/yr taxListing Courtesy of Royal LePage Our Neighbourhood Realty

126 FRASER CRESCENT, Lambton Shores (Forest)
House$1,039,900
Listing Courtesy of KELLER WILLIAMS LIFESTYLES

158 MUMBAI DRIVE, Markham (Middlefield)
Row / Townhouse$1,039,990
Listing Courtesy of INTERCITY REALTY INC.

182 MUMBAI DRIVE, Markham (Middlefield)
Row / Townhouse$1,039,990
Listing Courtesy of INTERCITY REALTY INC.

247 KNAPTON DRIVE, Newmarket (Woodland Hill)
House$1,039,999
$5,632/yr taxListing Courtesy of RE/MAX WEST REALTY INC.
Similar Properties ?Active Comparables — Search CriteriaSearch Radius2 kmPrice Range±5%Match Home TypeYesMatch BedroomsYes
No active comparables found in this area.

MAIN - 52 CHURCHILL AVENUE, Toronto (Trinity-Bellwoods)
House$3,700/mo
Listing Courtesy of RE/MAX PLUS CITY TEAM INC.

B - 41 ROLYAT STREET, Toronto (Trinity-Bellwoods)
House$3,700/mo
Listing Courtesy of RE/MAX PROFESSIONALS INC.

212 - 347 SORAUREN AVENUE, Toronto (Roncesvalles)
Condo - Apartment$2,950/mo
Listing Courtesy of RE/MAX PROFESSIONALS INC.

3 - 299 PACIFIC AVENUE, Toronto (Junction Area)
House$2,895/mo
Listing Courtesy of RE/MAX WEST REALTY INC.

LANEWAY - 429 BROCK AVENUE, Toronto (Dufferin Grove)
House$2,850/mo
Listing Courtesy of LANDLORD REALTY INC.

206 - 1239 DUNDAS STREET W, Toronto (Trinity-Bellwoods)
Condo - Apartment$2,600/mo
Listing Courtesy of RE/MAX CONDOS PLUS CORPORATION

211 - 284 ST. HELENS AVENUE, Toronto (Dufferin Grove)
Condo - Apartment$2,500/mo
Listing Courtesy of BOSLEY REAL ESTATE LTD.

207 - 758 DOVERCOURT ROAD, Toronto (Dovercourt-Wallace Emerson-Junction)
Condo - Apartment$2,500/mo
Listing Courtesy of SUTTON GROUP-ADMIRAL REALTY INC.

415 - 5 LAKEVIEW AVENUE, Toronto (Trinity-Bellwoods)
Condo - Apartment$2,400/mo
Listing Courtesy of EXP REALTY

1913 - 150 SUDBURY STREET, Toronto (Palmerston-Little Italy)
Condo - Apartment$2,400/mo
Listing Courtesy of ROYAL LEPAGE SIGNATURE REALTY

1712 - 135 EAST LIBERTY STREET, Toronto (Niagara)
Condo - Apartment$2,400/mo
Listing Courtesy of SAGE REAL ESTATE LIMITED

1205 - 20 MINOWAN MIIKAN LANE, Toronto (Little Portugal)
Condo - Apartment$2,400/mo
Listing Courtesy of PROPERTY.CA INC.

MAIN - 786 GLADSTONE AVENUE, Toronto (Dovercourt-Wallace Emerson-Junction)
House$2,399/mo
Listing Courtesy of KELLER WILLIAMS REFERRED URBAN REALTY

409 - 758 DOVERCOURT ROAD, Toronto (Dovercourt-Wallace Emerson-Junction)
Condo - Apartment$2,380/mo
Listing Courtesy of HOMELIFE NEW WORLD REALTY INC.

N210 - 1169 QUEEN STREET W, Toronto (Little Portugal)
Single Family$2,350/mo
Listing Courtesy of ROYAL LEPAGE SIGNATURE REALTY
Sold Comparables
Access to sold property data requires a registered and verified account with TRREB DDF integration.
Coming SoonRented Comparables
Access to rented property data requires a registered and verified account with TRREB DDF integration.
Coming SoonBook a Viewing
405 - 363 SORAUREN AVENUE, Toronto (Roncesvalles), Ontario, M6R3C2
