404 - 1101 PHARMACY AVENUE, Toronto (Wexford-Maryvale), Ontario, M1R2H2
MLS: E12594096 | Apartment (Condo)
$449,900









































Property Description
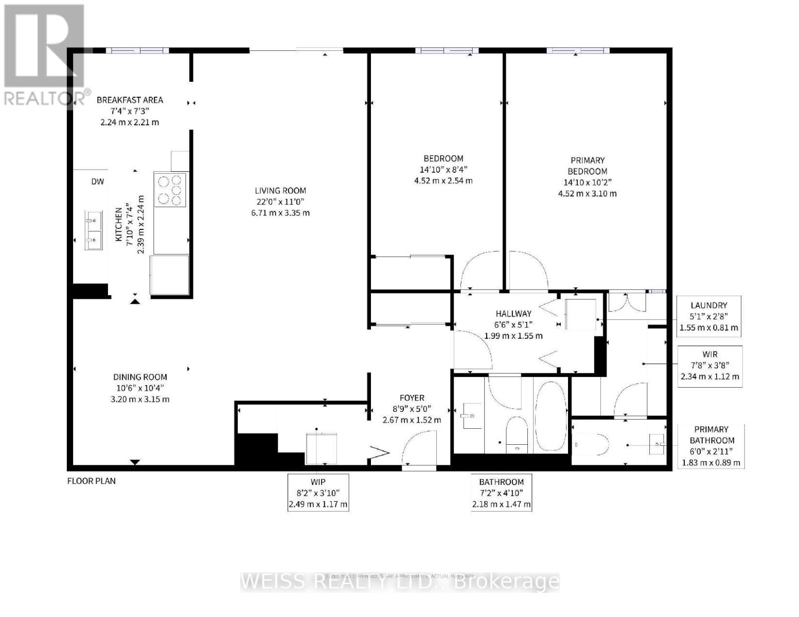
Large 2 Bdrm open concept living/dining area with eat-in kitchen and en-suite laundry. Filled with natural light and oversized master bedroom with walk in closet and ensuite. Quiet well-maintained building with great amenities. Underground parking space and locker included. Location, Location!!! Steps to schools, parks, shopping and TTC. Must be seen!!! (id:64974)
Quick Facts
- Property Type: Apartment (Condo)
- Bedrooms: 2 (2 above)
- Bathrooms: 2 (1 half)
- Ownership: Condo/Strata
- Attached: Yes
- Parking: 1 space (Garage, Underground)
Costs
- Annual Taxes: $1,478.01
- Condo/HOA Fee: $858.00 / monthly
- Corp: Ace Condominium Management Inc.
- Includes: Common Area Maintenance, Heat, Electricity, Water, Insurance
Listing Provided by: WEISS REALTY LTD.
Board: Toronto Regional Real Estate Board
Data provided via CREA DDF®.
Detailed Features
Interior & Systems
- Heating: Baseboard heaters, Other
- Cooling: Window air conditioner
- Basement: None
- Appliances: Washer, Refrigerator, Dishwasher, Stove, Dryer, Freezer
Exterior & Construction
- Exterior: Brick
- Foundation: Poured Concrete
Lot & Land
- Features: Balcony, Carpet Free
Community & Neighbourhood
- Community: Pets Allowed With Restrictions
- Building: Storage - Locker, Exercise Centre, Party Room, Sauna, Visitor Parking
- Neighbourhood: Wexford-Maryvale
Room Details (5 rooms)
Listing Information
Listing History
Buy/Sell/Terminated/Expired listing history for 404 - 1101 PHARMACY AVENUE, Toronto (Wexford-Maryvale), Ontario, M1R2H2
Location & Neighborhood
🚗 Travel times
Neighborhood Walkability
Mortgage & Cost Calculators
Nearby Homes (Within 2km)
Similar Homes
Similar Properties
No rental comparables found in this area.
Sold Comparables
Access to sold property data requires a registered and verified account with TRREB DDF integration.
Coming SoonRented Comparables
Access to rented property data requires a registered and verified account with TRREB DDF integration.
Coming Soon






















