4 OXFORD STREET, Ottawa, Ontario, K1Y2R7
MLS: X12585258 | Vacant Land
$599,900










Property Description
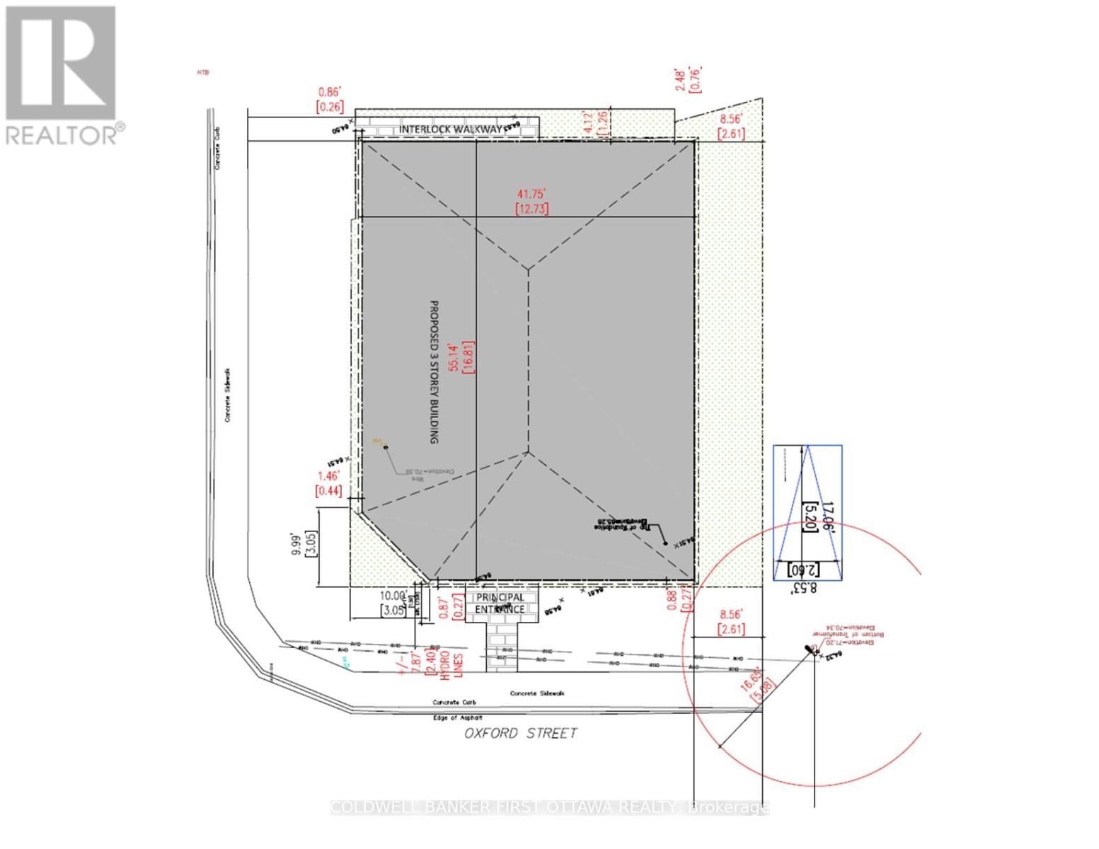
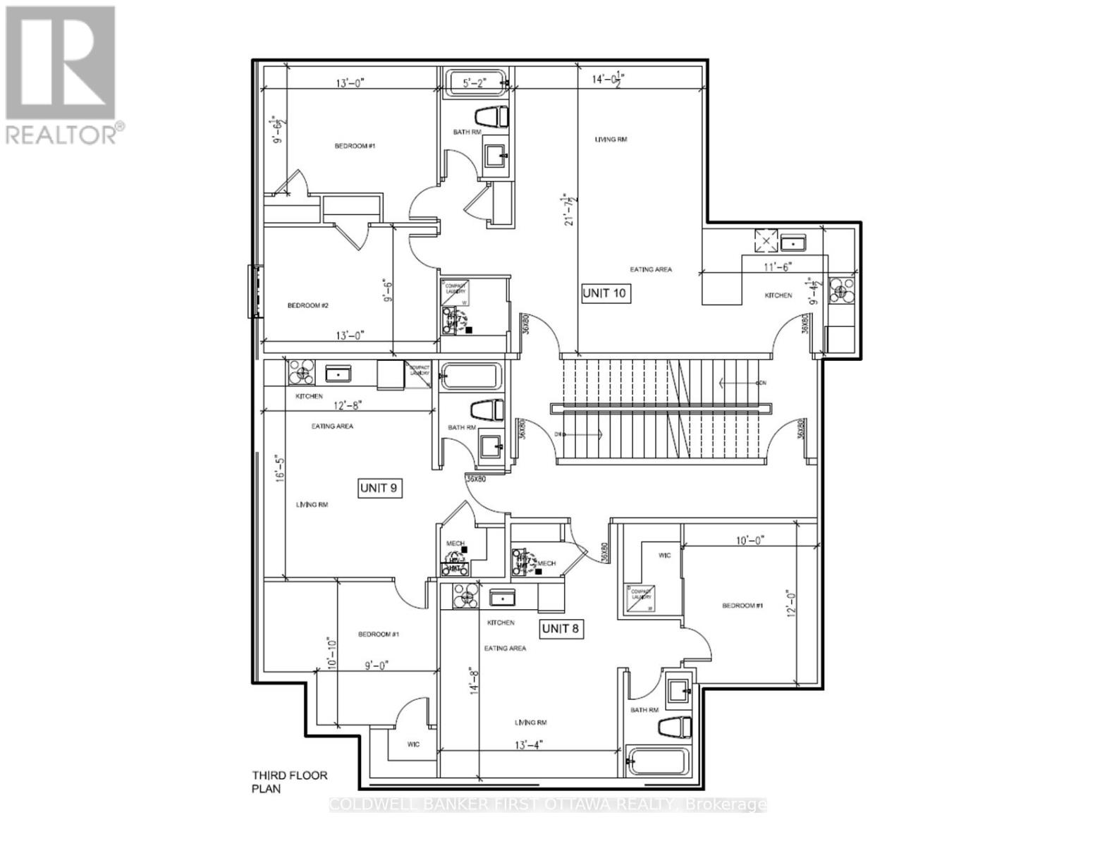
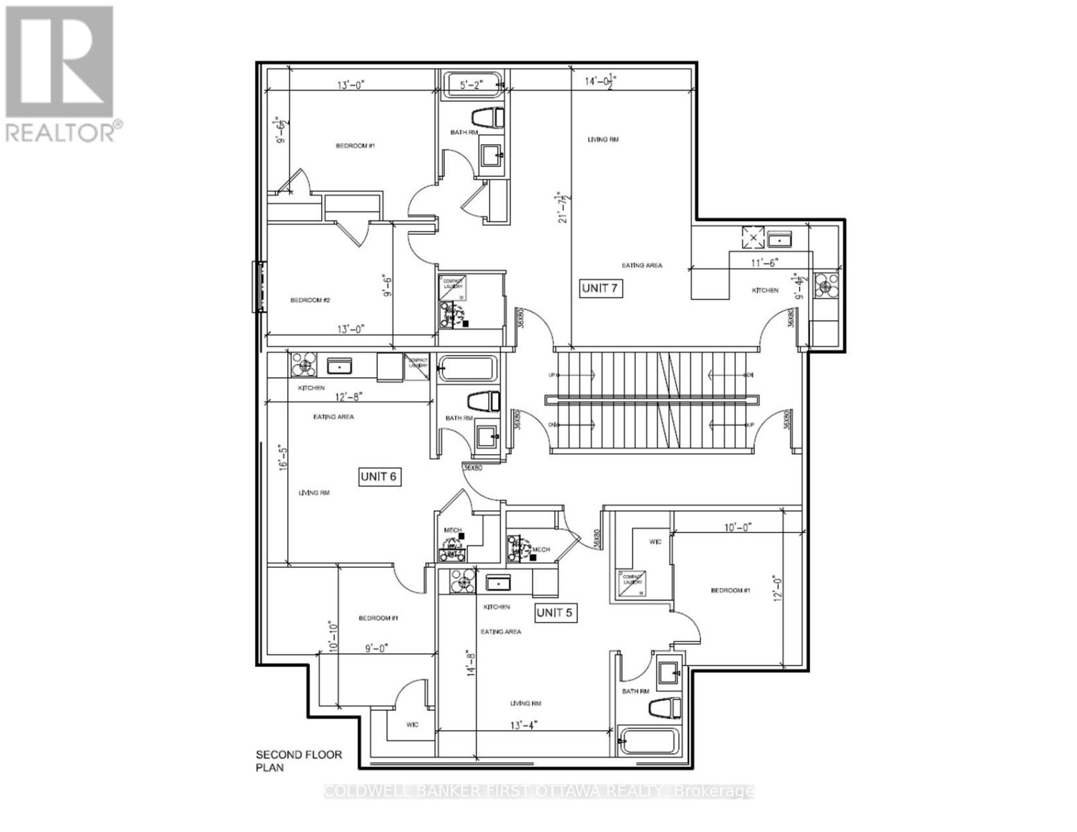
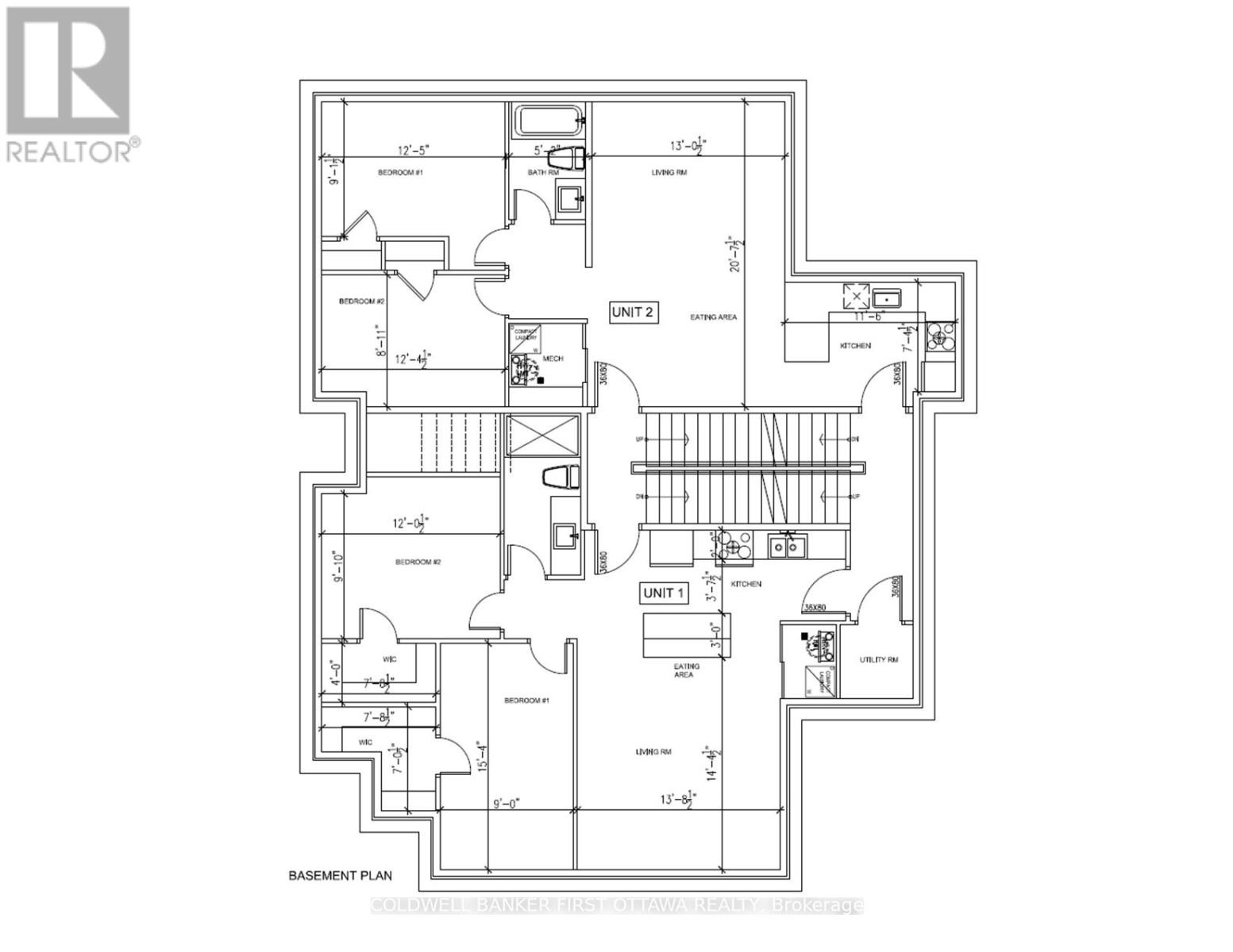
FABULOUS MULTI UNIT DEVELOPMENT OPPORTUNITY IN PRIME HINTONBURG! Corner lot with R4UB zoning steps to LRT, Wellington Village and Westboro. Don't let this small lot size fool you. Conceptual drawings in place for 10 unit building (6 x 2 bedroom, 4 X 1 bedroom) with 2 ground floor accessible units. Vendor is a reputable builder and can also build out for you. (id:64974)
Quick Facts
- Property Type: Vacant Land
- Bedrooms: None
- Bathrooms: 0
- Frontage: 51 ft (15.6 m)
Costs
- Annual Taxes: $3,800.00
Listing Provided by: COLDWELL BANKER FIRST OTTAWA REALTY
Board: Ottawa Real Estate Board
Data provided via CREA DDF®.
Detailed Features
Interior & Systems
- Utilities: Sewer, Electricity, Cable
Lot & Land
- Frontage: 51 ft (15.6 m)
Community & Neighbourhood
- Neighbourhood: 4202 - Hintonburg
Listing Information
Listing History
Buy/Sell/Terminated/Expired listing history for 4 OXFORD STREET, Ottawa, Ontario, K1Y2R7
Location & Neighborhood
🚗 Travel times
Neighborhood Walkability
Mortgage & Cost Calculators
Nearby Homes (Within 2km)
Similar Homes
Similar Properties
No rental comparables found in this area.
Sold Comparables
Access to sold property data requires a registered and verified account with TRREB DDF integration.
Coming SoonRented Comparables
Access to rented property data requires a registered and verified account with TRREB DDF integration.
Coming Soon

































