393 SECOND STREET, Collingwood, Ontario, L9Y1G9
MLS: S12918202 | Multi-Family
$998,800






































Property Description
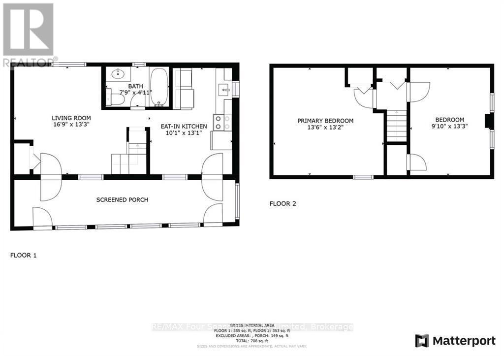
EXCEPTIONAL TRIPLEX INVESTMENT Opportunity in Collingwood! Discover a prime investment opportunity with this well-maintained triplex generating an impressive annual rental income of $61,800 ($5,150/month). Tenants pay all utilities and snow removal, maximizing your return. This property features three self-contained units, each offering 2 bedrooms and a 4-piece bathroom, all separately metered for convenience and efficiency. Situated on a generous 97 x 133 ft lot in a highly desirable location, this property offers incredible potential for future development. Under current Town of Collingwood guidelines there is potential for *Severance to create 2 lots *Development of up to four units on each lot *Construction of a garage or coach house. *Building two homes on newly created lots *Conversion to a single-family residence or custom dream home (Buyer to complete due diligence to confirm their intended use). The property has had numerous upgrades, including: *Durable metal roof and asphalt roof on porch 2025 (Apartment 3 ) *Updated electrical (breakers for two units) *Some newer windows and vinyl siding *Updated flooring *Newer appliances *Three owned hot water heaters *Stylish designer paint throughout. With A++ tenants already in place, this is a turnkey investment ideal for both seasoned investors and those entering the market. Located within walking distance to historic downtown Collingwood, you'll enjoy easy access to shops, restaurants, theatres, and the beautiful shores of Georgian Bay. Plus, you're just a short drive to Blue Mountain Village, Thornbury, and the world's longest freshwater beach. A rare opportunity in a thriving rental market-don't miss out! (id:64974)
Quick Facts
- Property Type: Multi-Family
- Bedrooms: None
- Bathrooms: None
- Living Area: 2,174 sq ft (202.0 m²)
- Attached: Yes
- Frontage: 96 ft (29.3 m)
Costs
- Annual Taxes: $3,706.65 (2025)
Listing Provided by: RE/MAX Four Seasons Realty Limited
Board: OnePoint Association of REALTORS®
Data provided via CREA DDF®.
Detailed Features
Interior & Systems
- Heating: Baseboard heaters
- Cooling: None
- Appliances: Washer, Dryer, Water Heater
Exterior & Construction
- Water: Municipal water
Lot & Land
- Frontage: 96 ft (29.3 m)
- Zoning: R2
Community & Neighbourhood
- Neighbourhood: Collingwood
Listing Information
Listing History
Buy/Sell/Terminated/Expired listing history for 393 SECOND STREET, Collingwood, Ontario, L9Y1G9
Location & Neighborhood
🚗 Travel times
Neighborhood Walkability
Mortgage & Cost Calculators
Nearby Homes (Within 2km)
Similar Homes
Similar Properties
No rental comparables found in this area.
Sold Comparables
Access to sold property data requires a registered and verified account with TRREB DDF integration.
Coming SoonRented Comparables
Access to rented property data requires a registered and verified account with TRREB DDF integration.
Coming Soon

























