391 BARRETT ROAD, Stirling-Rawdon (Rawdon Ward), Ontario, K0K3E0
MLS: X12916128 | House (Freehold)
$500,000

















































Property Description
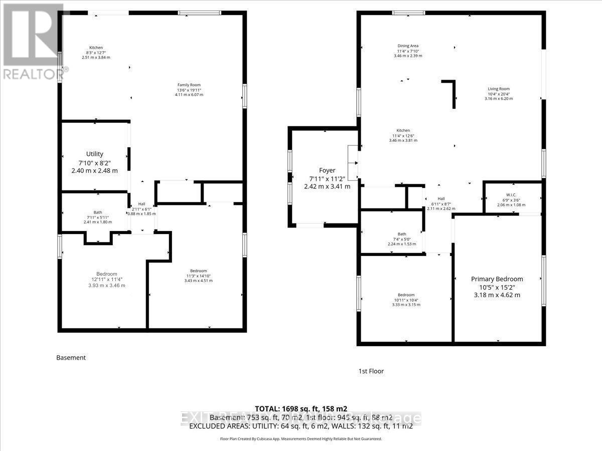
This charming 4-bedroom, 2-bathroom bungalow situated on a spacious lot of just over one acre, and offers a practical and versatile layout, ideal for multi-generational families or those seeking a dedicated home workspace. The main floor features a functional kitchen equipped with a built-in wall oven and cooktop, providing ample counter space for daily use. The living room serves as the heart of the home, with glass doors that open directly onto the back deck, offering a seamless transition to the outdoor space. Two well-sized bedrooms and a full bathroom with electric in-floor heating complete this level. The lower level is fully finished and configured as a self-contained in-law suite or secondary unit. This space includes its own kitchen, two additional bedrooms, and a full bathroom, making it an excellent option for extended family or guests. A significant benefit of this layout is the separate driveway, which provides private, convenient access for the lower level without interfering with the main parking area. A standout feature is the detached 20' x 28' shop. Constructed with durable, insulated steel panels and featuring heated floors, the shop offers a comfortable and functional environment for projects or storage regardless of the season. With two distinct driveways and a flexible floor plan, this property is well suited for a variety of living and working arrangements. (id:64974)
Quick Facts
- Property Type: House (Freehold)
- Style: Bungalow
- Bedrooms: 3 (2 above, 1 below)
- Bathrooms: 2
- Ownership: Freehold
- Attached: No
- Parking: 12.0 spaces (Detached Garage, Garage)
- Frontage: 285 ft (86.9 m)
Costs
- Annual Taxes: $3,235.00 (2026)
Listing Provided by: EXIT REALTY GROUP
Board: Central Lakes Association of REALTORS®
Data provided via CREA DDF®.
Detailed Features
Interior & Systems
- Heating: Forced air, Propane
- Cooling: None
- Basement: Finished, Walk out, N/A
- Appliances: Washer, Refrigerator, Dishwasher, Stove, Dryer, Water Heater
- Utilities: Electricity, Wireless
- Security: Smoke Detectors
Exterior & Construction
- Style: Bungalow
- Exterior: Vinyl siding
- Foundation: Block
- Sewer: Septic System
- Water: Drilled Well
Lot & Land
- Frontage: 285 ft (86.9 m)
- Features: Irregular lot size
- Zoning: RR
Community & Neighbourhood
- Community: School Bus, Community Centre
- Neighbourhood: Rawdon Ward
Room Details (13 rooms)
Listing Information
Listing History
MLS listing activity for 391 BARRETT ROAD, Stirling-Rawdon (Rawdon Ward), Ontario, K0K3E0 — dates reflect when changes were recorded in the DDF
🚗 Travel times
Neighborhood Walkability
Mortgage & Cost Calculators
Similar Homes ?Similar Homes — Search CriteriaSearch Radius5 kmPrice Range±5%Match Home TypeYesMatch BedroomsYes

33 FRANKFORD ROAD, Stirling-Rawdon (Stirling Ward)
House$500,000
$3,166/yr taxListing Courtesy of ROYAL HERITAGE REALTY LTD.

1107 - 21 OVERLEA BOULEVARD, Toronto (Thorncliffe Park)
Condo - Apartment$500,000
$1,353/yr taxListing Courtesy of TRUSTWELL REALTY INC.

#G01 - 80 HORSESHOE BOULEVARD, Oro-Medonte (Horseshoe Valley)
Condo - Apartment$500,000
$3,501/yr taxListing Courtesy of RE/MAX HALLMARK CHAY REALTY

146 ELGIN STREET W, Arnprior
House$500,000
$3,405/yr taxListing Courtesy of SOLID ROCK REALTY

3817 Howard AVENUE Unit# 403, Windsor
Condo - Apartment$500,000
Listing Courtesy of KW SIGNATURE

401 - 2 WESTNEY ROAD N, Ajax (Central West)
Condo - Apartment$500,000
$2,962/yr taxListing Courtesy of COLDWELL BANKER THE REAL ESTATE CENTRE

26 PEDEN BOULEVARD, Brockville
House$500,000
$3,387/yr taxListing Courtesy of ONE PERCENT REALTY LTD.

2405 - 633 BAY STREET, Toronto (Bay Street Corridor)
Condo - Apartment$500,000
$3,506/yr taxListing Courtesy of FREEMAN REAL ESTATE LTD.

20 FIELDSTONE Walk, New Hamburg
House$500,000
$2,400/yr taxListing Courtesy of RED AND WHITE REALTY INC.

909 - 18 SPRING GARDEN AVENUE, Toronto (Willowdale East)
Condo - Apartment$500,000
$2,549/yr taxListing Courtesy of ZOLO REALTY

1403 - 21 BALMUTO STREET, Toronto (Bay Street Corridor)
Condo - Apartment$500,000
$2,737/yr taxListing Courtesy of FOREST HILL REAL ESTATE INC.

633 - 525 WILSON AVENUE, Toronto (Clanton Park)
Condo - Apartment$500,000
$2,059/yr taxListing Courtesy of BOSLEY REAL ESTATE LTD.

213 - 5005 HARVARD ROAD, Mississauga (Churchill Meadows)
Condo - Apartment$500,000
$3,339/yr taxListing Courtesy of RE/MAX REAL ESTATE CENTRE INC.

1003 - 2033 KENNEDY ROAD, Toronto (Agincourt South-Malvern West)
Condo - Apartment$500,000
$3,075/yr taxListing Courtesy of RE/MAX COMMUNITY REALTY INC.

229 - 99 EAGLE ROCK WAY, Vaughan
Condo - Apartment$500,000
$2,257/yr taxListing Courtesy of RE/MAX WEST REALTY INC.
Similar Properties ?Active Comparables — Search CriteriaSearch Radius2 kmPrice Range±5%Match Home TypeYesMatch BedroomsYes
No active comparables found in this area.
No rental comparables found in this area.
Sold Comparables
Access to sold property data requires a registered and verified account with TRREB DDF integration.
Coming SoonRented Comparables
Access to rented property data requires a registered and verified account with TRREB DDF integration.
Coming SoonBook a Viewing
391 BARRETT ROAD, Stirling-Rawdon (Rawdon Ward), Ontario, K0K3E0
