390 MAIN STREET, King (Schomberg), Ontario, L0G1T0
MLS: N12864830 | House (Freehold)
$1,950,000




















































Property Description
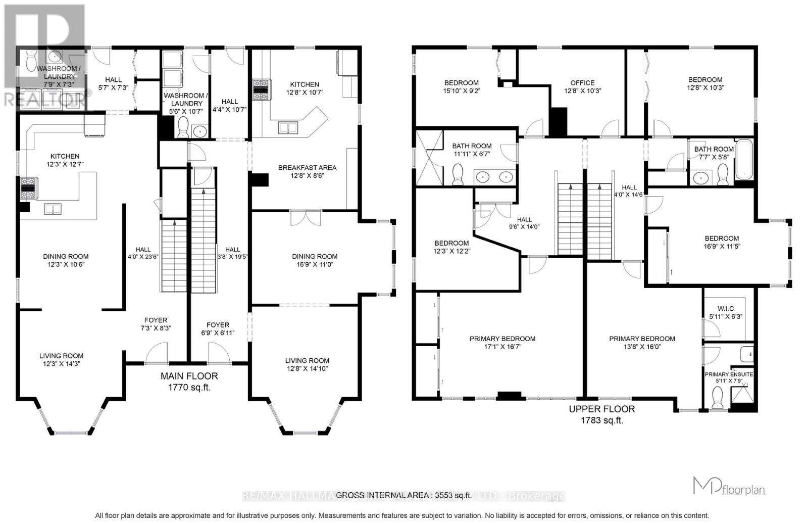
MUST BE SEEN! Wonderfully decorated and updated throughout, just the right touch of modern and charming. Great opportunity for extended family or investment, live in one half and rent the other half. TWO...main floor Kitchens, living rooms, dining rooms, 2 Main floor laundry rooms, and seven bedrooms upstairs! Majestic over one-acre manicured lot with large Eating and Entertaining area/Patio and gardens, lot backs onto protected land No homes behind! Walk to quaint shops, restaurants/patios on Historic Main Street. The home is currently being used as a single-family dwelling; however, it can easily be used as two separate homes with two front and back entrances. Many Possibilities. (id:64974)
Quick Facts
- Property Type: House (Freehold)
- Bedrooms: 7 (7 above)
- Bathrooms: 5 (2 half)
- Ownership: Freehold
- Attached: No
- Parking: 18 spaces (Detached Garage, Garage)
- Frontage: 94 ft (28.6 m)
Costs
- Annual Taxes: $7,453.87
Listing Provided by: RE/MAX HALLMARK YORK GROUP REALTY LTD.
Board: Toronto Regional Real Estate Board
Data provided via CREA DDF®.
Detailed Features
Interior & Systems
- Heating: Radiant heat, Other
- Cooling: Window air conditioner
- Basement: Unfinished, N/A
- Appliances: Central Vacuum, Barbeque, Dishwasher, Dryer, Two stoves, Two Washers, Garage door opener remote(s), Two Refrigerators
- Flooring: Hardwood, Slate
- Utilities: Sewer, Electricity
Exterior & Construction
- Exterior: Brick, Stone
- Foundation: Stone, Concrete
- Sewer: Sanitary sewer
- Water: Municipal water
Lot & Land
- Frontage: 94 ft (28.6 m)
- Features: Ravine, Rolling, Backs on greenbelt, Carpet Free, In-Law Suite
- View: View
- Zoning: Residential R1B,R1B SPA
Community & Neighbourhood
- Community: Community Centre
- Neighbourhood: Schomberg
Room Details (13 rooms)
Listing Information
Listing History
Buy/Sell/Terminated/Expired listing history for 390 MAIN STREET, King (Schomberg), Ontario, L0G1T0
Location & Neighborhood
🚗 Travel times
Neighborhood Walkability
Mortgage & Cost Calculators
Nearby Homes (Within 2km)
Similar Homes
Similar Properties
No rental comparables found in this area.
Sold Comparables
Access to sold property data requires a registered and verified account with TRREB DDF integration.
Coming SoonRented Comparables
Access to rented property data requires a registered and verified account with TRREB DDF integration.
Coming Soon
























