39 MOWAT AVENUE, Kingston (Central City West), Ontario, K7M8Y8
MLS: X12817964 | Townhouse (Freehold)
$765,000







































Property Description
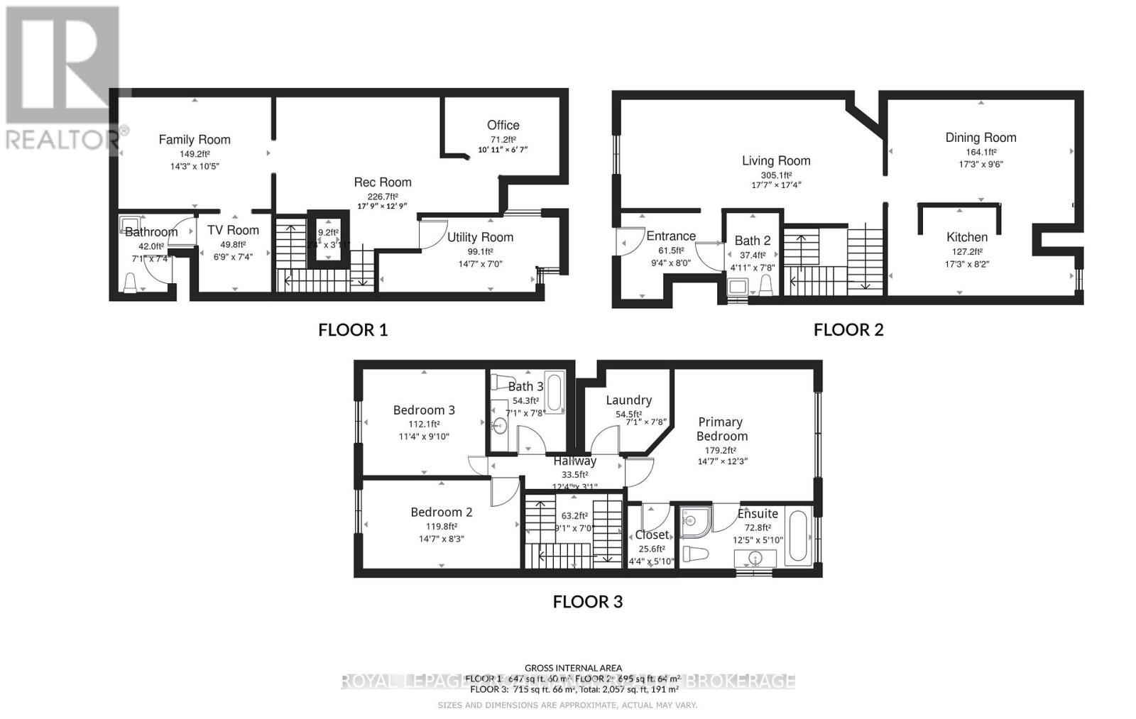
Welcome to 39 Mowat Avenue, a stone two-story luxury townhome located in the heart of Kingston's historic Portsmouth Village, Just steps from Portsmouth Olympic Harbour, Lake Ontario, and the city's 8 Km waterfront trail, this property offers a lifestyle defined by both convenience and prestige. Inside, the main floor is carpet free and features 9-foot ceilings, a bright, inviting layout where the dining room flows seamlessly into a gracious living room, warmed by a charming gas fireplace. The galley kitchen is appointed with quartz countertops, ample cabinetry for storage, and custom blinds throughout the entire home. From the foyer, a convenient half bath also serves the main level. Upstairs, you'll find three generous bedrooms, including a primary suite complete with a walk-in closet and a private ensuite bath, complemented by a second full bathroom to serve the additional bedrooms complete with second floor laundry. The finished basement extends your living space, offering flexibility for a recreation room, home office, or guest accommodations, and includes another bathroom for added convenience. Outdoors, the home is distinguished by a front custom sculpture designed by renowned Canadian artist John Boxtel, a unique feature that adds cultural prestige and character. This home also features a private backyard courtyard, a single detached garage and additional parking space. With unbeatable location near Queen's University, Providence Care hospital, ease of access to Kingston's downtown core and waterfront leisure, this property is ideal for retirees, working professionals, and professors seeking the rare combination of luxury living and historic charm. (id:64974)
Quick Facts
- Property Type: Townhouse (Freehold)
- Bedrooms: 3 (3 above)
- Bathrooms: 4 (2 half)
- Ownership: Freehold
- Attached: Yes
- Fireplaces: Yes
- Parking: 2 spaces (Detached Garage, Garage)
- Frontage: 20 ft (6 m)
Costs
- Annual Taxes: $7,184.76
Listing Provided by: ROYAL LEPAGE PROALLIANCE REALTY, BROKERAGE
Board: Kingston & Area Real Estate Association
Data provided via CREA DDF®.
Detailed Features
Interior & Systems
- Heating: Forced air, Natural gas
- Cooling: Central air conditioning
- Basement: Finished, Full
- Appliances: Washer, Refrigerator, Dishwasher, Stove, Dryer, Window Coverings, Garage door opener remote(s)
Exterior & Construction
- Exterior: Brick
- Foundation: Concrete
- Fencing: Fully Fenced
- Sewer: Sanitary sewer
- Water: Municipal water
Lot & Land
- Frontage: 20 ft (6 m)
- Features: Flat site
Community & Neighbourhood
- Building: Fireplace(s)
- Neighbourhood: 18 - Central City West
Room Details (16 rooms)
Listing Information
Listing History
Buy/Sell/Terminated/Expired listing history for 39 MOWAT AVENUE, Kingston (Central City West), Ontario, K7M8Y8
Location & Neighborhood
🚗 Travel times
Neighborhood Walkability
Mortgage & Cost Calculators
Nearby Homes (Within 2km)
Similar Homes
Similar Properties
No rental comparables found in this area.
Sold Comparables
Access to sold property data requires a registered and verified account with TRREB DDF integration.
Coming SoonRented Comparables
Access to rented property data requires a registered and verified account with TRREB DDF integration.
Coming Soon
























