39 HARDIES ROAD, McKellar, Ontario, P2A0B5
MLS: X12986410 | Agriculture
$1,275,000


















































Property Description
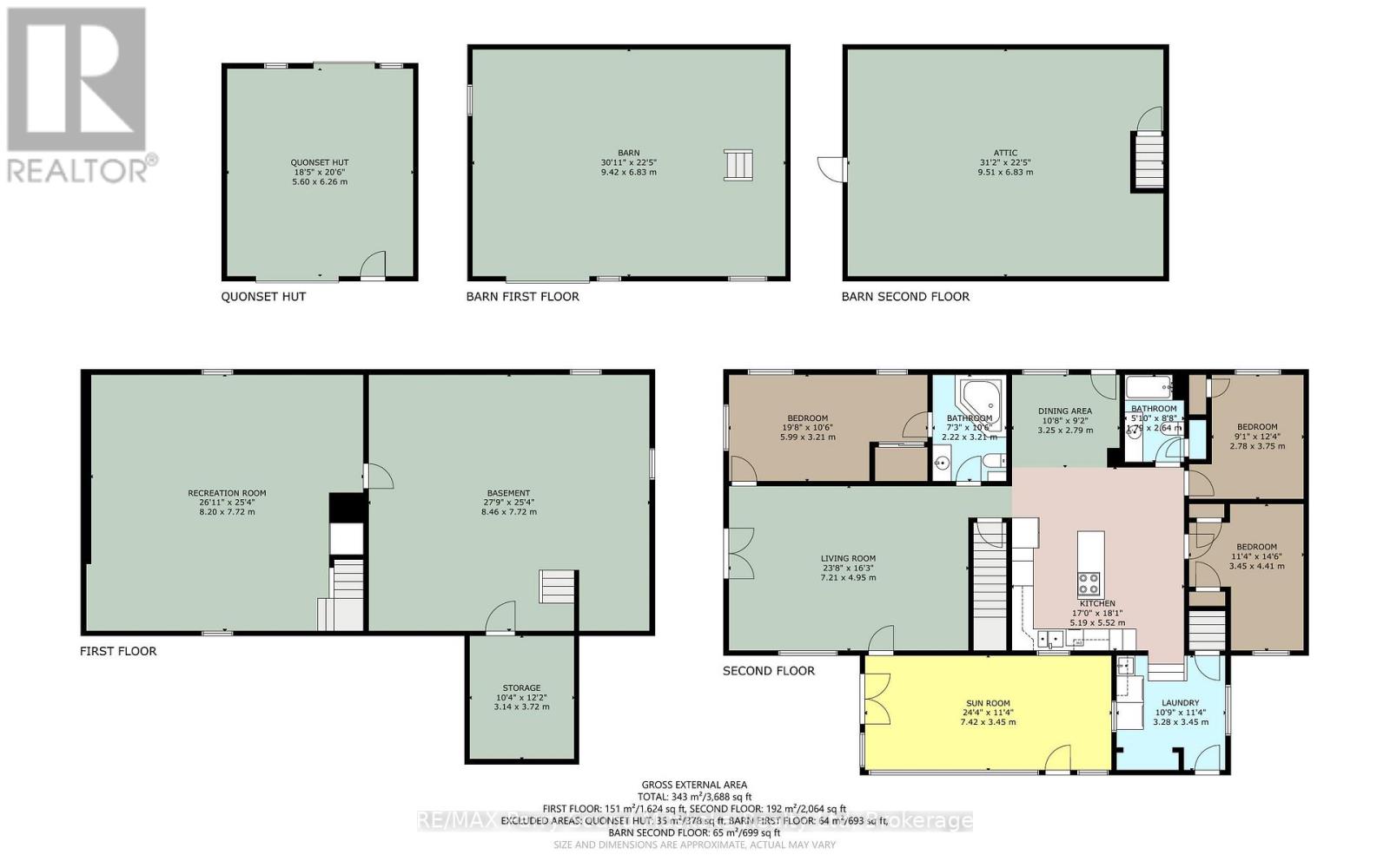
LAKE MANITOUWABING! RARE OFFERING! 4.4 ACRES of PRIVACY! Level, easy access waterfront, Natural sand beach, Solid 3 bedroom, 2 bath bungalow boasts Updated siding & windows, Forced air propane furnace, Large living room with Multiple walkouts to newer decks viewing lake, Spacious full basement features recreation room perfect for family gatherings, Quonset garage w hydro, Rare 2 level barn ideal for creative handypersons/storage, Protected waters for your boat, Great swimming from the beach or off the dock, Fabulous canoe & kayak excursions, Miles of Boating & Fishing Enjoyment on Desirable Lake Manitouwabing, One of the areas largest in land lakes, Near by Village of McKellar offers amenities; General store w liquor, Middle River Farm Store, Boat launch, Saturday morning summer market, Mins to Tait's Landing Marina, Year round road access, Excellent highway access to Parry Sound & Hwy 400, Make this ONE of a KIND PROPERTY YOURS! ONLY 2.5 HOURS to GTA, PRIVACY ABOUNDS! (id:64974)
Quick Facts
- Property Type: Agriculture
- Style: Bungalow
- Bedrooms: 3 (3 above)
- Bathrooms: 2
- Parking: 1.0 space (Detached Garage, Garage)
- Frontage: 157 ft (47.9 m)
Costs
- Annual Taxes: $1,554.00 (2025)
Listing Provided by: RE/MAX Parry Sound Muskoka Realty Ltd
Board: OnePoint Association of REALTORS®
Data provided via CREA DDF®.
Detailed Features
Interior & Systems
- Heating: Forced air, Propane
- Basement: Partially finished, Full
- Appliances: Washer, Refrigerator, Dishwasher, Stove, Oven, Dryer
- Utilities: Electricity, Cable
Exterior & Construction
- Style: Bungalow
- Exterior: Vinyl siding
- Foundation: Block
- Sewer: Septic System
Lot & Land
- Frontage: 157 ft (47.9 m)
- Features: Irregular lot size, Level
- View: Lake view, Direct Water View
- Waterfront: Waterfront on lake
- Water Body: Manitouwabing Lake
- Zoning: WF2-18
Community & Neighbourhood
- Neighbourhood: McKellar
Room Details (10 rooms)
Listing Information
Listing History
MLS listing activity for 39 HARDIES ROAD, McKellar, Ontario, P2A0B5 — dates reflect when changes were recorded in the DDF
🚗 Travel times
Neighborhood Walkability
Mortgage & Cost Calculators
Similar Homes ?Similar Homes — Search CriteriaSearch Radius5 kmPrice Range±5%Match Home TypeYesMatch BedroomsYes

979 STEWART ROAD, West Nipissing (Sturgeon Falls)
Agriculture$1,275,000
$7,166/yr taxListing Courtesy of ROYAL HERITAGE REALTY LTD.

2103 N NOTTAWASAGA CONCESSION 6, Clearview
Agriculture$1,270,000
$2,702/yr taxListing Courtesy of ROYAL LEPAGE REAL ESTATE SERVICES LTD.

215319 CONCESSION 4, Chatsworth
Agriculture$1,289,000
$6,328/yr taxListing Courtesy of Century 21 Millennium Inc.

1307 2ND CONCESSION ENR ROAD, Norfolk
Agriculture$1,290,000
$3,726/yr taxListing Courtesy of Century 21 Heritage House Ltd Brokerage

PT LTS 38 & 39 CONC 9, Whitewater Region
Agriculture$1,295,000
$508/yr taxListing Courtesy of RE/MAX CENTRE CITY REALTY INC.

89482 BELMORE LINE, Howick
Agriculture$1,295,000
$5,939/yr taxListing Courtesy of RE/MAX CENTRE CITY REALTY INC.

1061 Oil Springs LINE, St Clair
House$1,299,000
Listing Courtesy of Coldwell Banker Southwest Realty

5115 WESTNEY ROAD N, Pickering
Agriculture$1,299,000
$8,451/yr taxListing Courtesy of GET SOLD REALTY INC.

16865 RIDGE ROAD, Brock
Agriculture$1,299,000
$6,741/yr taxListing Courtesy of RE/MAX ALL-STARS REALTY INC.

1982 ROAD 163, Perth South (Blanshard)
Unknown$1,299,000
$6,842/yr taxListing Courtesy of Peak Select Realty Inc

LOT 21 CAMERON ROAD, Brooke-Alvinston
Agriculture$1,299,900
Listing Courtesy of Coldwell Banker Southwest Realty

2540 HESPELER ROAD, Cambridge
Agriculture$1,299,900
$3,769/yr taxListing Courtesy of Coldwell Banker Neumann Real Estate

4406 HIGHWAY 24, Scotland
Agriculture$1,250,000
$2,503/yr taxListing Courtesy of Progressive Realty Group Inc.

3178 CONCESSION RD 4, Adjala-Tosorontio
Unknown$1,250,000
$5,610/yr taxListing Courtesy of COLDWELL BANKER RONAN REALTY

0 BARTLEY SIDE ROAD, Saugeen Shores
Unknown$1,300,000
$1,013/yr taxListing Courtesy of Sutton-Huron Shores Realty Inc.
Similar Properties ?Active Comparables — Search CriteriaSearch Radius2 kmPrice Range±5%Match Home TypeYesMatch BedroomsYes
No active comparables found in this area.
No rental comparables found in this area.
Sold Comparables
Access to sold property data requires a registered and verified account with TRREB DDF integration.
Coming SoonRented Comparables
Access to rented property data requires a registered and verified account with TRREB DDF integration.
Coming SoonBook a Viewing
39 HARDIES ROAD, McKellar, Ontario, P2A0B5
