3838 MIDLAND AVENUE, Toronto (Milliken), Ontario, M1V2C1
MLS: E12499562 | Offices
$1,150.00 / monthly










Property Description
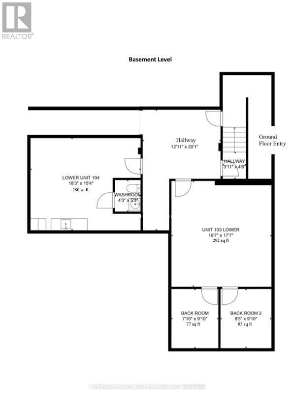
Well-kept and Renovated in 2018. Unit is located in basement level. Main area plus 2 separateoffices with doors. Separate kitchenette/lounge area with washroom shared with upstairstenant. Perfect use for small office, retail, health & beauty related, I.T. office, & muchmore. No Food Related Business. Please note, unit has no windows. Common elements fee of $200+ hst/month on top of net lease. (id:64974)
Quick Facts
- Property Type: Offices
- Bedrooms: None
- Bathrooms: 1
- Living Area: 732 sq ft (68.0 m²)
Listing Provided by: INTERNATIONAL REALTY FIRM, INC.
Board: Toronto Regional Real Estate Board
Data provided via CREA DDF®.
Detailed Features
Interior & Systems
- Heating: Baseboard heaters
- Cooling: None
Exterior & Construction
- Water: Municipal water
Lot & Land
- Zoning: Office
Community & Neighbourhood
- Neighbourhood: Milliken
Listing Information
Listing History
Buy/Sell/Terminated/Expired listing history for 3838 MIDLAND AVENUE, Toronto (Milliken), Ontario, M1V2C1
Location & Neighborhood
🚗 Travel times
Neighborhood Walkability
Mortgage & Cost Calculators
Nearby Homes (Within 2km)
Similar Homes
Similar Properties
Sold Comparables
Access to sold property data requires a registered and verified account with TRREB DDF integration.
Coming SoonRented Comparables
Access to rented property data requires a registered and verified account with TRREB DDF integration.
Coming Soon

































