3834 WOODKILTON ROAD, Ottawa, Ontario, K0A1M0
MLS: X12940902 | House (Freehold)
$549,900






























Property Description
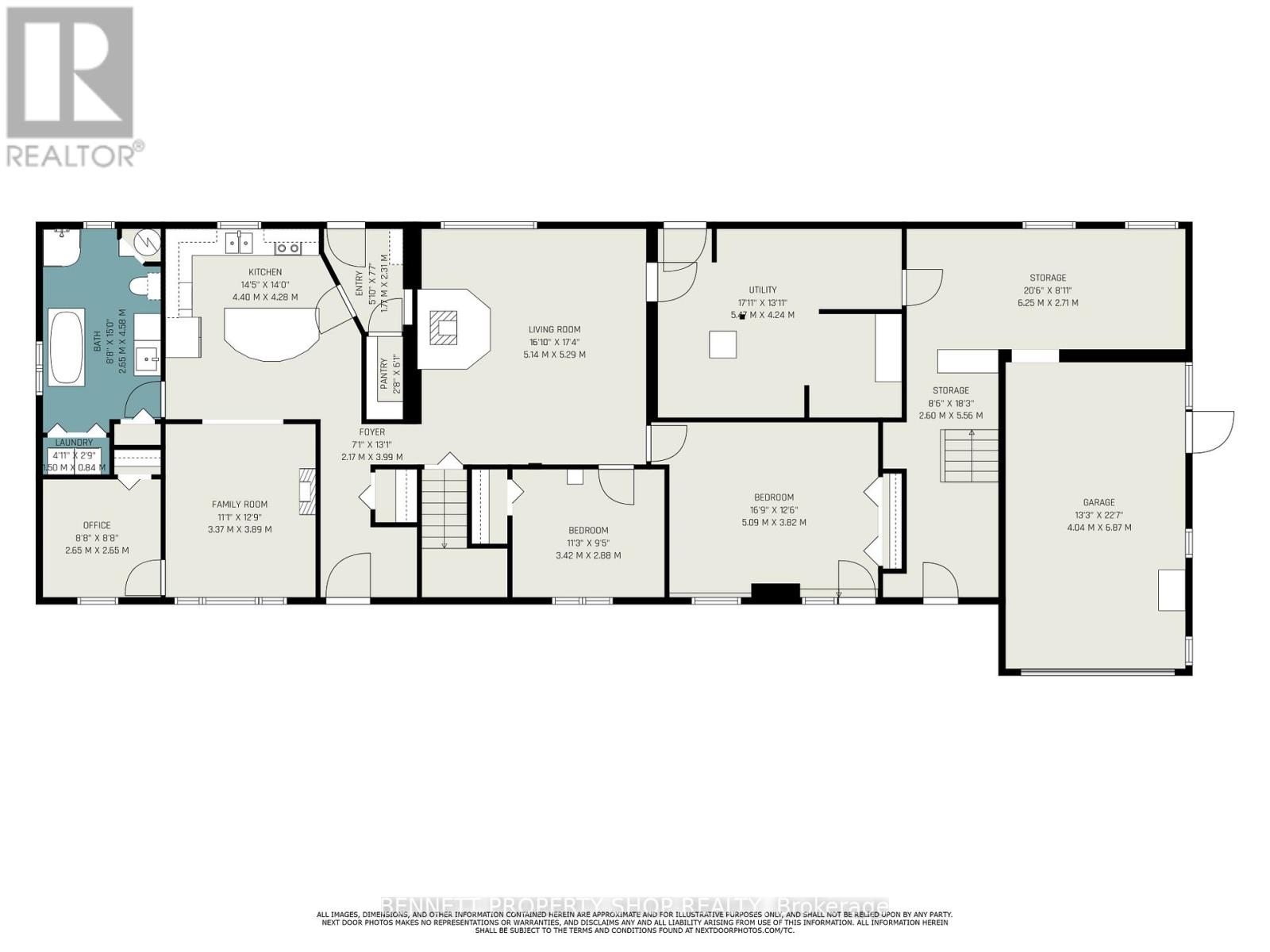
Welcome to 3834 Woodkilton Road-a truly unique property where history meets modern potential! Originally the storied Woodlawn Cheese Factory, this landmark was thoughtfully converted into a private residence in 1967 and sits on a peaceful country lot just a short drive from Kanata. Inside, the home offers incredible flexibility for the creative buyer. The main floor features a spacious layout complete with two bedrooms, living room and family room, office and full bathroom. A separate entrance and dedicated staircase lead to a spacious upper level, providing a blank canvas for a multi-generational suite, rental income, or a massive primary retreat complete with a full bath, and a walk-in closet. The possibilities here are truly endless. For the hobbyist or entrepreneur, the property excels with its storage and workspace. The attached garage features a 22 x 10 powered workshop, plus an additional large utility area perfect for a car enthusiast, furniture maker, or anyone requiring serious storage space. Peace of mind comes standard with extensive recent updates: Newer casement windows, doors, and siding (2011/2014), 30-year shingle roof (2011), High-efficiency Lennox propane furnace with Ecobee WiFi thermostat and a cozy Drolet Escape 1500 woodstove (WETT certified), new insulation added to the 2nd level, updated flooring throughout the kitchen and mudroom (2024)++. Enjoy the quiet beauty of rural living without sacrificing convenience. Your peaceful country escape awaits! 24 hrs irrevocable on all offers. Some photos are digitally enhanced. (id:64974)
Quick Facts
- Property Type: House (Freehold)
- Bedrooms: 5 (5 above)
- Bathrooms: 2
- Ownership: Freehold
- Attached: No
- Fireplaces: 2
- Parking: 4.0 spaces (Attached Garage, Garage)
- Frontage: 200 ft (60.9 m)
Costs
- Annual Taxes: $2,225.98
Listing Provided by: BENNETT PROPERTY SHOP REALTY
Board: Ottawa Real Estate Board
Data provided via CREA DDF®.
Detailed Features
Interior & Systems
- Heating: Baseboard heaters, Propane
- Cooling: None
- Basement: None
- Appliances: Washer, Refrigerator, Dishwasher, Stove, Dryer, Blinds, Garage door opener
- Fireplace Features: Woodstove
Exterior & Construction
- Exterior: Vinyl siding
- Foundation: Slab
- Sewer: Septic System
Lot & Land
- Frontage: 200 ft (60.9 m)
- Features: Carpet Free
Community & Neighbourhood
- Neighbourhood: 9303 - Dunrobin
Room Details (17 rooms)
Listing Information
Listing History
MLS listing activity for 3834 WOODKILTON ROAD, Ottawa, Ontario, K0A1M0 — dates reflect when changes were recorded in the DDF
🚗 Travel times
Neighborhood Walkability
Mortgage & Cost Calculators
Nearby Homes ?Nearby Homes — Search CriteriaSearch Radius1 kmPrice Range±5%Match BedroomsYesMatch BathroomsYes

3783 WOODKILTON ROAD, Ottawa
House$1,179,900
$5,063/yr taxListing Courtesy of ROYAL LEPAGE TEAM REALTY

3758 WOODKILTON ROAD, Ottawa
House$749,000
$2,823/yr taxListing Courtesy of MARILYN WILSON DREAM PROPERTIES INC.

1234 KINBURN SIDE ROAD, Ottawa
House$565,000
$3,053/yr taxListing Courtesy of MARILYN WILSON DREAM PROPERTIES INC.
Similar Homes ?Similar Homes — Search CriteriaSearch Radius5 kmPrice Range±5%Match Home TypeYesMatch BedroomsYes

TH3 - 11 SUPERIOR AVENUE, Toronto (Mimico)
Condo - Row / Townhouse$549,900
$3,167/yr taxListing Courtesy of RE/MAX HALLMARK EASTERN REALTY

47 BISHOP REDING Trail, Hamilton
Condo - Row / Townhouse$549,900
$1/yr taxListing Courtesy of RE/MAX Escarpment Realty Inc.

20 TWENTYPLACE BOULEVARD, Hamilton (Twenty Place)
Condo - Row / Townhouse$549,900
$4,352/yr taxListing Courtesy of ROYAL LEPAGE BURLOAK REAL ESTATE SERVICES

2904 - 9 BOGERT AVENUE, Toronto (Lansing-Westgate)
Condo - Apartment$549,900
$2,956/yr taxListing Courtesy of CENTURY 21 HERITAGE GROUP LTD.

18 CRITZIA Drive, Mount Hope
Condo - Row / Townhouse$549,900
$4,226/yr taxListing Courtesy of RE/MAX Escarpment Realty Inc.

702 - 135 MAITLAND STREET, Toronto (Church-Yonge Corridor)
Condo - Apartment$549,900
$2,413/yr taxListing Courtesy of REAL ESTATE HOMEWARD

302 - 245 DAVISVILLE AVENUE, Toronto (Mount Pleasant West)
Condo - Apartment$549,900
$2,496/yr taxListing Courtesy of BRAD J. LAMB REALTY 2016 INC.

399 ELIZABETH Street Unit# 610, Burlington
Condo - Apartment$549,900
$3,770/yr taxListing Courtesy of RE/MAX Escarpment Realty Inc.

215 - 3351 CAWTHRA ROAD, Mississauga (Applewood)
Condo - Apartment$549,900
$2,874/yr taxListing Courtesy of ROYAL LEPAGE REALTY PLUS

22 WORSLEY Road, Stoney Creek
House$549,900
$3,336/yr taxListing Courtesy of Royal LePage Macro Realty

262 DUNDAS Street E Unit# 322, Waterdown
Condo - Apartment$549,900
$3,222/yr taxListing Courtesy of RE/MAX Escarpment Realty Inc.

247 BROCK STREET Unit# 104, Amherstburg
Condo - Apartment$549,900
Listing Courtesy of REMAX PREFERRED REALTY LTD. - 586

3 - 660 WHITAKER STREET, Peterborough (Ashburnham Ward 4)
Condo$549,900
$4,794/yr taxListing Courtesy of CENTURY 21 UNITED REALTY INC.

322 - 262 DUNDAS STREET E, Hamilton (Waterdown)
Condo - Apartment$549,900
$3,222/yr taxListing Courtesy of RE/MAX Escarpment Realty Inc., Brokerage

15 HILL STREET, Grey Highlands
House$549,900
$2,094/yr taxListing Courtesy of Forest Hill Real Estate Inc.
Similar Properties ?Active Comparables — Search CriteriaSearch Radius2 kmPrice Range±5%Match Home TypeYesMatch BedroomsYes
No active comparables found in this area.
No rental comparables found in this area.
Sold Comparables
Access to sold property data requires a registered and verified account with TRREB DDF integration.
Coming SoonRented Comparables
Access to rented property data requires a registered and verified account with TRREB DDF integration.
Coming SoonBook a Viewing
3834 WOODKILTON ROAD, Ottawa, Ontario, K0A1M0
