38 ROSE VALLEY WAY, Wasaga Beach, Ontario, L9Z3C5
MLS: S12930026 | House (Freehold)
$694,900

















































Property Description
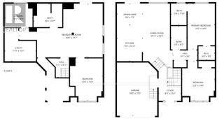
Welcome to 38 Rose Valley Way in the sought-after waterfront community of Wasaga Beach! This detached raised-bungalow offers a functional layout with 2+1 bedrooms, 3 baths, and modern open-concept living. The curb appeal of this stunning property features mature trees and established gardens, as well as a covered front porch and upgraded entry door with window accents. Spacious and welcoming foyer with plenty of room to grab your coat and put on your boots - interior access to the garage - then head upstairs to the primary living space or downstairs where it is fully finished with options for extended family, guests, home office or separate suite income potential. Fantastic functional layout of this home offers two upper level bedrooms, two baths - as well as open concept kitchen / living / dining spaces for family time, entertaining. Upgraded kitchen features hardwood cabinetry, stainless steel appliances, and ample workspace/storage. Warmth of natural bamboo flooring flows throughout the main level and into the bedrooms. Primary suite includes a walk-in closet and renovated ensuite with over-sized shower. Extend your living space into the bright, fully finished lower level that provides an additional bedroom, 3 pc bath, large rec room, kitchenette, laundry and walk-out to a private, tree-lined yard. Enjoy outdoor living with upper and lower decks, mature landscaping, and a fully fenced yard. Located minutes from Wasaga Beach's famous and historical 14 km of freshwater shoreline, plus golf, trails, skiing, and year-round recreation that this exceptional locale offers. Schools, shopping, fine & casual dining, as well as many entertainment options are all nearby, making this property ideal for families, hosting and entertaining guests, or income potential. Experience outstanding four-season living in one of Ontario's most desirable waterfront communities! (id:64974)
Quick Facts
- Property Type: House (Freehold)
- Style: Raised bungalow
- Bedrooms: 3 (2 above, 1 below)
- Bathrooms: 3
- Ownership: Freehold
- Attached: No
- Parking: 6.0 spaces (Attached Garage, Garage)
- Frontage: 50 ft (15.2 m)
Costs
- Annual Taxes: $2,621.00
Listing Provided by: RE/MAX HALLMARK CHAY REALTY
Board: Toronto Regional Real Estate Board
Data provided via CREA DDF®.
Detailed Features
Interior & Systems
- Heating: Forced air, Natural gas
- Cooling: Central air conditioning
- Basement: Finished, Full, Walk out
- Appliances: Washer, Dryer
Exterior & Construction
- Style: Raised bungalow
- Exterior: Brick, Vinyl siding
- Foundation: Concrete
- Sewer: Sanitary sewer
- Water: Municipal water
Lot & Land
- Frontage: 50 ft (15.2 m)
- Water Body: Lake Huron
Community & Neighbourhood
- Neighbourhood: Wasaga Beach
Room Details (12 rooms)
Listing Information
Listing History
MLS listing activity for 38 ROSE VALLEY WAY, Wasaga Beach, Ontario, L9Z3C5 — dates reflect when changes were recorded in the DDF
🚗 Travel times
Neighborhood Walkability
Mortgage & Cost Calculators
Nearby Homes ?Nearby Homes — Search CriteriaSearch Radius1 kmPrice Range±5%Match BedroomsYesMatch BathroomsYes

15 BRILLINGER DRIVE, Wasaga Beach
House$674,900
$3,099/yr taxListing Courtesy of Century 21 Millennium Inc.

2 - 7 HARBOUR CRESCENT, Wasaga Beach
House$1,200/mo
Listing Courtesy of RE/MAX By The Bay Brokerage

1853 RIVER ROAD W, Wasaga Beach
House$599,900
$2,565/yr taxListing Courtesy of RE/MAX HALLMARK CHAY REALTY

15 SMALLMAN DRIVE, Wasaga Beach
House$629,900
$2,672/yr taxListing Courtesy of RE/MAX CROSSTOWN REALTY INC.

70 ROSE VALLEY WAY, Wasaga Beach
House$618,000
$3,254/yr taxListing Courtesy of RE/MAX By The Bay Brokerage

1805 RIVER ROAD W, Wasaga Beach
House$2,600/mo
Listing Courtesy of SAM MCDADI REAL ESTATE INC.

8 AZORES PLACE, Wasaga Beach
House$625,000
$3,337/yr taxListing Courtesy of RE/MAX By The Bay Brokerage

16 GLEN ETON ROAD, Wasaga Beach
House$629,900
$2,909/yr taxListing Courtesy of RE/MAX By The Bay Brokerage

1976 RIVER ROAD W, Wasaga Beach
House$1,199,900
$6,163/yr taxListing Courtesy of RE/MAX HALLMARK CHAY REALTY

26 TIMBERLAND CRESCENT, Wasaga Beach
House$699,000
$3,741/yr taxListing Courtesy of RE/MAX By The Bay Brokerage

29 RIVERDALE DRIVE, Wasaga Beach
House$849,900
$3,966/yr taxListing Courtesy of FARIS TEAM REAL ESTATE BROKERAGE

92 GLEN ETON ROAD, Wasaga Beach
House$599,900
$2,969/yr taxListing Courtesy of Royal LePage Locations North

22 18TH STREET N, Wasaga Beach
Row / Townhouse$859,900
$4,631/yr taxListing Courtesy of EXP REALTY

15 OAKTREE COURT, Wasaga Beach
House$650,000
$3,081/yr taxListing Courtesy of RE/MAX HALLMARK CHAY REALTY

2082 RIVER ROAD W, Wasaga Beach
House$3,500/mo
Listing Courtesy of HOMELIFE/VISION REALTY INC.
Similar Homes ?Similar Homes — Search CriteriaSearch Radius5 kmPrice Range±5%Match Home TypeYesMatch BedroomsYes

41 MADAWASKA TRAIL, Wasaga Beach
House$695,000
$1,800/yr taxListing Courtesy of RE/MAX HALLMARK YORK GROUP REALTY LTD.

98 33RD STREET N, Wasaga Beach
House$690,000
$2,850/yr taxListing Courtesy of NORTH 2 SOUTH REALTY

15 UNION BOULEVARD, Wasaga Beach
House$699,900
$4,829/yr taxListing Courtesy of RE/MAX By The Bay Brokerage

133 WHITE SANDS WAY, Wasaga Beach
House$699,900
$3,562/yr taxListing Courtesy of Century 21 Millennium Inc.

164 ALLEGRA DRIVE, Wasaga Beach
Row / Townhouse$677,000
$3,622/yr taxListing Courtesy of CENTURY 21 LEADING EDGE REALTY INC.

15 BRILLINGER DRIVE, Wasaga Beach
House$674,900
$3,099/yr taxListing Courtesy of Century 21 Millennium Inc.

322 OXBOW PARK DRIVE, Wasaga Beach
House$720,000
$3,657/yr taxListing Courtesy of JN REALTY

1423 RIVER ROAD W, Wasaga Beach
House$725,000
$3,349/yr taxListing Courtesy of ONE PERCENT REALTY LTD.
Similar Properties ?Active Comparables — Search CriteriaSearch Radius2 kmPrice Range±5%Match Home TypeYesMatch BedroomsYes

98 33RD STREET N, Wasaga Beach
House$690,000
$2,850/yr taxListing Courtesy of NORTH 2 SOUTH REALTY

15 BRILLINGER DRIVE, Wasaga Beach
House$674,900
$3,099/yr taxListing Courtesy of Century 21 Millennium Inc.

322 OXBOW PARK DRIVE, Wasaga Beach
House$720,000
$3,657/yr taxListing Courtesy of JN REALTY

1423 RIVER ROAD W, Wasaga Beach
House$725,000
$3,349/yr taxListing Courtesy of ONE PERCENT REALTY LTD.
Sold Comparables
Access to sold property data requires a registered and verified account with TRREB DDF integration.
Coming SoonRented Comparables
Access to rented property data requires a registered and verified account with TRREB DDF integration.
Coming SoonBook a Viewing
38 ROSE VALLEY WAY, Wasaga Beach, Ontario, L9Z3C5

