38 BELL DRIVE, Northern Bruce Peninsula, Ontario, N0H2T0
MLS: X12450339 | House (Freehold)
$724,990




































Property Description
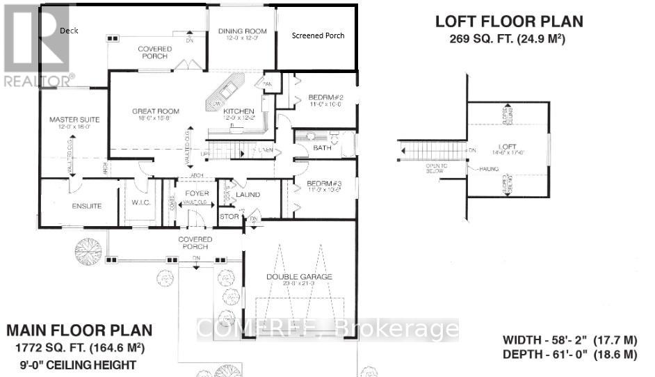
Welcome to this custom-built bungalow with loft area, offering a thoughtfully designed layout and quality finishes throughout. The main floor features soaring vaulted ceilings in the entrance, living area, primary bedroom, and ensuite, complemented by 9-foot ceilings with California stucco texture. A bright 14'3" x 11'5" insulated sunroom with large windows extends from the dining area, creating the perfect space to enjoy views of the private, treed surroundings. The home includes spray foam insulation for comfort and efficiency, a spray-foamed and drywalled attached garage, plus a generator panel for peace of mind. Upstairs, a 210 sq ft loft provides a spacious bonus room, ideal for flexible use. 98% finished ready for your personal touches to complete. Outdoors, the large deck invites you to relax or entertain on the 2.42-acre property. This 3-bedroom home is within walking distance to Lake Huron, a general store with gas, groceries, and lcbo, park, and boat launch blending privacy, convenience, and lifestyle in one exceptional property. (id:64974)
Quick Facts
- Property Type: House (Freehold)
- Style: Bungalow
- Bedrooms: 3 (3 above)
- Bathrooms: 2
- Ownership: Freehold
- Attached: No
- Parking: 8 spaces (Attached Garage, Garage)
- Frontage: 200 ft (61 m)
Costs
- Annual Taxes: $3,516.74
Listing Provided by: COMFREE
Board: Ottawa Real Estate Board
Data provided via CREA DDF®.
Detailed Features
Interior & Systems
- Heating: Forced air, Propane
- Cooling: None
- Basement: Crawl space
- Appliances: Refrigerator, Dishwasher, Stove, Microwave, Freezer, Window Coverings, Garage door opener remote(s)
- Utilities: Electricity
Exterior & Construction
- Style: Bungalow
- Exterior: Stone, Vinyl siding
- Foundation: Concrete
- Sewer: Septic System
- Water: Drilled Well
Lot & Land
- Frontage: 200 ft (61 m)
Community & Neighbourhood
- Community: School Bus
- Neighbourhood: Northern Bruce Peninsula
Room Details (3 rooms)
Listing Information
Listing History
Buy/Sell/Terminated/Expired listing history for 38 BELL DRIVE, Northern Bruce Peninsula, Ontario, N0H2T0
Location & Neighborhood
🚗 Travel times
Neighborhood Walkability
Mortgage & Cost Calculators
Nearby Homes (Within 2km)
Similar Homes
Similar Properties
No rental comparables found in this area.
Sold Comparables
Access to sold property data requires a registered and verified account with TRREB DDF integration.
Coming SoonRented Comparables
Access to rented property data requires a registered and verified account with TRREB DDF integration.
Coming Soon
















