361 CANNON STREET E, Hamilton (Landsdale), Ontario, L8L2C3
MLS: X12328736 | Retail
$17.00 / monthly
















Property Description
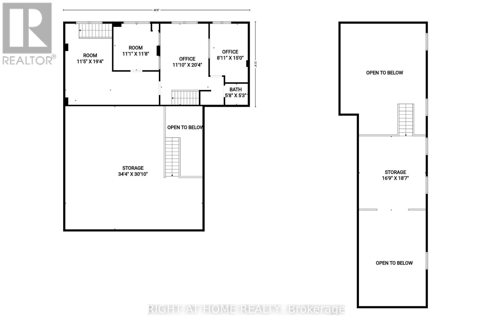
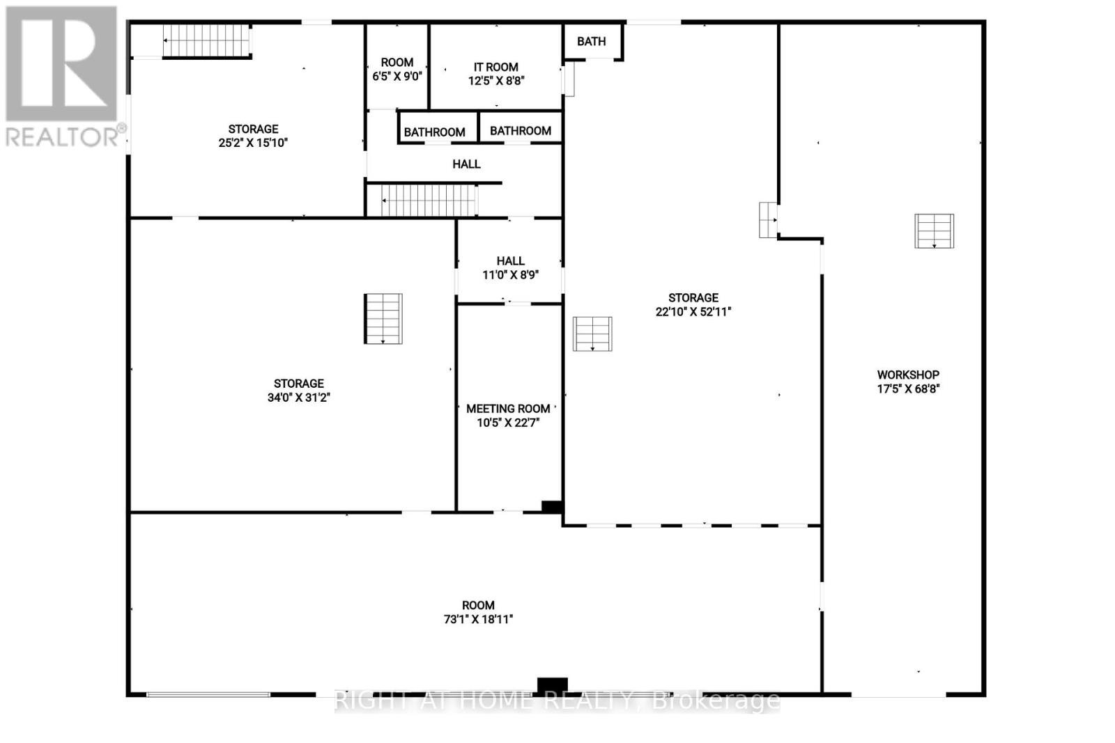
Prime Commercial Building with Additional Parking Lot For Lease in Downtown Hamilton with Drive in bay and office space. A fantastic opportunity to lease a freestanding commercial building with 7,568 sq ft of flexible space, ideally situated in a high-traffic, high-visibility area of Downtown. With a generous lot size 97.11 ft x 115.24 ft and BOUNS vacant parking lot 371 Cannon Street East 90.19 ft x 39.07 ft it makes perfect place for staff and customer access approximately 25 parking available. The main property has been most recently used as an auto parts store. Zoned C2, this property supports a wide range of commercial uses such as medical Clinic, Veterinary Service, Financial Establishment, Retail and much more making it ideal for various types of businesses looking to grow or relocate. Whether you're launching a new venture or expanding your current operations, this space offers exceptional flexibility, zoning advantages and well-established commercial corridor with strong foot and vehicle traffic and rare on-site parking in the heart of the city. (id:64974)
Quick Facts
- Property Type: Retail
- Bedrooms: None
- Bathrooms: 4
- Living Area: 11,184 sq ft (1,039.0 m²)
- Parking: 25 spaces
- Frontage: 96 ft (29.1 m)
Costs
- Annual Taxes: $16,787.56 (2024)
Listing Provided by: RIGHT AT HOME REALTY
Board: Toronto Regional Real Estate Board
Data provided via CREA DDF®.
Detailed Features
Interior & Systems
- Heating: Forced air, Natural gas
- Cooling: Fully air conditioned
Exterior & Construction
- Water: Municipal water
Lot & Land
- Frontage: 96 ft (29.1 m)
- Features: Irregular lot size
- Zoning: C2
Community & Neighbourhood
- Neighbourhood: Landsdale
Listing Information
Listing History
Buy/Sell/Terminated/Expired listing history for 361 CANNON STREET E, Hamilton (Landsdale), Ontario, L8L2C3
Location & Neighborhood
🚗 Travel times
Neighborhood Walkability
Mortgage & Cost Calculators
Similar Properties
No active comparables found in this area.
Sold Comparables
Access to sold property data requires a registered and verified account with TRREB DDF integration.
Coming SoonRented Comparables
Access to rented property data requires a registered and verified account with TRREB DDF integration.
Coming Soon














