360 ROSNER DRIVE, Saugeen Shores, Ontario, N0H2C8
MLS: X12286503 | Townhouse (Freehold)
$739,900







Property Description
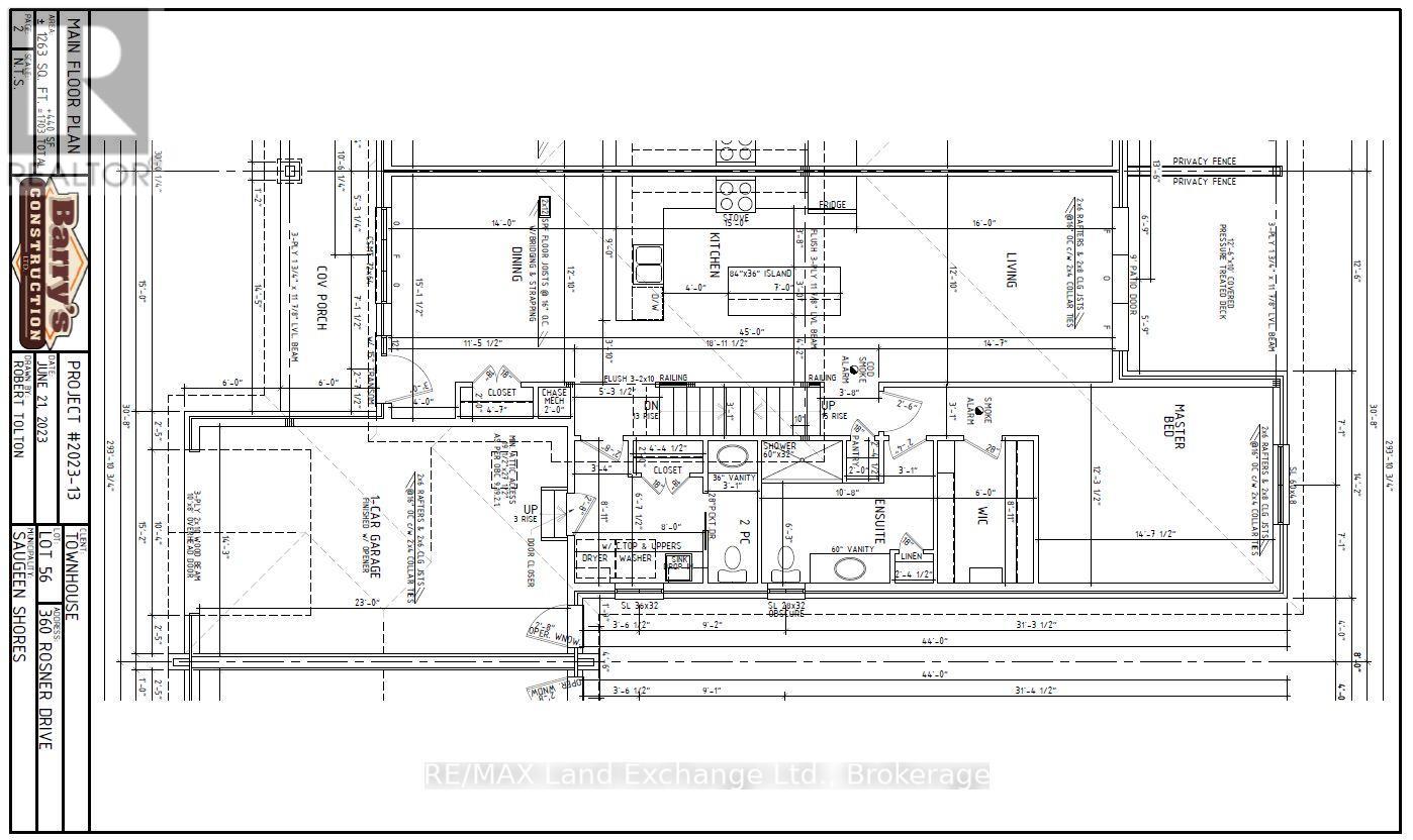
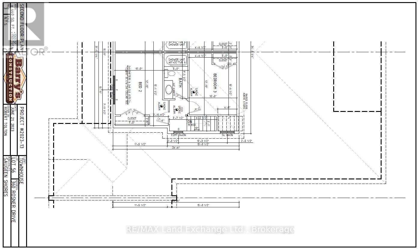
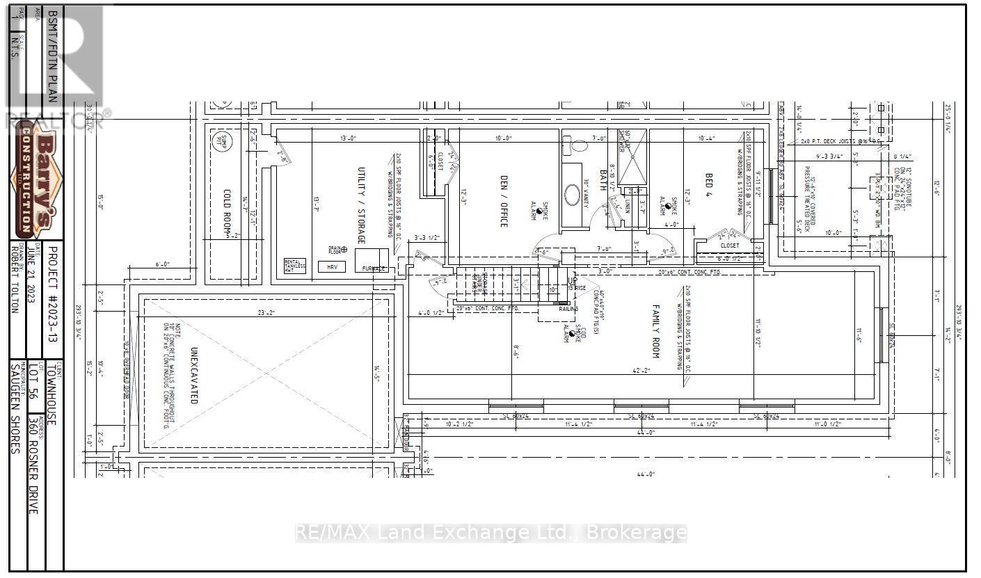
The exterior is complete for this brand new 2 storey freehold townhome at 360 Rosner Drive in Port Elgin. This model is 1703 sqft with a full unfinished basement that can be finished for an additional $30,000 including HST. The basement would include a family room with gas fireplace, full bath, den and 4th bedroom. The main floor will feature 9ft ceilings, Quartz counters in the kitchen, hardwood and ceramic flooring, 9ft patio doors to a covered back deck measuring 10 x 12'6, primary bedroom with ensuite and laundry. Upstairs there are 2 bedrooms and a 4pc bath. The yard will be entirely sodded and the driveway is concrete. HST is included in the asking price provided the Buyer qualifies for the rebate and assigns it to the Seller on closing. Interior colour selections maybe available for those that act early. Prices subject to change without notice (id:64974)
Quick Facts
- Property Type: Townhouse (Freehold)
- Bedrooms: 3 (3 above)
- Bathrooms: 3 (1 half)
- Ownership: Freehold
- Attached: Yes
- Parking: 2 spaces (Attached Garage, Garage, Tandem)
- Frontage: 30 ft (9.1 m)
Listing Provided by: RE/MAX Land Exchange Ltd.
Board: OnePoint Association of REALTORS®
Data provided via CREA DDF®.
Detailed Features
Interior & Systems
- Heating: Forced air, Natural gas
- Cooling: Air exchanger, None
- Basement: Unfinished, Full
- Appliances: Water meter, Water Heater - Tankless
- Flooring: Tile, Hardwood
- Utilities: Sewer, Electricity, Cable, Wireless
- Security: Smoke Detectors
Exterior & Construction
- Exterior: Stone, Vinyl siding
- Foundation: Poured Concrete
- Sewer: Sanitary sewer
- Water: Municipal water
Lot & Land
- Frontage: 30 ft (9.1 m)
- Features: Flat site, Sump Pump
- Zoning: R4-17
Community & Neighbourhood
- Neighbourhood: Saugeen Shores
Room Details (7 rooms)
Listing Information
Listing History
Buy/Sell/Terminated/Expired listing history for 360 ROSNER DRIVE, Saugeen Shores, Ontario, N0H2C8
Location & Neighborhood
🚗 Travel times
Neighborhood Walkability
Mortgage & Cost Calculators
Nearby Homes (Within 2km)
Similar Homes
Similar Properties
No rental comparables found in this area.
Sold Comparables
Access to sold property data requires a registered and verified account with TRREB DDF integration.
Coming SoonRented Comparables
Access to rented property data requires a registered and verified account with TRREB DDF integration.
Coming Soon
























