36 MUNRO Circle, Brantford, Ontario, N3T0R3
MLS: 40782152 | House (Freehold)
$829,000










































Property Description
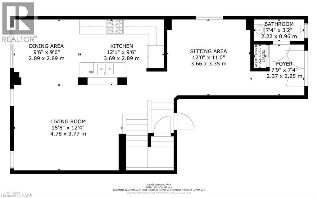
Welcome to this beautiful 4-bedroom ,2.5 -bathroom home located in the desirable Brant west community .This property features a functional layout with a modern kitchen ,open living space ,and an additional sitting area .The primary bedroom includes a private ensuite and ample closet spaces.Enjoy a well -maintained backyard, perfect for outdoor relaxation .Attached garage provides convenient parking and storage.Close to schools, parks ,shopping ,and major amenities. (id:64974)
Quick Facts
- Property Type: House (Freehold)
- Style: 2 Level
- Bedrooms: 4 (4 above)
- Bathrooms: 3 (1 half)
- Living Area: 1,631 sq ft (151.5 m²)
- Above Grade: 1,631 sq ft (151.5 m²)
- Ownership: Freehold
- Attached: No
- Parking: 2 spaces (Attached Garage)
- Frontage: 30 ft (9.1 m)
Costs
- Annual Taxes: $3,576.86
Listing Provided by: Royal LePage Trius Realty Brokerage
Board: Cornerstone Association of REALTORS®
Data provided via CREA DDF®.
Detailed Features
Interior & Systems
- Heating: Natural gas
- Cooling: Central air conditioning
- Basement: Partially finished, Full
- Appliances: Washer, Refrigerator, Gas stove(s), Dishwasher, Stove, Dryer, Microwave
- Utilities: Electricity
- Security: Smoke Detectors
Exterior & Construction
- Style: 2 Level
- Exterior: Brick
- Fencing: Fence
- Sewer: Municipal sewage system
- Water: Municipal water
Lot & Land
- Frontage: 30 ft (9.1 m)
- Zoning: H-R1D-6
Community & Neighbourhood
- Community: School Bus
- Subdivision: 2074 - Empire South
Room Details (14 rooms)
Listing Information
Listing History
Buy/Sell/Terminated/Expired listing history for 36 MUNRO Circle, Brantford, Ontario, N3T0R3
Location & Neighborhood
🚗 Travel times
Neighborhood Walkability
Mortgage & Cost Calculators
Nearby Homes (Within 2km)
Similar Homes
Similar Properties
No rental comparables found in this area.
Sold Comparables
Access to sold property data requires a registered and verified account with TRREB DDF integration.
Coming SoonRented Comparables
Access to rented property data requires a registered and verified account with TRREB DDF integration.
Coming Soon
























