352 MOULTON-AIKEN ROAD, Haldimand (Dunnville), Ontario, N1A2W5
MLS: X12952520 | House (Freehold)
$1,460,000



















































Property Description
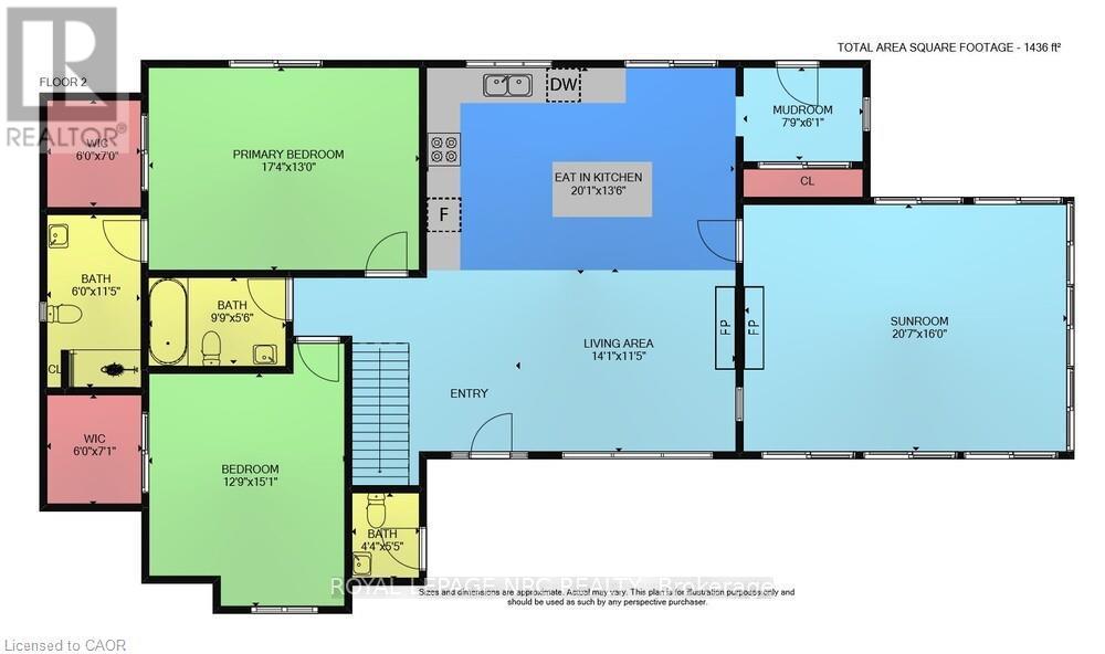
Perfect country package! Rare opportunity to own a secluded 52-acre multi-purpose property, frequented by deer, wild turkeys, rabbits, and various bird species. The land comprises mature forest and wetlands, including maple, ash, and oak trees, with nature trails and road frontages on three sides for privacy. The property features a 1,436 sq ft bungalow, custom built in 2020, with two main floor bedrooms, two and a half bathrooms, and an unfinished basement suitable for additional living space and more bedrooms. Additional structures include a 50'x30'x18' workshop equipped with a car hoist, suited for hobbyists or contractors. The main floor has an open concept with a cathedral ceiling finished in tongue-and-groove pine, an eat-in kitchen with custom maple cabinetry, quartz countertops, a bay window, and stainless-steel appliances. The living room includes a wood fireplace, scraped hardwood floors, and patio doors to a rear deck overlooking the aerated pond and wooded area. The great room provides panoramic outdoor views through wall-to-wall sliding patio doors, a cathedral pine ceiling, and an electric fireplace. Both main floor bedrooms are spacious; the principal bedroom has an ensuite, walk-in closet, and deck access. The basement contains laundry facilities, a utility room, storage, and roughed-in plumbing for bathrm with sewage ejector. Notable amenities include a hi-eff propane furnace, central air, a 2,500-gal water cistern, indoor and outdoor sump pumps, a modern septic system, and 100-amp electrical service. The property is situated on a year-round paved road in a tranquil setting surrounded by a serene forest, with landscaped grounds, vibrant perennial gardens, and a large driveway that can accommodate multiple vehicles and a boat or RV. Located near Dunnville's amenities, it is within a 30-60 minute drive to Hamilton and Niagara. This property offers a cottage-like ambiance for those interested in outdoor recreation and nature! (id:64974)
Quick Facts
- Property Type: House (Freehold)
- Style: Bungalow
- Bedrooms: 2 (2 above)
- Bathrooms: 2
- Ownership: Freehold
- Attached: No
- Fireplaces: Yes
- Parking: 14.0 spaces (Detached Garage, Garage, RV)
- Frontage: 2,554 ft (778.6 m)
Costs
- Annual Taxes: $5,516.00 (2025)
Listing Provided by: ROYAL LEPAGE NRC REALTY
Board: Toronto Regional Real Estate Board
Data provided via CREA DDF®.
Detailed Features
Interior & Systems
- Heating: Forced air, Propane
- Cooling: Central air conditioning
- Basement: Unfinished, Full
- Appliances: Washer, Refrigerator, Dishwasher, Stove, Dryer, Microwave, Freezer, Window Coverings, Water Heater
- Flooring: Hardwood, Vinyl
- Utilities: Electricity, Cable
Exterior & Construction
- Style: Bungalow
- Exterior: Vinyl siding
- Foundation: Concrete
- Sewer: Septic System
- Water: Cistern
Lot & Land
- Frontage: 2,554 ft (778.6 m)
- Features: Irregular lot size, Conservation/green belt
- Zoning: A
Community & Neighbourhood
- Community: School Bus, Community Centre
- Neighbourhood: Dunnville
Room Details (11 rooms)
Listing Information
Listing History
MLS listing activity for 352 MOULTON-AIKEN ROAD, Haldimand (Dunnville), Ontario, N1A2W5 — dates reflect when changes were recorded in the DDF
🚗 Travel times
Neighborhood Walkability
Mortgage & Cost Calculators
Nearby Homes ?Nearby Homes — Search CriteriaSearch Radius1 kmPrice Range±5%Match BedroomsYesMatch BathroomsYes
Similar Homes ?Similar Homes — Search CriteriaSearch Radius5 kmPrice Range±5%Match Home TypeYesMatch BedroomsYes

352 MOULTON-AIKEN Road, Dunnville
House$1,460,000
$5,516/yr taxListing Courtesy of Royal LePage NRC Realty Inc.

172 EILEEN AVENUE, Toronto (Rockcliffe-Smythe)
House$1,460,000
$3,295/yr taxListing Courtesy of EXP REALTY

240 TRAILGATE STREET, Ottawa
House$1,460,000
$8,390/yr taxListing Courtesy of EQUITY ONE REAL ESTATE INC.

4 COPPERSTONE CRESCENT, Richmond Hill (Rouge Woods)
Single Family$1,459,999
$7,245/yr taxListing Courtesy of ONE PERCENT REALTY LTD.

19 CHESLOCK CRESCENT, Oro-Medonte (Warminster)
House$1,459,999
$5,148/yr taxListing Courtesy of REAL BROKER ONTARIO LTD.

263 MCCLELLAN WAY, Aurora (Aurora Highlands)
House$1,459,900
$6,288/yr taxListing Courtesy of RE/MAX HALLMARK YORK GROUP REALTY LTD.

1546 KING STREET W, Toronto (South Parkdale)
House$1,459,800
$8,261/yr taxListing Courtesy of SUTTON GROUP-ASSOCIATES REALTY INC.

17 FENWICK Place, Waterdown
House$1,459,000
$7,011/yr taxListing Courtesy of RE/MAX Escarpment Realty Inc.

97 PENDRITH STREET, Toronto (Dovercourt-Wallace Emerson-Junction)
House$1,459,000
$6,342/yr taxListing Courtesy of SUTTON GROUP-ASSOCIATES REALTY INC.

45 GANDHI LANE, Markham (Commerce Valley)
Condo - Row / Townhouse$1,459,000
$6,491/yr taxListing Courtesy of HOMELIFE LANDMARK REALTY INC.

9 WHITE BEACH CRESCENT, Vaughan (Patterson)
House$1,459,000
$6,360/yr taxListing Courtesy of PSR

5048 WILLIAM STREET, Pickering
House$1,459,000
$9,842/yr taxListing Courtesy of CENTURY 21 LEADING EDGE REALTY INC.

7819 5TH LINE, Essa
Single Family$1,459,000
$4,429/yr taxListing Courtesy of RE/MAX HALLMARK PEGGY HILL GROUP REALTY

17 FENWICK PLACE, Hamilton (Waterdown)
House$1,459,000
$7,011/yr taxListing Courtesy of RE/MAX ESCARPMENT REALTY INC.

12 DANFIELD COURT, Brampton (Credit Valley)
House$1,459,000
$11,202/yr taxListing Courtesy of PSR
Similar Properties ?Active Comparables — Search CriteriaSearch Radius2 kmPrice Range±5%Match Home TypeYesMatch BedroomsYes
No rental comparables found in this area.
Sold Comparables
Access to sold property data requires a registered and verified account with TRREB DDF integration.
Coming SoonRented Comparables
Access to rented property data requires a registered and verified account with TRREB DDF integration.
Coming SoonBook a Viewing
352 MOULTON-AIKEN ROAD, Haldimand (Dunnville), Ontario, N1A2W5
