35 MARNI LANE, Springwater, Ontario, L0L2K0
MLS: S12742234 | Vacant Land
$679,900











Property Description
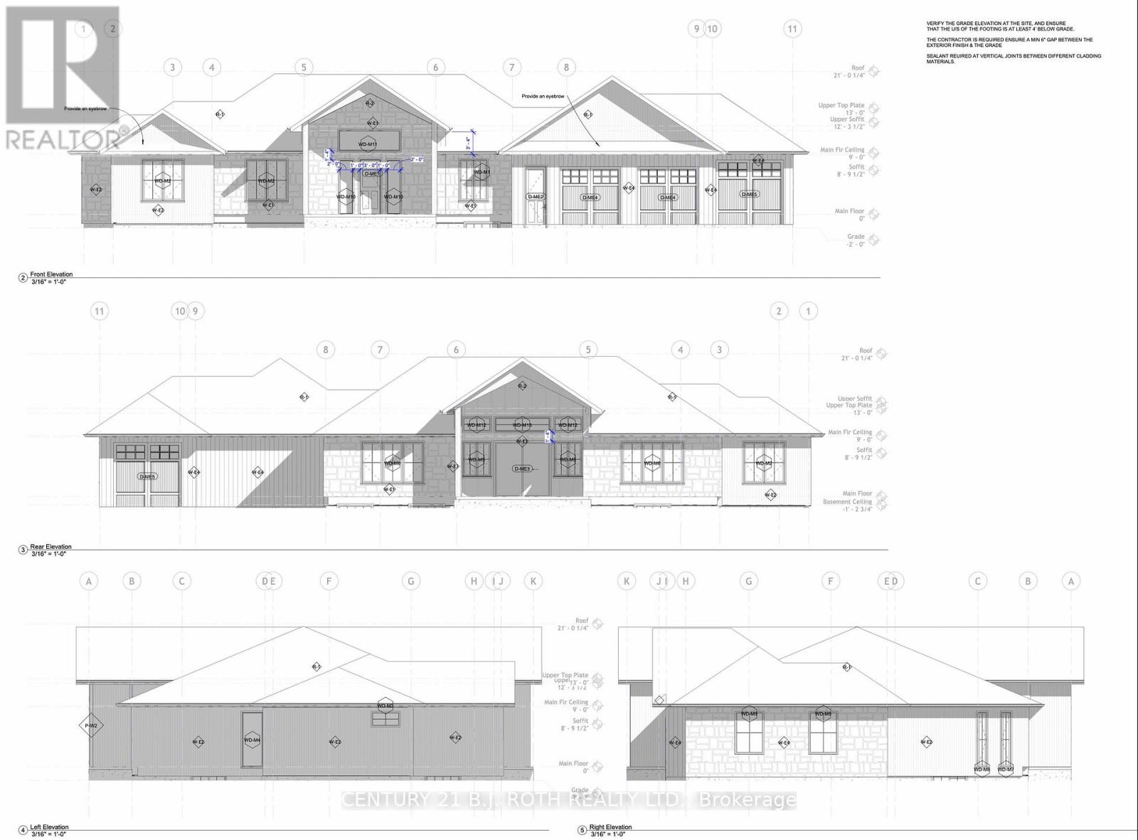
An exceptional opportunity to build your dream estate on one of the area's most prestigious and sought-after streets. This expansive vacant lot offers an impressive 126' frontage x 269' depth, perfectly positioned on coveted Marni Lane, surrounded by striking custom residences that set a new benchmark for luxury, achieving sale prices exceeding $3,000,000. Marni Lane is a showcase of architectural excellence, featuring a curated mix of contemporary masterpieces, timeless traditional estates, and elegant Scandinavian-inspired designs, each home contributing to the street's unmistakable character and exclusivity. The lot is fully serviced, with natural gas, hydro, and Bell Fibe already in place. A well drilled in 2025 has been fully paid for and is ready for connection. The property has been cleared and is truly shovel-ready, with drawings and permits completed (renderings and floor plans included in the listing photos), offering a seamless path from vision to construction. Ideally located, Marni Lane provides the perfect balance of privacy and convenience, just 8 minutes to Highway 400 access and schools, 15 minutes to Barrie, 18 minutes to Wasaga Beach, 20 minutes to Royal Victoria Hospital, and approximately 1 hour 30 minutes to Toronto. A rare chance to secure a premier lot in an elite enclave, where exceptional design, location, and lifestyle converge. (id:64974)
Quick Facts
- Property Type: Vacant Land
- Bedrooms: 0
- Bathrooms: 0
- Frontage: 125 ft (38 m)
Costs
- Annual Taxes: $1,300.00
Listing Provided by: CENTURY 21 B.J. ROTH REALTY LTD.
Board: Toronto Regional Real Estate Board
Data provided via CREA DDF®.
Detailed Features
Interior & Systems
- Utilities: Electricity, Cable
Exterior & Construction
- Sewer: Septic System
- Water: Drilled Well
Lot & Land
- Frontage: 125 ft (38 m)
Community & Neighbourhood
- Community: School Bus
- Neighbourhood: Rural Springwater
Listing Information
Listing History
Buy/Sell/Terminated/Expired listing history for 35 MARNI LANE, Springwater, Ontario, L0L2K0
Location & Neighborhood
🚗 Travel times
Neighborhood Walkability
Mortgage & Cost Calculators
Similar Homes
Similar Properties
No rental comparables found in this area.
Sold Comparables
Access to sold property data requires a registered and verified account with TRREB DDF integration.
Coming SoonRented Comparables
Access to rented property data requires a registered and verified account with TRREB DDF integration.
Coming Soon
























