348 DONALD B. MUNRO DRIVE, Ottawa, Ontario, K0A1L0
MLS: X12917792 | House (Freehold)
$799,900

















































Property Description
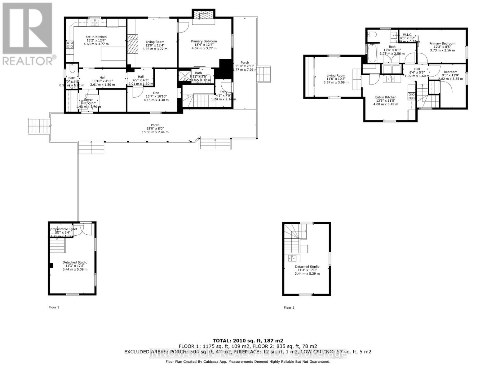
Welcome to 348 Donald B Munro Dr.! This non-conforming Duplex is a beautiful Victorian Brick home filled with character and charm located in the quaint Village of Carp with a bonus detached studio/flex space. Main level unit is currently being rented for $2,200/m and the upper unit is currently being rented for $2,000/m and the detached studio/flex space is currently being rented at $2,260. Insurance, Utilities, Water/Sewer, Snow removal and taxes total ($12,497). This provides you with an approximate annual cash flow of ($65,022). This unique property features numerous modern updates throughout. The renovated main level unit has a welcoming layout with hardwood and ceramic flooring throughout, spacious living/dining room and modern chef-style eat-in kitchen with abundant cabinetry, granite countertops and stainless-steel appliances. The one-bedroom + den features plenty of closet space with easy access to a fully renovated bathroom. Main Floor powder room & Laundry room. The second level unit is equally beautiful and mimics the lower level with a spacious living/dining room and modern chef-style eat in kitchen. 2 sun-filled bedrooms and plenty of closet space with easy access to a fully renovated bathroom. Second Floor Laundry. This property offers numerous options: great for investment, as a single-family home, or with the potential for a home-based business or a teenage retreat. This incredible property is zoned V1M and is situated in a great community, close to schools, indoor arena, outdoor rink, Medical Centre, Farmers Market, tennis courts, restaurants, coffee shops and bakeries. Also ideal for the outdoor enthusiasts, nature lovers and golfers and within proximity to Trails, Ottawa River, Boating, Fishing, Irish Hills Golf and Country Club and so much more! (id:64974)
Quick Facts
- Property Type: House (Freehold)
- Bedrooms: 3 (3 above)
- Bathrooms: 3 (1 half)
- Ownership: Freehold
- Attached: No
- Fireplaces: Yes
- Parking: 5.0 spaces (No Garage)
- Frontage: 143 ft (43.5 m)
Costs
- Annual Taxes: $3,393.07 (2025)
Listing Provided by: INNOVATION REALTY LTD.
Board: Ottawa Real Estate Board
Data provided via CREA DDF®.
Detailed Features
Interior & Systems
- Heating: Forced air, Natural gas
- Basement: Unfinished, Full
- Appliances: Washer, Refrigerator, Stove, Dryer, Microwave, Storage Shed, Water Heater
Exterior & Construction
- Exterior: Wood, Brick
- Foundation: Stone
- Sewer: Sanitary sewer
- Water: Municipal water
Lot & Land
- Frontage: 143 ft (43.5 m)
- Features: Conservation/green belt, Lane
Community & Neighbourhood
- Community: Community Centre
- Neighbourhood: 9101 - Carp
Room Details (10 rooms)
Listing Information
Listing History
MLS listing activity for 348 DONALD B. MUNRO DRIVE, Ottawa, Ontario, K0A1L0 — dates reflect when changes were recorded in the DDF
🚗 Travel times
Neighborhood Walkability
Mortgage & Cost Calculators
Nearby Homes ?Nearby Homes — Search CriteriaSearch Radius1 kmPrice Range±5%Match BedroomsYesMatch BathroomsYes

118 JUANITA AVENUE, Ottawa
House$819,000
$5,584/yr taxListing Courtesy of RE/MAX HALLMARK SAM MOUSSA REALTY

757 MEADOWRIDGE CIRCLE, Ottawa
House$1,059,900
$4,890/yr taxListing Courtesy of ROYAL LEPAGE TEAM REALTY

640 MEADOWRIDGE CIRCLE, Ottawa
House$1,274,000
$6,758/yr taxListing Courtesy of ENGEL & VOLKERS OTTAWA

300 HILVERSUM LANE, Ottawa
Row / Townhouse$3,400/mo
Listing Courtesy of INNOVATION REALTY LTD.

179 GLENNCASTLE DRIVE, Ottawa
House$1,389,900
$5,881/yr taxListing Courtesy of COLDWELL BANKER FIRST OTTAWA REALTY

601 MEADOWRIDGE CIRCLE, Ottawa
House$859,900
$3,843/yr taxListing Courtesy of COMFREE

195 CHARLIES LANE, Ottawa
House$1,299,000
$6,772/yr taxListing Courtesy of INNOVATION REALTY LTD.
Similar Homes ?Similar Homes — Search CriteriaSearch Radius5 kmPrice Range±5%Match Home TypeYesMatch BedroomsYes

1996 OLD CARP ROAD, Ottawa
House$795,000
$4,895/yr taxListing Courtesy of XLR8 REALTY GROUP INC.

118 JUANITA AVENUE, Ottawa
House$819,000
$5,584/yr taxListing Courtesy of RE/MAX HALLMARK SAM MOUSSA REALTY

3864 CARP ROAD, Ottawa
House$769,900
$3,413/yr taxListing Courtesy of ROYAL LEPAGE PERFORMANCE REALTY

300 WELLINGTON STREET, Kingston (East of Sir John A. Blvd)
Row / Townhouse$799,900
$7,549/yr taxListing Courtesy of ROYAL LEPAGE PROALLIANCE REALTY, BROKERAGE

8028 Meo BOULEVARD, LaSalle
Row / Townhouse$799,900
Listing Courtesy of DEERBROOK REALTY INC.

1207 - 458 RICHMOND STREET W, Toronto (Waterfront Communities)
Condo - Apartment$799,900
$4,811/yr taxListing Courtesy of BRAD J. LAMB REALTY 2016 INC.

503 ROYAL RIDGE DRIVE, Fort Erie (Ridgeway)
Row / Townhouse$799,900
Listing Courtesy of BOSLEY REAL ESTATE LTD.,

4024 RIVER Road, Caledonia
House$799,900
$4,501/yr taxListing Courtesy of RE/MAX Escarpment Realty Inc.

77 BASIL CRESCENT, Middlesex Centre (Ilderton)
House$799,900
Listing Courtesy of NU-VISTA PINNACLE REALTY BROKERAGE INC

2401 - 179 METCALFE STREET, Ottawa
Condo - Apartment$799,900
$6,270/yr taxListing Courtesy of ENGEL & VOLKERS OTTAWA

506 - 1100 KINGSTON ROAD, Toronto (Birchcliffe-Cliffside)
Condo - Apartment$799,900
$3,725/yr taxListing Courtesy of ROYAL LEPAGE ESTATE REALTY

310 - 530 DE MAZENOD AVENUE, Ottawa
Condo - Apartment$799,900
$6,887/yr taxListing Courtesy of REAL BROKER ONTARIO LTD.

1601 - 458 RICHMOND STREET W, Toronto (Waterfront Communities)
Condo - Apartment$799,900
$4,886/yr taxListing Courtesy of BRAD J. LAMB REALTY 2016 INC.

28171 HIGHWAY 48, Georgina (Baldwin)
House$799,900
$1,357/yr taxListing Courtesy of RE/MAX PRIME PROPERTIES

904 - 15 LEGION ROAD, Toronto (Mimico)
Condo - Apartment$799,900
$3,250/yr taxListing Courtesy of ROYAL LEPAGE REAL ESTATE SERVICES LTD.
Similar Properties ?Active Comparables — Search CriteriaSearch Radius2 kmPrice Range±5%Match Home TypeYesMatch BedroomsYes

118 JUANITA AVENUE, Ottawa
House$819,000
$5,584/yr taxListing Courtesy of RE/MAX HALLMARK SAM MOUSSA REALTY

3864 CARP ROAD, Ottawa
House$769,900
$3,413/yr taxListing Courtesy of ROYAL LEPAGE PERFORMANCE REALTY
Sold Comparables
Access to sold property data requires a registered and verified account with TRREB DDF integration.
Coming SoonRented Comparables
Access to rented property data requires a registered and verified account with TRREB DDF integration.
Coming SoonBook a Viewing
348 DONALD B. MUNRO DRIVE, Ottawa, Ontario, K0A1L0
