346 MIAMI DRIVE, Georgina (Keswick South), Ontario, L4P2Z7
MLS: N12929726 | Vacant Land
$498,000






Property Description
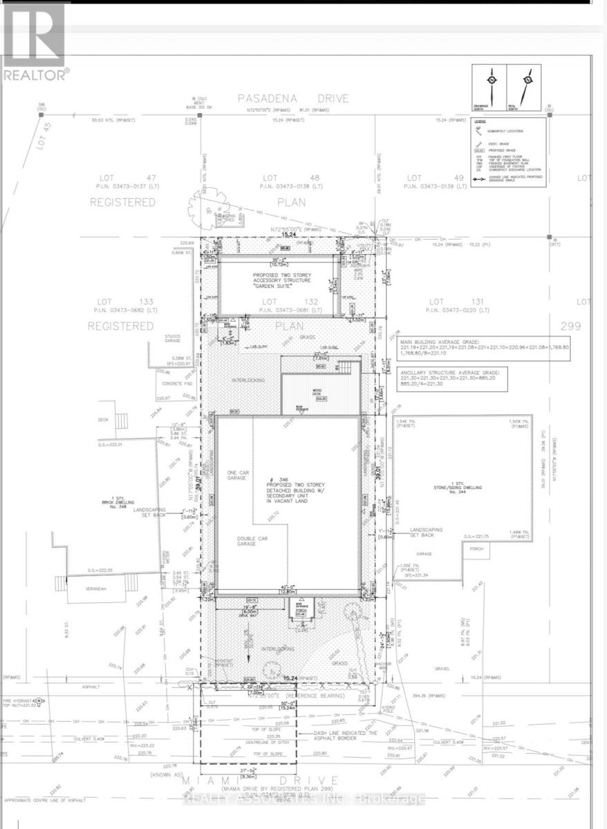
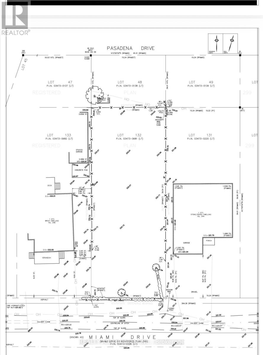
Attention Builders & Investors!Rare opportunity to own a fabulous, mature 50 x 128 ft lot in the highly sought-after south end of Keswick-just steps to Lake Simcoe! Enjoy access to the lake and a private beach association, offering endless recreational activities including swimming, water sports, and fishing.This property comes ready for your vision, with site Alteration permits already completed with the city and designs available for both the main house and a garden suite-a fantastic opportunity for redevelopment or investment.The lot is fully fenced, providing privacy and security, and a new survey (2025) has already been completed for your convenience.Don't miss this exceptional chance to build in a prime lakeside location! (id:64974)
Quick Facts
- Property Type: Vacant Land
- Style: Bungalow
- Bedrooms: None
- Bathrooms: 0
- Frontage: 50 ft (15.2 m)
Costs
- Annual Taxes: $2,335.00
Listing Provided by: REALTY ASSOCIATES INC.
Board: Toronto Regional Real Estate Board
Data provided via CREA DDF®.
Detailed Features
Interior & Systems
- Utilities: Sewer, Electricity, Cable
Exterior & Construction
- Style: Bungalow
Lot & Land
- Frontage: 50 ft (15.2 m)
Community & Neighbourhood
- Community: School Bus
- Neighbourhood: Keswick South
Listing Information
Listing History
MLS listing activity for 346 MIAMI DRIVE, Georgina (Keswick South), Ontario, L4P2Z7 — dates reflect when changes were recorded in the DDF
🚗 Travel times
Neighborhood Walkability
Mortgage & Cost Calculators
Similar Homes ?Similar Homes — Search CriteriaSearch Radius5 kmPrice Range±5%Match Home TypeYesMatch BedroomsYes

25 TEETER Place Unit# Lot 8, Grimsby
Vacant Land$498,900
$2,630/yr taxListing Courtesy of RE/MAX Escarpment Realty Inc.

LOT 13 SUZANNE MESS BOULEVARD, Cobourg
Vacant Land$499,000
$1,808/yr taxListing Courtesy of RE/MAX ROUGE RIVER REALTY LTD.

LOT 14 SUZANNE MESS BOULEVARD, Cobourg
Vacant Land$499,000
$1,808/yr taxListing Courtesy of RE/MAX ROUGE RIVER REALTY LTD.

122 IVY RIDGE ROAD, Prince Edward County (Hillier)
Vacant Land$499,000
$1,494/yr taxListing Courtesy of KELLER WILLIAMS ENERGY REAL ESTATE

49 MAIN ST. SOUTH, Markham (Unionville)
Vacant Land$499,000
$216/yr taxListing Courtesy of CENTURY 21 LEADING EDGE REALTY INC.

PART 2 - 290 DEWITT ROAD, Hamilton (Stoney Creek)
Vacant Land$499,000
Listing Courtesy of ROYAL LEPAGE CERTIFIED REALTY

140 WINONA RD WINONA ROAD, Hamilton (Fruitland)
Vacant Land$499,000
$2,297/yr taxListing Courtesy of RE/MAX REAL ESTATE CENTRE INC.

23 OLD CUT Boulevard, Long Point
Vacant Land$499,000
$3,462/yr taxListing Courtesy of Royal LePage State Realty Inc.

0 MOUNTSBERG Road, Hamilton
Vacant Land$499,000
$4,714/yr taxListing Courtesy of Realty World Legacy

PART 1 - 290 DEWITT ROAD, Hamilton (Stoney Creek)
Vacant Land$499,000
Listing Courtesy of ROYAL LEPAGE CERTIFIED REALTY

221 WOODLAND DRIVE, McMurrich/Monteith (Monteith)
Vacant Land$499,000
$1,700/yr taxListing Courtesy of Forest Hill Real Estate Inc.

639 MOUNT PLEASANT ROAD S, Brant (Brantford Twp)
Vacant Land$499,000
$6,283/yr taxListing Courtesy of Sutton Group Select Realty Inc Brokerage

54255 SHAFLEY ROAD S, Wainfleet (Marshville/Winger)
Vacant Land$499,000
$2,042/yr taxListing Courtesy of ROBIN HOOD REALTY LIMITED

17 - 19 AUGUSTA CRESCENT, St. Thomas
Condo$499,000
$4,598/yr taxListing Courtesy of COLDWELL BANKER STAR REAL ESTATE

1130 CHETWYND ROAD, Armour
Vacant Land$499,000
$270/yr taxListing Courtesy of Forest Hill Real Estate Inc.
Similar Properties ?Active Comparables — Search CriteriaSearch Radius2 kmPrice Range±5%Match Home TypeYesMatch BedroomsYes
No active comparables found in this area.
No rental comparables found in this area.
Sold Comparables
Access to sold property data requires a registered and verified account with TRREB DDF integration.
Coming SoonRented Comparables
Access to rented property data requires a registered and verified account with TRREB DDF integration.
Coming SoonBook a Viewing
346 MIAMI DRIVE, Georgina (Keswick South), Ontario, L4P2Z7
