340 PLAINS Road E Unit# 610, Burlington, Ontario, L7T0C2
MLS: 40818009 | Apartment (Condo)
$509,900












































Property Description
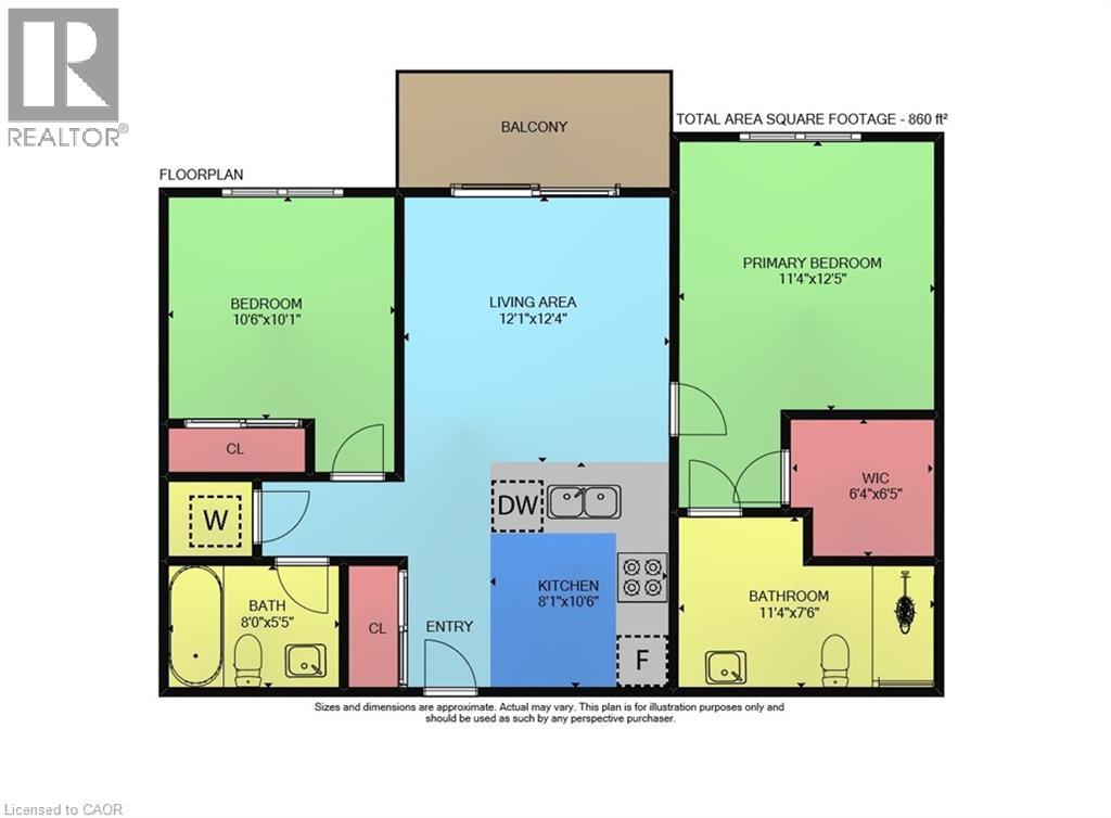
Clean, bright, & spacious 2-bedroom, 2 full bathroom, top-floor unit with west-facing, unobstructed views, set away from the hustle & bustle of Plains Rd. Offering 860sqft (just over 900sqft per builder plans), this layout matches other 2-bedroom units that have sold recently for $540,000+. The bright, open-concept design features a kitchen with peninsula overlooking the living area with patio doors leading to the private balcony. The large primary bedroom is thoughtfully positioned on one side of the living space & offers enough room for a work-from-home setup. It includes a walk-in closet & 3-piece ensuite with walk-in shower. On the opposite side, the second bedroom is across from a full 4-piece bathroom. Additional features include large coat closet, a stackable washer/dryer in a separate closet, one owned parking space & locker. A second parking spot can be rented, with potential to purchase. Residents enjoy excellent building amenities, including ample visitor parking, two EV chargers, a rooftop patio with BBQs & lounge areas, a pet relief area, two gyms & two party rooms (one in each building). Located in a highly walkable area close to parks, the marina, tennis courts, schools, shops & restaurants. Just minutes to Aldershot GO Station, HWY 403, & the QEW. (id:64974)
Quick Facts
- Property Type: Apartment (Condo)
- Bedrooms: 2 (2 above)
- Bathrooms: 2
- Living Area: 860 sq ft (79.9 m²)
- Above Grade: 860 sq ft (79.9 m²)
- Ownership: Condo/Strata
- Attached: Yes
- Parking: 1.0 space (Underground)
Costs
- Annual Taxes: $3,497.72
- Condo/HOA Fee: $716.47 / monthly
- Includes: Water, Insurance, Parking
Listing Provided by: Royal LePage Burloak Real Estate Services
Board: Cornerstone Association of REALTORS®
Data provided via CREA DDF®.
Detailed Features
Interior & Systems
- Heating: Heat Pump
- Cooling: Central air conditioning
- Basement: None
- Appliances: Washer, Refrigerator, Dishwasher, Stove, Dryer, Microwave Built-in
Exterior & Construction
- Exterior: Stone, Stucco, Other
- Foundation: Poured Concrete
- Sewer: Municipal sewage system
- Water: Municipal water
Lot & Land
- Features: Balcony
- Zoning: MXG
Community & Neighbourhood
- Building: Exercise Centre, Party Room
- Subdivision: 302 - Aldershot Central
Room Details (6 rooms)
Listing Information
Listing History
MLS listing activity for 340 PLAINS Road E Unit# 610, Burlington, Ontario, L7T0C2 — dates reflect when changes were recorded in the DDF
🚗 Travel times
Neighborhood Walkability
Mortgage & Cost Calculators
Nearby Homes ?Nearby Homes — Search CriteriaSearch Radius1 kmPrice Range±5%Match BedroomsYesMatch BathroomsYes

202 - 340 PLAINS ROAD E, Burlington (LaSalle)
Condo - Apartment$399,000
$3,061/yr taxListing Courtesy of ROYAL LEPAGE STATE REALTY

340 PLAINS Road E Unit# 202, Burlington
Condo - Apartment$465,000
$3,061/yr taxListing Courtesy of Royal LePage State Realty Inc.

320 PLAINS Road Unit# 212, Burlington
Condo - Apartment$630,000
$3,449/yr taxListing Courtesy of New Era Real Estate

303 - 320 PLAINS ROAD E, Burlington (LaSalle)
Condo - Apartment$529,000
$2,876/yr taxListing Courtesy of RE/MAX ESCARPMENT REALTY INC.

502 - 320 PLAINS ROAD E, Burlington (LaSalle)
Condo - Apartment$474,900
$2,895/yr taxListing Courtesy of RE/MAX ESCARPMENT REALTY INC.

211 - 320 PLAINS ROAD E, Burlington (LaSalle)
Condo - Apartment$539,000
$3,158/yr taxListing Courtesy of PSR

603 - 320 PLAINS ROAD E, Burlington (LaSalle)
Condo - Apartment$499,900
$2,904/yr taxListing Courtesy of INTERCITY REALTY INC.

212 - 320 PLAINS ROAD E, Burlington (LaSalle)
Condo - Apartment$630,000
$3,449/yr taxListing Courtesy of NEW ERA REAL ESTATE

340 PLAINS Road E Unit# 202, Burlington
Condo - Apartment$399,000
$3,061/yr taxListing Courtesy of Royal LePage State Realty Inc.

320 PLAINS Road E Unit# 502, Burlington
Condo - Apartment$474,900
$2,895/yr taxListing Courtesy of RE/MAX Escarpment Realty Inc.

362 PLAINS Road E Unit# 42, Burlington
Condo - Row / Townhouse$748,888
$3,874/yr taxListing Courtesy of RE/MAX Escarpment Golfi Realty Inc.

207 - 396 PLAINS ROAD E, Burlington (LaSalle)
Condo - Apartment$549,995
$3,342/yr taxListing Courtesy of KELLER WILLIAMS EDGE REALTY

396 PLAINS Road E Unit# 503, Burlington
Condo - Apartment$649,000
$3,663/yr taxListing Courtesy of RE/MAX Escarpment Realty Inc.

391 PLAINS Road E Unit# 412, Burlington
Condo - Apartment$829,000
$3,575/yr taxListing Courtesy of Royal LePage Burloak Real Estate Services

396 PLAINS Road E Unit# 207, Burlington
Condo - Apartment$549,995
$3,342/yr taxListing Courtesy of Keller Williams Edge Realty
Similar Homes ?Similar Homes — Search CriteriaSearch Radius5 kmPrice Range±5%Match Home TypeYesMatch BedroomsYes

1002 - 1270 MAPLE CROSSING BOULEVARD, Burlington (Brant)
Condo - Apartment$514,999
$2,351/yr taxListing Courtesy of RE/MAX NOBLECORP REAL ESTATE

232 - 10 MALLARD TRAIL, Hamilton (Waterdown)
Condo - Apartment$515,000
$3,084/yr taxListing Courtesy of ROYAL LEPAGE SIGNATURE REALTY

403 - 1425 GHENT AVENUE, Burlington (Brant)
Condo - Apartment$500,000
$2,400/yr taxListing Courtesy of RE/MAX WEST REALTY INC.

1707 - 2081 FAIRVIEW STREET, Burlington (Freeman)
Condo - Apartment$499,999
$2,614/yr taxListing Courtesy of ZOLO REALTY

603 - 320 PLAINS ROAD E, Burlington (LaSalle)
Condo - Apartment$499,900
$2,904/yr taxListing Courtesy of INTERCITY REALTY INC.

2055 UPPER MIDDLE Road Unit# 1206, Burlington
Condo - Apartment$499,900
$2,260/yr taxListing Courtesy of RE/MAX Escarpment Realty Inc.

1206 - 2055 UPPER MIDDLE ROAD, Burlington (Brant Hills)
Condo - Apartment$499,900
$2,260/yr taxListing Courtesy of RE/MAX ESCARPMENT REALTY INC.

475 CLARIDGE Road Unit# 6, Burlington
Condo - Row / Townhouse$525,000
$2,254/yr taxListing Courtesy of Right at Home Realty

303 - 320 PLAINS ROAD E, Burlington (LaSalle)
Condo - Apartment$529,000
$2,876/yr taxListing Courtesy of RE/MAX ESCARPMENT REALTY INC.

701 - 450 DUNDAS STREET E, Hamilton (Waterdown)
Condo - Apartment$529,000
$3,437/yr taxListing Courtesy of Stonemill Realty Inc., Brokerage

1009 - 470 DUNDAS STREET E, Hamilton (Waterdown)
Condo - Apartment$529,000
$3,217/yr taxListing Courtesy of ROYAL LEPAGE STATE REALTY

470 DUNDAS Street E Unit# 1009, Waterdown
Condo - Apartment$529,000
$3,217/yr taxListing Courtesy of Royal LePage State Realty Inc.

712 - 1131 COOKE BOULEVARD, Burlington (LaSalle)
Condo - Row / Townhouse$530,000
$4,355/yr taxListing Courtesy of HOMELIFE SILVERCITY REALTY INC.
Similar Properties ?Active Comparables — Search CriteriaSearch Radius2 kmPrice Range±5%Match Home TypeYesMatch BedroomsYes

603 - 320 PLAINS ROAD E, Burlington (LaSalle)
Condo - Apartment$499,900
$2,904/yr taxListing Courtesy of INTERCITY REALTY INC.

303 - 320 PLAINS ROAD E, Burlington (LaSalle)
Condo - Apartment$529,000
$2,876/yr taxListing Courtesy of RE/MAX ESCARPMENT REALTY INC.

712 - 1131 COOKE BOULEVARD, Burlington (LaSalle)
Condo - Row / Townhouse$530,000
$4,355/yr taxListing Courtesy of HOMELIFE SILVERCITY REALTY INC.

815 - 1133 COOKE BOULEVARD, Burlington (LaSalle)
Condo - Row / Townhouse$2,900/mo
Listing Courtesy of ROYAL LEPAGE BURLOAK REAL ESTATE SERVICES

457 PLAINS Road E Unit# 302, Burlington
Condo - Apartment$2,800/mo
$3,245/yr taxListing Courtesy of Real Broker Ontario Ltd.

1121 COOKE Boulevard Unit# 11, Burlington
Condo - Row / Townhouse$2,700/mo
Listing Courtesy of CENTURY 21 MILLENNIUM INC

13 - 498 PLAINS ROAD E, Burlington (LaSalle)
Condo - Row / Townhouse$2,600/mo
Listing Courtesy of AKARAT GROUP INC.

402 - 500 PLAINS ROAD E, Burlington (LaSalle)
Condo - Apartment$2,250/mo
Listing Courtesy of BAKER REAL ESTATE INCORPORATED
Sold Comparables
Access to sold property data requires a registered and verified account with TRREB DDF integration.
Coming SoonRented Comparables
Access to rented property data requires a registered and verified account with TRREB DDF integration.
Coming SoonBook a Viewing
340 PLAINS Road E Unit# 610, Burlington, Ontario, L7T0C2
