34 WILLIAM STREET E, Smiths Falls, Ontario, K7A1C4
MLS: X12490350 | Vacant Land
$535,000













Property Description
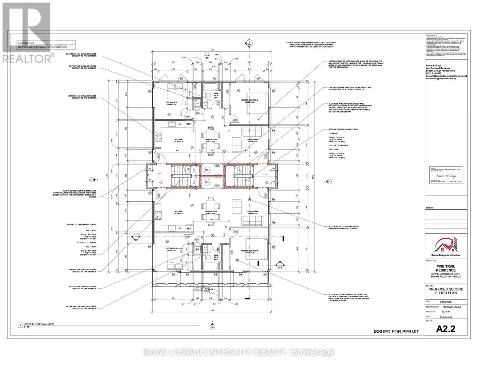
Fully Approved 7-Unit Mixed-Use Development in the Heart of Downtown Smiths Falls. An exceptional opportunity for developers and investors alike-this fully approved mixed-use infill development site is ideally located in the vibrant downtown core of Smiths Falls. With a walk score of 89, this high-visibility location offers excellent accessibility to shops, services, and transit, making it highly desirable for both residents and commercial tenants.The property is vacant, fully serviced, and ready for construction. A demolition permit for the existing home and garage has already been granted by the municipality, allowing for immediate site preparation. The approved site plan features a three-storey low-rise building with a 2,400 sq. ft. footprint and six parking spaces located at the rear. The main floor is designed with two street-front retail or office units plus a two-bedroom residential apartment at the back. The second and third floors each include two spacious two-bedroom apartments, offering a total of five residential units and two commercial spaces. The basement is allocated for mechanical systems, tenant storage, and shared laundry facilities. With commercial space representing less than 30% of the total building area, the project qualifies for CMHC financing-enhancing long-term investment potential and ease of funding. This property represents a turnkey urban infill opportunity-ideal for a developer ready to build or an investor seeking a pre-approved, income-generating asset in one of Eastern Ontario's most progressive and walkable downtowns. (id:64974)
Quick Facts
- Property Type: Vacant Land
- Bedrooms: None
- Bathrooms: None
- Living Area: 7,061 sq ft (656.0 m²)
- Frontage: 59 ft (17.9 m)
Costs
- Annual Taxes: $4,266.00 (2025)
Listing Provided by: ROYAL LEPAGE INTEGRITY REALTY
Board: Ottawa Real Estate Board
Data provided via CREA DDF®.
Detailed Features
Exterior & Construction
- Water: Municipal water
Lot & Land
- Frontage: 59 ft (17.9 m)
- Zoning: RM
Community & Neighbourhood
- Neighbourhood: 901 - Smiths Falls
Listing Information
Listing History
Buy/Sell/Terminated/Expired listing history for 34 WILLIAM STREET E, Smiths Falls, Ontario, K7A1C4
Location & Neighborhood
🚗 Travel times
Neighborhood Walkability
Mortgage & Cost Calculators
Nearby Homes (Within 2km)
Similar Homes
Similar Properties
No rental comparables found in this area.
Sold Comparables
Access to sold property data requires a registered and verified account with TRREB DDF integration.
Coming SoonRented Comparables
Access to rented property data requires a registered and verified account with TRREB DDF integration.
Coming Soon






























