34 RICHARD WILLIAM Drive, Caledonia, Ontario, N3W0G8
MLS: 40819203 | Office
$750 / monthly













Property Description
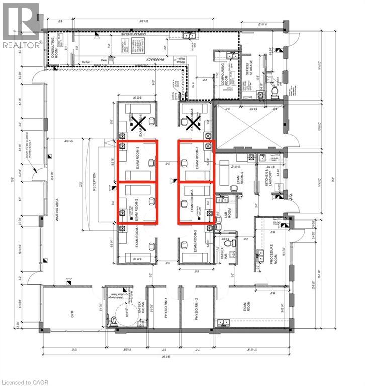
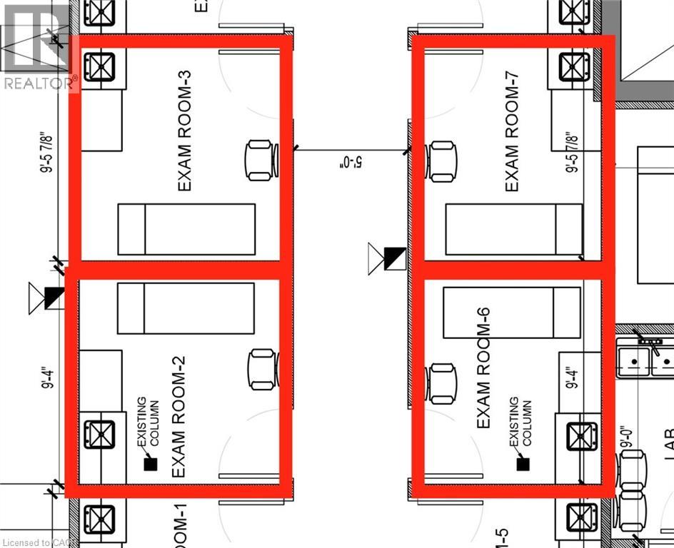
Professional sublease opportunity within a well-established, high-traffic pharmacy. Ideal for a wide range of healthcare professionals including physiotherapists, chiropractors, massage therapists, naturopaths, and other allied health practitioners seeking turnkey space in a collaborative healthcare environment. Multiple private rooms available, offering flexible configurations to suit a variety of medical or wellness uses. Benefit from strong existing patient flow, on-site pharmacy services, and excellent exposure in a convenient location. This is a rare opportunity to operate within an integrated care setting, creating potential for cross-referrals and enhanced patient experience. Flexible lease terms available. Perfect for practitioners looking to expand or establish their presence without the overhead of a full standalone office. (id:64974)
Quick Facts
- Property Type: Office
- Bedrooms: None
- Bathrooms: None
- Living Area: 106 sq ft (9.8 m²)
- Ownership: Freehold
- Frontage: 714 ft (217.6 m)
Listing Provided by: RE/MAX Escarpment Realty Inc.
Board: Cornerstone Association of REALTORS®
Data provided via CREA DDF®.
Detailed Features
Interior & Systems
- Basement: None
Exterior & Construction
- Sewer: Municipal sewage system
- Water: Municipal water
Lot & Land
- Frontage: 714 ft (217.6 m)
- Zoning: CN
Community & Neighbourhood
- Subdivision: 631 - Caledonia North East
Listing Information
Listing History
MLS listing activity for 34 RICHARD WILLIAM Drive, Caledonia, Ontario, N3W0G8 — dates reflect when changes were recorded in the DDF
🚗 Travel times
Neighborhood Walkability
Mortgage & Cost Calculators
Nearby Homes ?Nearby Homes — Search CriteriaSearch Radius1 kmPrice Range±5%Match BedroomsYesMatch BathroomsYes

34 RICHARD WILLIAM Drive, Caledonia
Office$500/mo
Listing Courtesy of RE/MAX Escarpment Realty Inc.

34 RICHARD WILLIAM Drive, Caledonia
Office$1,000/mo
Listing Courtesy of RE/MAX Escarpment Realty Inc.
Similar Homes ?Similar Homes — Search CriteriaSearch Radius5 kmPrice Range±5%Match Home TypeYesMatch BedroomsYes

201 - 50 STEELES AVENUE E, Milton (MN Milton North)
Offices$750/mo
Listing Courtesy of CENTURY 21 RED STAR REALTY INC.

3 - 213 HORSESHOE VALLEY ROAD E, Oro-Medonte
Offices$750/mo
Listing Courtesy of REAL BROKER ONTARIO LTD.

150 - 4 ROBERT SPECK PARKWAY, Mississauga (City Centre)
Offices$750/mo
Listing Courtesy of BEST SELLERS REAL ESTATE LTD.

304-305 - 1670 NORTH SERVICE ROAD, Oakville (QE Queen Elizabeth)
Offices$750/mo
Listing Courtesy of SAVE MAX EMPIRE REALTY

67 MEG DRIVE, London South (South X)
Offices$750/mo
$9,815/yr taxListing Courtesy of CENTURY 21 FIRST CANADIAN CORP

202A - 4544 DUFFERIN STREET W, Toronto (York University Heights)
Offices$750/mo
Listing Courtesy of CENTURY 21 HERITAGE GROUP LTD.

205 - 16 MOUNTAINVIEW ROAD S, Halton Hills (Georgetown)
Offices$740/mo
$355/yr taxListing Courtesy of Royal Lepage Real Estate Associates

302-08 - 3390 SOUTH SERVICE ROAD, Burlington (Industrial Burlington)
Offices$730/mo
Listing Courtesy of RE/MAX PREMIER INC.

357 MAIN Street E Unit# 203, Hamilton
Office$725/mo
Listing Courtesy of Royal LePage Macro Realty

203 - 357 MAIN STREET E, Hamilton (Landsdale)
Offices$725/mo
Listing Courtesy of ROYAL LEPAGE MACRO REALTY

308 - 321 - 466 SPEERS ROAD, Oakville (QE Queen Elizabeth)
Offices$777/mo
Listing Courtesy of Realty Executives Plus Ltd., Brokerage

305 - 466 SPEERS ROAD, Oakville (QE Queen Elizabeth)
Offices$777/mo
Listing Courtesy of Realty Executives Plus Ltd., Brokerage

100F - 253 DANFORTH AVENUE, Toronto (East End-Danforth)
Offices$720/mo
Listing Courtesy of REAL ESTATE HOMEWARD

230K - 55 NUGGET AVENUE, Toronto (Agincourt South-Malvern West)
Offices$716/mo
Listing Courtesy of RE/MAX EXCEL REALTY LTD.
Similar Properties ?Active Comparables — Search CriteriaSearch Radius2 kmPrice Range±5%Match Home TypeYesMatch BedroomsYes

201 - 50 STEELES AVENUE E, Milton (MN Milton North)
Offices$750/mo
Listing Courtesy of CENTURY 21 RED STAR REALTY INC.

3 - 213 HORSESHOE VALLEY ROAD E, Oro-Medonte
Offices$750/mo
Listing Courtesy of REAL BROKER ONTARIO LTD.

150 - 4 ROBERT SPECK PARKWAY, Mississauga (City Centre)
Offices$750/mo
Listing Courtesy of BEST SELLERS REAL ESTATE LTD.

304-305 - 1670 NORTH SERVICE ROAD, Oakville (QE Queen Elizabeth)
Offices$750/mo
Listing Courtesy of SAVE MAX EMPIRE REALTY

67 MEG DRIVE, London South (South X)
Offices$750/mo
$9,815/yr taxListing Courtesy of CENTURY 21 FIRST CANADIAN CORP

202A - 4544 DUFFERIN STREET W, Toronto (York University Heights)
Offices$750/mo
Listing Courtesy of CENTURY 21 HERITAGE GROUP LTD.

205 - 16 MOUNTAINVIEW ROAD S, Halton Hills (Georgetown)
Offices$740/mo
$355/yr taxListing Courtesy of Royal Lepage Real Estate Associates

302-08 - 3390 SOUTH SERVICE ROAD, Burlington (Industrial Burlington)
Offices$730/mo
Listing Courtesy of RE/MAX PREMIER INC.

357 MAIN Street E Unit# 203, Hamilton
Office$725/mo
Listing Courtesy of Royal LePage Macro Realty

203 - 357 MAIN STREET E, Hamilton (Landsdale)
Offices$725/mo
Listing Courtesy of ROYAL LEPAGE MACRO REALTY

308 - 321 - 466 SPEERS ROAD, Oakville (QE Queen Elizabeth)
Offices$777/mo
Listing Courtesy of Realty Executives Plus Ltd., Brokerage

305 - 466 SPEERS ROAD, Oakville (QE Queen Elizabeth)
Offices$777/mo
Listing Courtesy of Realty Executives Plus Ltd., Brokerage

100F - 253 DANFORTH AVENUE, Toronto (East End-Danforth)
Offices$720/mo
Listing Courtesy of REAL ESTATE HOMEWARD

230K - 55 NUGGET AVENUE, Toronto (Agincourt South-Malvern West)
Offices$716/mo
Listing Courtesy of RE/MAX EXCEL REALTY LTD.
No rental comparables found in this area.
Sold Comparables
Access to sold property data requires a registered and verified account with TRREB DDF integration.
Coming SoonRented Comparables
Access to rented property data requires a registered and verified account with TRREB DDF integration.
Coming SoonBook a Viewing
34 RICHARD WILLIAM Drive, Caledonia, Ontario, N3W0G8
