34 - 119 D'AMBROSIO DRIVE, Barrie (Painswick North), Ontario, L4N7R7
MLS: S12901870 | Townhouse (Condo)
$519,000



























Property Description
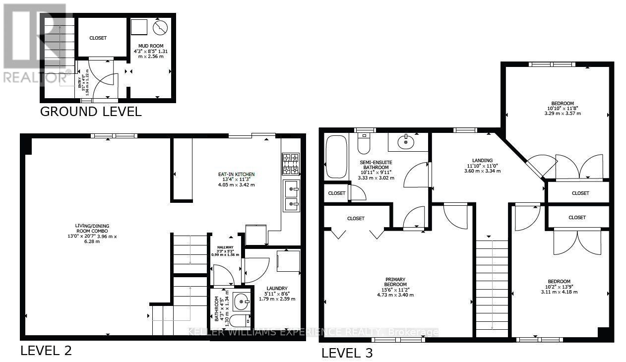
Sun-filled and beautifully updated, this 3-bedroom, 2-bath stacked condo townhome offers stylish, low-maintenance living in a quiet, convenient neighbourhood close to shopping, schools, the GO Train, commuter routes, and the lake. Renovated in 2022 by the current owner, the home features a stunning updated kitchen with quartz countertops and gray shaker cabinets, an undermount double stainless sink, backsplash, stainless steel appliances, and new laminate, vinyl, and broadloom flooring throughout. Both bathrooms have been fully renovated, and the interior has been painted in neutral tones, creating a bright, warm, and modern feel. Large windows bring in abundant natural light from all directions, while each bedroom offers a full-size closet and generous window space. Additional features include in-suite laundry, a gas furnace (2022), central air conditioning (2023), newer vinyl double-hung tilt windows, a new front door with screen door, a spacious deck, dedicated parking, and clear pride of ownership throughout. Spacious and suitable for all ages, this well-maintained property also offers very affordable condo fees ($383.00) that cover all the exterior maintenance and common areas, making for easy, worry-free living. (id:64974)
Quick Facts
- Property Type: Townhouse (Condo)
- Bedrooms: 3 (3 above)
- Bathrooms: 2 (1 half)
- Ownership: Condo/Strata
- Attached: Yes
- Parking: 1.0 space (No Garage)
Costs
- Annual Taxes: $2,894.10 (2025)
- Condo/HOA Fee: $383.00 / monthly
- Corp: MVP Condos
- Includes: Common Area Maintenance, Parking
Listing Provided by: KELLER WILLIAMS EXPERIENCE REALTY
Board: Toronto Regional Real Estate Board
Data provided via CREA DDF®.
Detailed Features
Interior & Systems
- Heating: Forced air, Natural gas
- Cooling: Central air conditioning
- Basement: None
- Appliances: Washer, Refrigerator, Water meter, Dishwasher, Stove, Dryer, Window Coverings
- Flooring: Tile, Laminate, Vinyl
Exterior & Construction
- Exterior: Vinyl siding, Brick Veneer
- Foundation: Block, Concrete
Lot & Land
- Features: Balcony
- Zoning: RM2 Residential Condominium
Community & Neighbourhood
- Community: Pets Allowed With Restrictions
- Building: Separate Heating Controls, Visitor Parking
- Neighbourhood: Painswick North
Room Details (10 rooms)
Listing Information
Listing History
Buy/Sell/Terminated/Expired listing history for 34 - 119 D'AMBROSIO DRIVE, Barrie (Painswick North), Ontario, L4N7R7
Location & Neighborhood
🚗 Travel times
Neighborhood Walkability
Mortgage & Cost Calculators
Nearby Homes (Within 2km)
Similar Homes
Similar Properties
No rental comparables found in this area.
Sold Comparables
Access to sold property data requires a registered and verified account with TRREB DDF integration.
Coming SoonRented Comparables
Access to rented property data requires a registered and verified account with TRREB DDF integration.
Coming Soon



















