3395 CLIFF Road N Unit# 38, Mississauga, Ontario, L5A3M7
MLS: 40802124 | Townhouse (Condo)
$723,999


















































Property Description
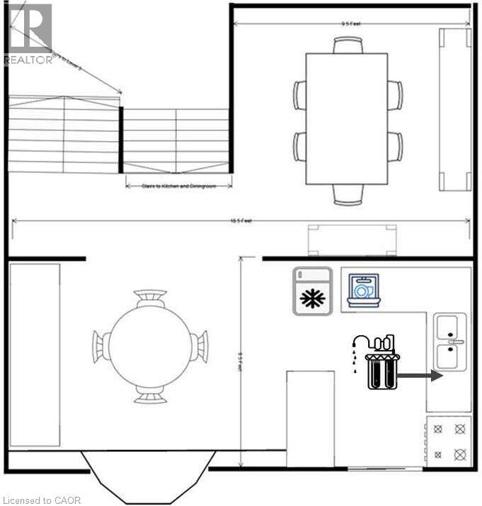
For more info on this property, please click the Brochure button. This townhouse offers a Livingroom with a 12-foot ceiling with a ceiling fan, plus large windows that flood the living area with abundant natural light. An open concept layout connects Kitchen, Dining and Living rooms, while still providing a degree of privacy between these areas. The Livingroom’s walk-out to the deck provides an extra 400 square feet of Summer/Fall living space. And a supervised outdoor swimming pool adds to your outdoor enjoyment. The Deck's Fencing (newly installed in 2025) and the expansive green space beyond it provides a desirable degree of outdoor privacy not often found. Inside a new clothes washer and dryer were installed in 2024, and a High Efficiency Gas Furnace was installed in 2023. Also, the kitchen offers 4 appliances, which includes a Reverse Osmosis Water Purification System and Drinking Water Tap. This townhouse complex has been managed for over 30 years by GSA Property Management who provides very responsive and professional care for the exterior of our homes and all common areas. Canada Post and Amazon provide deliver direct to each home, while Mississauga Transit and Cooksville GO trains/buses are close by. In addition, you can walk to schools, parks, as well as the next-door recreation center. Plus, you can shop for groceries at two nearby plazas and have Square One within walking distance or a quick drive. There is also easy access to Highways 403, 401, 410, 427, 407, QEW, and Toronto’s International Airport. In addition, there are 5 visitor parking spots on the cul-de-sac where this townhouse is located, which enables visitors to park across from your front door. (id:64974)
Quick Facts
- Property Type: Townhouse (Condo)
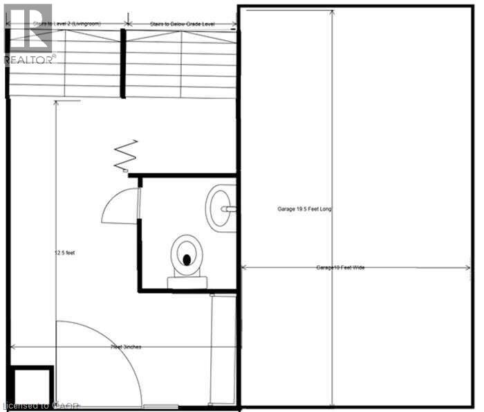
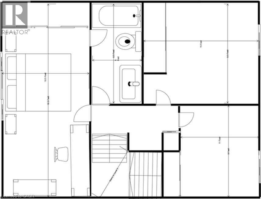
- Bedrooms: 4 (3 above, 1 below)
- Bathrooms: 2 (1 half)
- Living Area: 1,350 sq ft (125.4 m²)
- Above Grade: 1,160 sq ft (107.8 m²)
- Below Grade: 190 sq ft (17.7 m²)
- Year Built: 1977
- Ownership: Condo/Strata
- Attached: Yes
- Parking: 2 spaces (Attached Garage, Visitor Parking)
Costs
- Annual Taxes: $4,052.00
- Condo/HOA Fee: $569.00 / monthly
- Includes: Landscaping, Property Management, Water
Listing Provided by: Easy List Realty Ltd.
Board: Cornerstone Association of REALTORS®
Data provided via CREA DDF®.
Detailed Features
Interior & Systems
- Heating: Forced air
- Cooling: Central air conditioning
- Basement: Unfinished, Partial
- Appliances: Washer, Refrigerator, Water purifier, Dishwasher, Stove, Dryer, Hood Fan, Window Coverings, Garage door opener
- Security: Smoke Detectors
Exterior & Construction
- Exterior: Wood, Brick, Shingles
- Construction: Wood frame
- Sewer: Municipal sewage system
- Water: Municipal water
Lot & Land
- Features: Cul-de-sac, Automatic Garage Door Opener
- Zoning: RM5
Community & Neighbourhood
- Community: Community Centre
- Subdivision: 0230 - Mississauga Valley
Room Details (16 rooms)
Listing Information
Listing History
Buy/Sell/Terminated/Expired listing history for 3395 CLIFF Road N Unit# 38, Mississauga, Ontario, L5A3M7
Location & Neighborhood
🚗 Travel times
Neighborhood Walkability
Mortgage & Cost Calculators
Nearby Homes (Within 2km)
Similar Homes
Similar Properties
No rental comparables found in this area.
Sold Comparables
Access to sold property data requires a registered and verified account with TRREB DDF integration.
Coming SoonRented Comparables
Access to rented property data requires a registered and verified account with TRREB DDF integration.
Coming Soon
























