3362 MONTROSE ROAD, Fort Erie (Stevensville), Ontario, L3B5N7
MLS: X12965458 | House (Freehold)
$1,250,000



















































Property Description
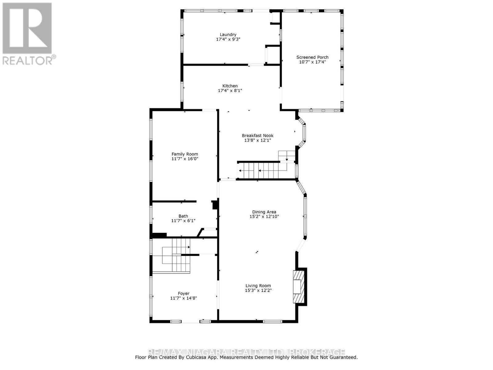
Your country escape awaits, just minutes from the city of Niagara Falls! Located right on the edge of the Niagara Falls city boundary, this spacious and character-filled two-storey home, offers over 2,400 square feet of comfortable living space set on an expansive 11+ acre country property. Perfect for those seeking peace, privacy, and the flexibility of rural living, this unique property is ideal for hobby farm enthusiasts or anyone dreaming of life in the country. Step inside to find 5 generous bedrooms, 2 full bathrooms, and the convenience of main floor laundry. The home is full of charm and warmth, with thoughtful details throughout. Step outside and enjoy the outdoors from not one but two large composite decks, at the front and rear, perfect for entertaining, relaxing, or taking in the stunning views of mature trees and your own private pond. The land is a rare find, with many farmable acres, ideal for gardening, crops, or animals. Three versatile outbuildings provide exceptional storage and workspace, two function as shops or garages, and a third is perfectly suited for housing animals. This is more than just a home, it's a lifestyle. Whether you're looking to grow your own food, raise animals, or simply enjoy wide-open space, this one-of-a-kind rural retreat has it all. Experience the possibilities of country living at its finest. (id:64974)
Quick Facts
- Property Type: House (Freehold)
- Bedrooms: 5 (5 above)
- Bathrooms: 2
- Ownership: Freehold
- Attached: No
- Fireplaces: Yes
- Parking: 13.0 spaces (Garage, Other)
- Frontage: 421 ft (128.2 m)
Costs
- Annual Taxes: $2,570.95
Listing Provided by: RE/MAX NIAGARA REALTY LTD, BROKERAGE
Board: Niagara Association of REALTORS®
Data provided via CREA DDF®.
Detailed Features
Interior & Systems
- Heating: Radiant heat, Natural gas
- Cooling: None
- Basement: Unfinished, N/A
- Appliances: Washer, Refrigerator, Stove, Dryer, Microwave, Freezer, Hood Fan, Water Heater - Tankless
- Utilities: Electricity
Exterior & Construction
- Exterior: Vinyl siding
- Foundation: Unknown
- Sewer: Septic System
- Water: Cistern
Lot & Land
- Frontage: 421 ft (128.2 m)
- Features: Irregular lot size
Community & Neighbourhood
- Neighbourhood: 328 - Stevensville
Listing Information
Listing History
Buy/Sell/Terminated/Expired listing history for 3362 MONTROSE ROAD, Fort Erie (Stevensville), Ontario, L3B5N7
Location & Neighborhood
🚗 Travel times
Neighborhood Walkability
Mortgage & Cost Calculators
Nearby Homes (Within 2km)
Similar Homes
Similar Properties
No rental comparables found in this area.
Sold Comparables
Access to sold property data requires a registered and verified account with TRREB DDF integration.
Coming SoonRented Comparables
Access to rented property data requires a registered and verified account with TRREB DDF integration.
Coming Soon















