3327 WILTSHIRE Boulevard, Niagara Falls, Ontario, L2J3M1
MLS: 40813779 | House (Freehold)
$799,888


















































Property Description
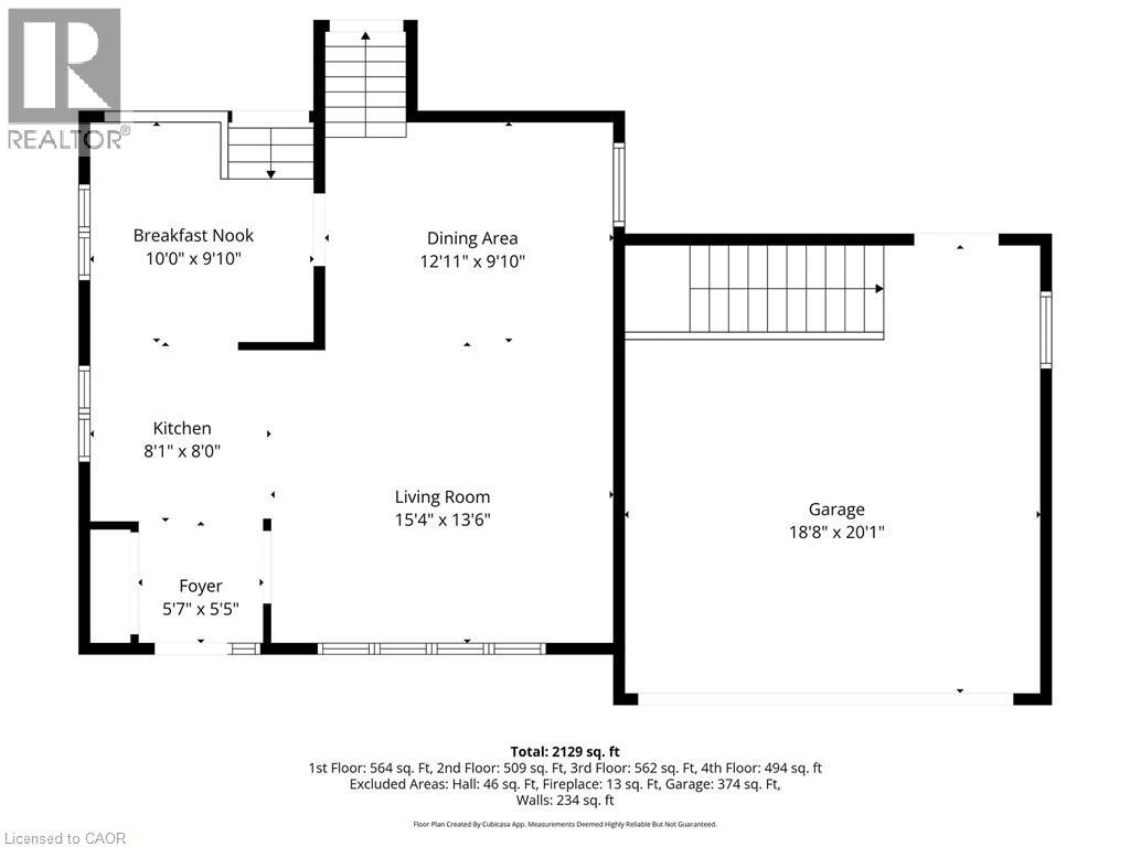
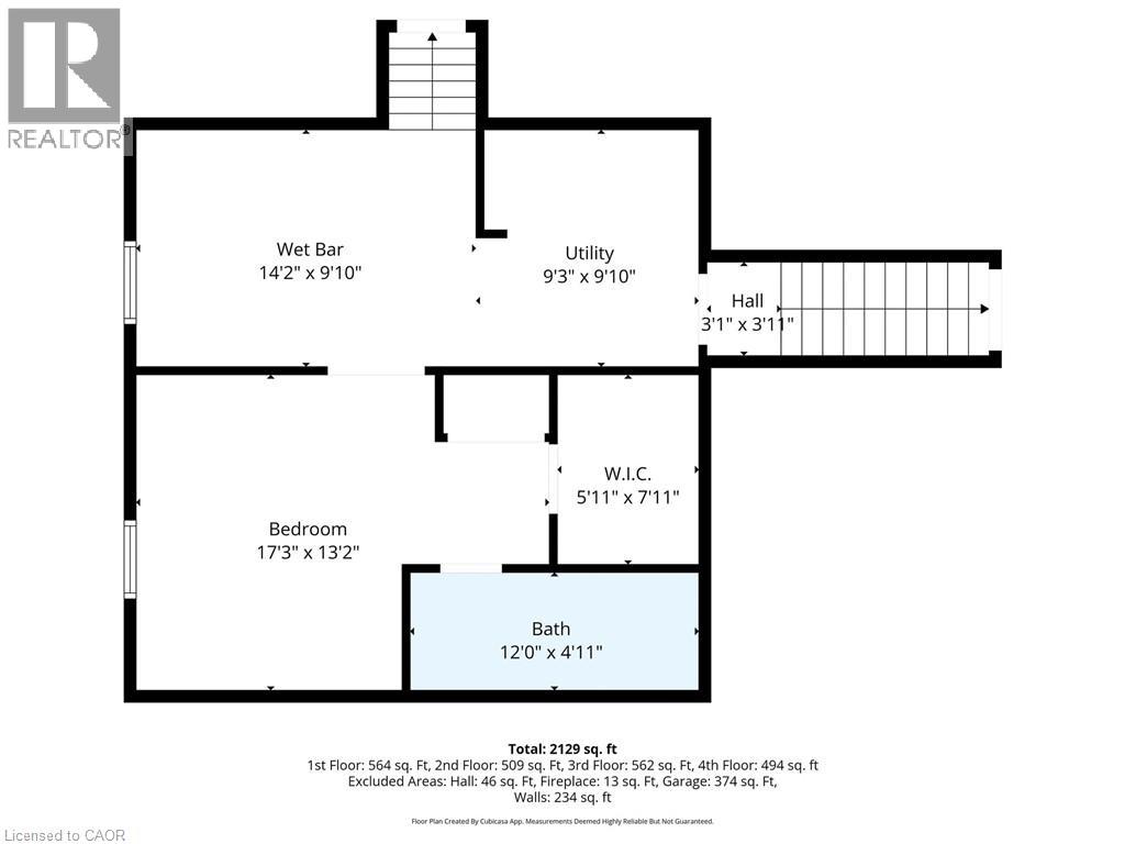
Welcome to this extensively updated backsplit, perfectly situated in the highly desirable Rolling Acres community in Niagara Falls. Offering a fantastic combination of modern updates, versatile living space, and an unbeatable location, this home is ideal for growing families and multi-generational living alike. The exterior has been thoughtfully refreshed with major upgrades including a new roof (2024), new siding (2024), and a covered awning updated in 2024, enhancing both curb appeal and durability. Inside, you’re greeted by a bright and airy main level with an open-concept design, featuring a generous living and dining area that seamlessly connects to a stylish, updated kitchen complete with contemporary finishes, quality flooring, and California shutters. Overlooking the kitchen is a warm and inviting family room, highlighted by a large sun-filled window and a cozy gas fireplace—perfect for relaxing or hosting guests. The upper level offers three well-sized bedrooms and a full bathroom, providing comfortable space for the whole family. On the lower level, you’ll find an additional bedroom, a 3-piece bathroom, laundry area, and a walk-up to the backyard, where a covered patio creates the perfect setting for outdoor entertaining. The fully finished basement adds even more flexibility, featuring separate access from both the garage and basement, a kitchenette, another bedroom, full bath, laundry space equipped with washer and dryer and additional living space—ideal for an in-law suite, extended family, or potential income opportunity. Located in a sought-after, family-friendly neighbourhood, this home is just minutes from highways, parks, schools, and all essential amenities. With countless updates already completed and so much space to enjoy, this is a rare opportunity you won’t want to miss! (id:64974)
Quick Facts
- Property Type: House (Freehold)
- Bedrooms: 5 (3 above, 2 below)
- Bathrooms: 3
- Living Area: 1,565 sq ft (145.4 m²)
- Above Grade: 1,565 sq ft (145.4 m²)
- Ownership: Freehold
- Attached: No
- Parking: 4.0 spaces (Attached Garage)
- Frontage: 60 ft (18.3 m)
Costs
- Annual Taxes: $5,771.07
Listing Provided by: Royal LePage State Realty Inc.
Board: Cornerstone Association of REALTORS®
Data provided via CREA DDF®.
Detailed Features
Interior & Systems
- Heating: Forced air, Natural gas
- Cooling: Central air conditioning
- Basement: Finished, Full
- Appliances: Washer, Refrigerator, Central Vacuum, Dishwasher, Stove, Dryer, Microwave, Hood Fan, Window Coverings, Garage door opener
Exterior & Construction
- Exterior: Brick
- Sewer: Municipal sewage system
- Water: Municipal water
Lot & Land
- Frontage: 60 ft (18.3 m)
- Features: Automatic Garage Door Opener
- Zoning: R1B, R1D
Community & Neighbourhood
- Community: Quiet Area
- Subdivision: 207 - Casey
Room Details (15 rooms)
Listing Information
Listing History
MLS listing activity for 3327 WILTSHIRE Boulevard, Niagara Falls, Ontario, L2J3M1 — dates reflect when changes were recorded in the DDF
🚗 Travel times
Neighborhood Walkability
Mortgage & Cost Calculators
Nearby Homes ?Nearby Homes — Search CriteriaSearch Radius1 kmPrice Range±5%Match BedroomsYesMatch BathroomsYes

3327 WILTSHIRE BOULEVARD, Niagara Falls (Casey)
House$799,888
$5,771/yr taxListing Courtesy of ROYAL LEPAGE STATE REALTY

7063 MCGILL STREET, Niagara Falls (Casey)
House$835,000
$4,425/yr taxListing Courtesy of PROPERTY.CA INC.

7260 CASEY STREET, Niagara Falls (Casey)
House$679,900
$4,332/yr taxListing Courtesy of EXP REALTY

7354 NORTH DORSET PLACE, Niagara Falls (Casey)
House$569,000
$3,822/yr taxListing Courtesy of ROYAL LEPAGE NRC REALTY

3261 PRIOR CRESCENT, Niagara Falls (Casey)
House$585,000
$4,004/yr taxListing Courtesy of RIGHT AT HOME REALTY

4 - 3232 MONTROSE ROAD, Niagara Falls (Mt. Carmel)
Condo - Row / Townhouse$669,900
$4,893/yr taxListing Courtesy of ROYAL LEPAGE NRC REALTY

7013 GLENGOWAN CRESCENT, Niagara Falls (Casey)
House$874,900
$4,777/yr taxListing Courtesy of RE/MAX NIAGARA REALTY LTD, BROKERAGE

23 - 7470 MONASTERY DRIVE, Niagara Falls (Mt. Carmel)
Condo - Row / Townhouse$529,800
$3,370/yr taxListing Courtesy of RE/MAX NIAGARA REALTY LTD, BROKERAGE

301 - 3364 MONTROSE ROAD, Niagara Falls (Mt. Carmel)
Condo - Apartment$399,000
$2,883/yr taxListing Courtesy of REVEL Realty Inc., Brokerage

6965 GLENGOWAN CRESCENT, Niagara Falls (Casey)
House$799,000
$5,815/yr taxListing Courtesy of ENGEL & VOLKERS NIAGARA

3399 CARDINAL DRIVE, Niagara Falls (Mt. Carmel)
House$799,900
$5,107/yr taxListing Courtesy of ROYAL LEPAGE NRC REALTY

3241 MONTROSE Road Unit# 10, Niagara Falls
Condo - Row / Townhouse$599,000
$4,781/yr taxListing Courtesy of RE/MAX Niagara Realty Ltd.

10 - 3241 MONTROSE ROAD, Niagara Falls (Mt. Carmel)
Condo - Row / Townhouse$599,000
$4,781/yr taxListing Courtesy of RE/MAX NIAGARA REALTY LTD, BROKERAGE

3616 DORCHESTER ROAD, Niagara Falls (Stamford)
House$2,100/mo
Listing Courtesy of ROCK STAR REAL ESTATE INC.

3316 MCLAREN CRESCENT, Niagara Falls (Stamford)
House$569,900
$3,600/yr taxListing Courtesy of TRIMAXX REALTY LTD.
Similar Homes ?Similar Homes — Search CriteriaSearch Radius5 kmPrice Range±5%Match Home TypeYesMatch BedroomsYes

3327 WILTSHIRE BOULEVARD, Niagara Falls (Casey)
House$799,888
$5,771/yr taxListing Courtesy of ROYAL LEPAGE STATE REALTY

8846 ANGIE DRIVE, Niagara Falls (Forestview)
House$828,000
$6,639/yr taxListing Courtesy of REVEL Realty Inc., Brokerage

5999 MONTROSE ROAD, Niagara Falls (West Wood)
House$769,900
$4,711/yr taxListing Courtesy of RE/MAX NIAGARA REALTY LTD, BROKERAGE

7063 MCGILL STREET, Niagara Falls (Casey)
House$835,000
$4,425/yr taxListing Courtesy of PROPERTY.CA INC.
Similar Properties ?Active Comparables — Search CriteriaSearch Radius2 kmPrice Range±5%Match Home TypeYesMatch BedroomsYes

3327 WILTSHIRE BOULEVARD, Niagara Falls (Casey)
House$799,888
$5,771/yr taxListing Courtesy of ROYAL LEPAGE STATE REALTY

7063 MCGILL STREET, Niagara Falls (Casey)
House$835,000
$4,425/yr taxListing Courtesy of PROPERTY.CA INC.
No rental comparables found in this area.
Sold Comparables
Access to sold property data requires a registered and verified account with TRREB DDF integration.
Coming SoonRented Comparables
Access to rented property data requires a registered and verified account with TRREB DDF integration.
Coming SoonBook a Viewing
3327 WILTSHIRE Boulevard, Niagara Falls, Ontario, L2J3M1
