332 - 354 GLADSTONE AVENUE, Ottawa, Ontario, K2P0R4
MLS: X12999638 | Apartment (Condo)
$345,000



































Property Description
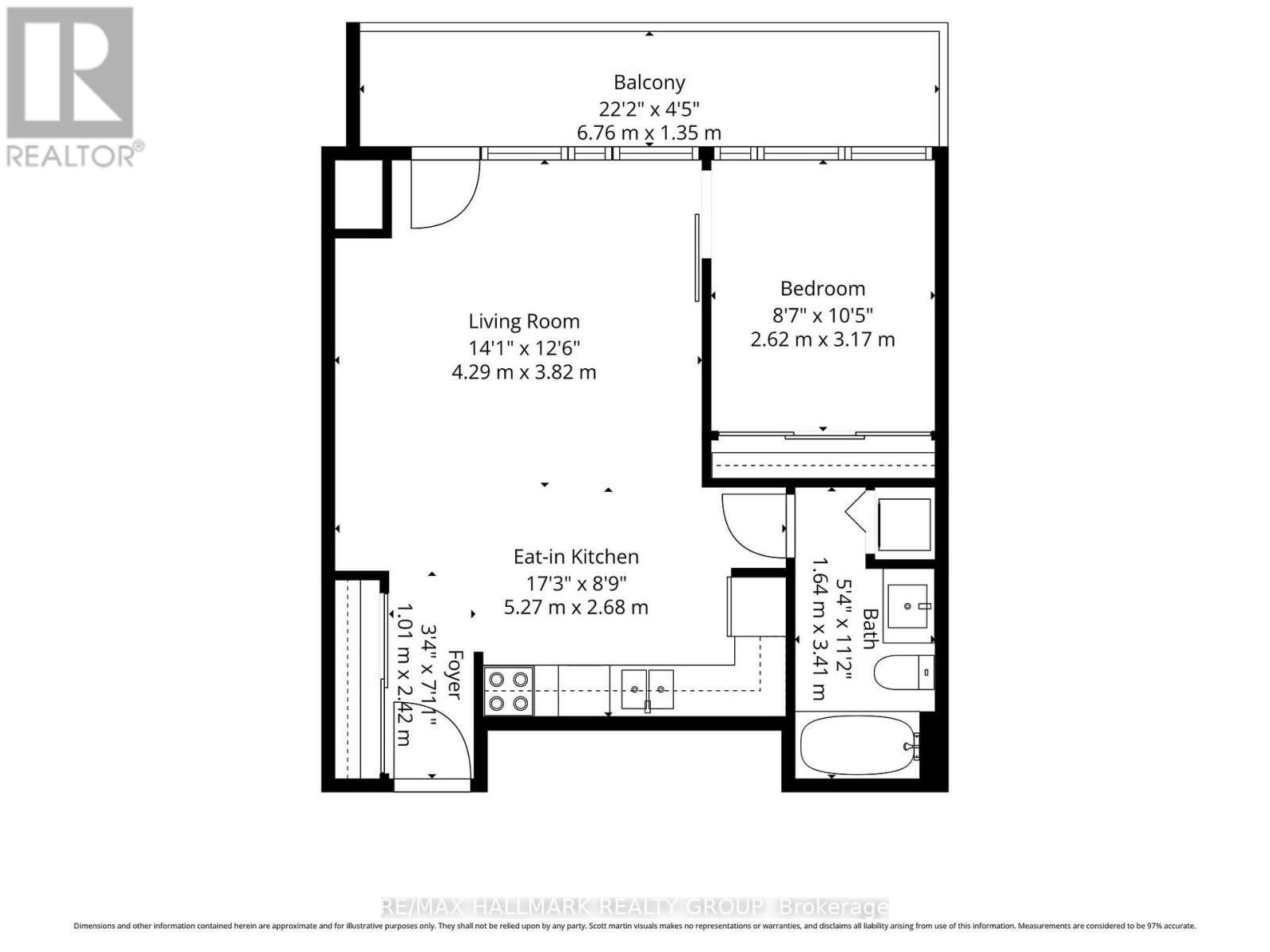
OPEN HOUSE SUNDAY APRIL 19th 11AM - 1PM Welcome to Central 1 by Urban Capital, a sought-after Centretown address known for its modern design and unbeatable walkability. This popularMontreal layout offers 613 sq ft of thoughtfully designed interior space plus a 105 sq ft private balcony, perfect for enjoying your morning coffee or unwinding at the end of the day. As an end unit, it provides added privacy and an abundance of natural light through floor-to-ceiling windows.Inside, you will find 9-foot concrete ceilings, engineered hardwood floors, and a clean, contemporary aesthetic throughout. The open-concept living space is complemented by brand new, never been used appliances and the convenience of in-suite laundry, making everyday living easy and efficient.Residents enjoy a full range of amenities including a fitness centre, party room, and a beautifully landscaped courtyard with gasBBQ, ideal for entertaining or relaxing outdoors. The building also features concierge service, bicycle storage, and secure entry for added peaceof mind. Condo fees include heat, water, building insurance, and all common element maintenance, with only hydro as an additional utility.Located steps to shops, cafés, groceries, transit, and everything downtown Ottawa has to offer, this is an excellent opportunity for first-time buyers, professionals, or investors looking for a stylish, low-maintenance home in a vibrant urban setting. (id:64974)
Quick Facts
- Property Type: Apartment (Condo)
- Bedrooms: 1 (1 above)
- Bathrooms: 1
- Ownership: Condo/Strata
- Attached: Yes
Costs
- Annual Taxes: $3,407.00 (2025)
- Condo/HOA Fee: $480.90 / monthly
- Corp: iCondo 613-688-1407
- Includes: Common Area Maintenance, Heat, Water, Insurance
Listing Provided by: RE/MAX HALLMARK REALTY GROUP
Board: Ottawa Real Estate Board
Data provided via CREA DDF®.
Detailed Features
Interior & Systems
- Heating: Forced air, Natural gas
- Cooling: Central air conditioning
- Basement: None
- Appliances: Washer, Refrigerator, Dishwasher, Stove, Dryer, Hood Fan, Window Coverings
Exterior & Construction
- Exterior: Concrete, Brick
Lot & Land
- Features: Balcony, Carpet Free, In suite Laundry
Community & Neighbourhood
- Community: Pets Allowed With Restrictions
- Building: Security/Concierge
- Neighbourhood: 4103 - Ottawa Centre
Room Details (4 rooms)
Listing Information
Listing History
MLS listing activity for 332 - 354 GLADSTONE AVENUE, Ottawa, Ontario, K2P0R4 — dates reflect when changes were recorded in the DDF
🚗 Travel times
Neighborhood Walkability
Mortgage & Cost Calculators
Nearby Homes ?Nearby Homes — Search CriteriaSearch Radius1 kmPrice Range±5%Match BedroomsYesMatch BathroomsYes

123 - 429 KENT STREET, Ottawa
Condo - Apartment$335,000
$3,689/yr taxListing Courtesy of ENGEL & VOLKERS OTTAWA

702 - 300 LISGAR STREET, Ottawa
Condo - Apartment$349,900
$3,431/yr taxListing Courtesy of ROYAL LEPAGE PERFORMANCE REALTY

1111 - 300 LISGAR STREET, Ottawa
Condo - Apartment$349,900
$3,701/yr taxListing Courtesy of RE/MAX HALLMARK REALTY GROUP

611 - 300 LISGAR STREET, Ottawa
Condo - Apartment$329,900
$3,577/yr taxListing Courtesy of EXP REALTY

908 - 138 SOMERSET STREET W, Ottawa
Condo - Apartment$339,900
$3,443/yr taxListing Courtesy of REMAX BOARDWALK REALTY

1208 - 324 LAURIER AVENUE W, Ottawa
Condo - Apartment$349,900
$3,635/yr taxListing Courtesy of ONE PERCENT REALTY LTD.
Similar Homes ?Similar Homes — Search CriteriaSearch Radius5 kmPrice Range±5%Match Home TypeYesMatch BedroomsYes

814 - 238 BESSERER STREET, Ottawa
Condo - Apartment$345,000
$3,836/yr taxListing Courtesy of RE/MAX HALLMARK REALTY GROUP

204 - 242 RIDEAU STREET, Ottawa
Condo - Apartment$344,900
$3,946/yr taxListing Courtesy of ROYAL LEPAGE PERFORMANCE REALTY

1111 - 300 LISGAR STREET, Ottawa
Condo - Apartment$349,900
$3,701/yr taxListing Courtesy of RE/MAX HALLMARK REALTY GROUP

103 - 360 PATRICIA AVENUE, Ottawa
Condo - Apartment$349,900
$3,240/yr taxListing Courtesy of RE/MAX HALLMARK REALTY GROUP

1905 - 20 DALY AVENUE, Ottawa
Condo - Apartment$349,900
$4,229/yr taxListing Courtesy of RE/MAX HALLMARK REALTY GROUP

702 - 300 LISGAR STREET, Ottawa
Condo - Apartment$349,900
$3,431/yr taxListing Courtesy of ROYAL LEPAGE PERFORMANCE REALTY

1208 - 324 LAURIER AVENUE W, Ottawa
Condo - Apartment$349,900
$3,635/yr taxListing Courtesy of ONE PERCENT REALTY LTD.

802 - 101 QUEEN STREET, Ottawa
Condo - Apartment$349,999
$4,332/yr taxListing Courtesy of ROYAL LEPAGE INTEGRITY REALTY

1904A - 234 RIDEAU STREET, Ottawa
Condo - Apartment$350,000
$3,394/yr taxListing Courtesy of ROYAL LEPAGE TEAM REALTY

908 - 138 SOMERSET STREET W, Ottawa
Condo - Apartment$339,900
$3,443/yr taxListing Courtesy of REMAX BOARDWALK REALTY

611 - 111 CHAMPAGNE AVENUE, Ottawa
Condo - Apartment$339,900
$4,094/yr taxListing Courtesy of RE/MAX HALLMARK REALTY GROUP

208 - 555 ANAND PRIVATE, Ottawa
Condo - Apartment$339,900
$3,393/yr taxListing Courtesy of RE/MAX HALLMARK REALTY GROUP

807 - 238 BESSERER STREET, Ottawa
Condo - Apartment$339,900
$3,816/yr taxListing Courtesy of RE/MAX HALLMARK REALTY GROUP

1303 - 242 RIDEAU STREET, Ottawa
Condo - Apartment$339,000
$3,996/yr taxListing Courtesy of ROYAL LEPAGE TEAM REALTY

2201 - 20 DALY AVENUE, Ottawa
Condo - Apartment$339,000
$4,032/yr taxListing Courtesy of EXP REALTY
Similar Properties ?Active Comparables — Search CriteriaSearch Radius2 kmPrice Range±5%Match Home TypeYesMatch BedroomsYes

814 - 238 BESSERER STREET, Ottawa
Condo - Apartment$345,000
$3,836/yr taxListing Courtesy of RE/MAX HALLMARK REALTY GROUP

204 - 242 RIDEAU STREET, Ottawa
Condo - Apartment$344,900
$3,946/yr taxListing Courtesy of ROYAL LEPAGE PERFORMANCE REALTY

702 - 300 LISGAR STREET, Ottawa
Condo - Apartment$349,900
$3,431/yr taxListing Courtesy of ROYAL LEPAGE PERFORMANCE REALTY

1111 - 300 LISGAR STREET, Ottawa
Condo - Apartment$349,900
$3,701/yr taxListing Courtesy of RE/MAX HALLMARK REALTY GROUP

1208 - 324 LAURIER AVENUE W, Ottawa
Condo - Apartment$349,900
$3,635/yr taxListing Courtesy of ONE PERCENT REALTY LTD.

1905 - 20 DALY AVENUE, Ottawa
Condo - Apartment$349,900
$4,229/yr taxListing Courtesy of RE/MAX HALLMARK REALTY GROUP

802 - 101 QUEEN STREET, Ottawa
Condo - Apartment$349,999
$4,332/yr taxListing Courtesy of ROYAL LEPAGE INTEGRITY REALTY

1904A - 234 RIDEAU STREET, Ottawa
Condo - Apartment$350,000
$3,394/yr taxListing Courtesy of ROYAL LEPAGE TEAM REALTY

611 - 111 CHAMPAGNE AVENUE, Ottawa
Condo - Apartment$339,900
$4,094/yr taxListing Courtesy of RE/MAX HALLMARK REALTY GROUP

807 - 238 BESSERER STREET, Ottawa
Condo - Apartment$339,900
$3,816/yr taxListing Courtesy of RE/MAX HALLMARK REALTY GROUP

908 - 138 SOMERSET STREET W, Ottawa
Condo - Apartment$339,900
$3,443/yr taxListing Courtesy of REMAX BOARDWALK REALTY

1303 - 242 RIDEAU STREET, Ottawa
Condo - Apartment$339,000
$3,996/yr taxListing Courtesy of ROYAL LEPAGE TEAM REALTY

2201 - 20 DALY AVENUE, Ottawa
Condo - Apartment$339,000
$4,032/yr taxListing Courtesy of EXP REALTY

612 - 238 BESSERER STREET, Ottawa
Condo - Apartment$339,000
$3,456/yr taxListing Courtesy of EXP REALTY

810 - 238 BESSERER STREET, Ottawa
Condo - Apartment$339,000
$3,701/yr taxListing Courtesy of RIGHT AT HOME REALTY

180 George Street Unit# PH208, Ottawa
Condo - Apartment$2,990/mo
Listing Courtesy of RE/MAX SUDBURY INC., BROKERAGE

704 - 90 GEORGE STREET, Ottawa
Condo - Apartment$2,700/mo
Listing Courtesy of RE/MAX HALLMARK REALTY GROUP

1007 - 238 BESSERER STREET, Ottawa
Condo - Apartment$2,600/mo
Listing Courtesy of DYNAMIC EDGE REALTY GROUP INC.

2706 - 40 NEPEAN STREET N, Ottawa
Condo - Apartment$2,500/mo
Listing Courtesy of REMAX BOARDWALK REALTY

1410 - 255 BAY STREET, Ottawa
Condo - Apartment$2,450/mo
Listing Courtesy of RE/MAX HALLMARK REALTY GROUP

910 - 255 BAY STREET, Ottawa
Condo - Apartment$2,395/mo
Listing Courtesy of ROYAL LEPAGE INTEGRITY REALTY

2502 - 40 NEPEAN STREET, Ottawa
Condo - Apartment$2,350/mo
Listing Courtesy of ROYAL LEPAGE TEAM REALTY

334 GLOUCESTER STREET, Ottawa
Condo - Apartment$2,300/mo
Listing Courtesy of LOTFUL REALTY

3801 - 805 CARLING AVENUE, Ottawa
Condo - Apartment$2,300/mo
Listing Courtesy of ROYAL LEPAGE TEAM REALTY

300 LETT STREET, Ottawa
Condo - Apartment$2,300/mo
Listing Courtesy of CENTURY 21 SYNERGY REALTY INC.

201 - 224 LYON STREET N, Ottawa
Condo - Apartment$2,300/mo
Listing Courtesy of LOTFUL REALTY

905 - 805 CARLING AVENUE, Ottawa
Condo - Apartment$2,295/mo
Listing Courtesy of ROYAL LEPAGE TEAM REALTY

#1601 - 199 SLATER STREET, Ottawa
Condo - Apartment$2,250/mo
Listing Courtesy of RIGHT AT HOME REALTY

404 - 234 RIDEAU STREET, Ottawa
Condo - Apartment$2,250/mo
Listing Courtesy of RE/MAX PARAMOUNT REALTY

2115 - 199 SLATER STREET, Ottawa
Condo - Apartment$2,225/mo
Listing Courtesy of RE/MAX HALLMARK REALTY GROUP
Sold Comparables
Access to sold property data requires a registered and verified account with TRREB DDF integration.
Coming SoonRented Comparables
Access to rented property data requires a registered and verified account with TRREB DDF integration.
Coming SoonBook a Viewing
332 - 354 GLADSTONE AVENUE, Ottawa, Ontario, K2P0R4
