329 ARTHUR STREET, Wellington North (Mount Forest), Ontario, N0G2L3
MLS: X12594642 | Townhouse (Freehold)
$2,550.00 / monthly












Property Description
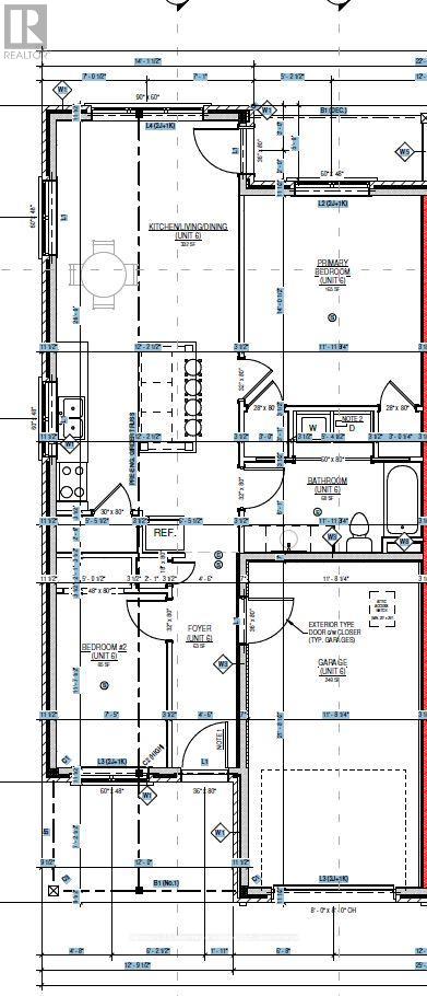
Brand new 2 bed, 1 bath townhouse with attached garage for rent in Mount Forest. This beautifully built home includes 6 brand new appliances, in floor heating, covered deck and a backyard! Walking distance to the hospital, medical center, arena and downtown. (id:64974)
Directions: Cross Streets: Arthur St & Queen St. ** Directions: 329 Arthur St, Mount Forest ON, N0G 2L3.
Quick Facts
- Property Type: Townhouse (Freehold)
- Bedrooms: 2 (2 above)
- Bathrooms: 1
- Ownership: Freehold
- Attached: Yes
- Parking: 3 spaces (Attached Garage, Garage)
Listing Provided by: Century 21 Heritage House Ltd.
Board: OnePoint Association of REALTORS®
Data provided via CREA DDF®.
Detailed Features
Interior & Systems
- Heating: Forced air, Natural gas
- Cooling: Central air conditioning
- Basement: None
- Utilities: Sewer, Electricity, Cable
Exterior & Construction
- Exterior: Brick
- Foundation: Slab
- Sewer: Sanitary sewer
- Water: Municipal water
Lot & Land
- Features: In suite Laundry
Community & Neighbourhood
- Neighbourhood: Mount Forest
Listing Information
Listing History
Buy/Sell/Terminated/Expired listing history for 329 ARTHUR STREET, Wellington North (Mount Forest), Ontario, N0G2L3
Location & Neighborhood
📍
🚗 Travel times
Neighborhood Walkability
Mortgage & Cost Calculators
Nearby Homes (Within 2km)
Similar Homes
Similar Properties
Active Comparables
Rent Comparables
Sold Comparables
Rented Comparables
Sold Comparables
Access to sold property data requires a registered and verified account with TRREB DDF integration.
Coming SoonRented Comparables
Access to rented property data requires a registered and verified account with TRREB DDF integration.
Coming Soon














