329 & 331 BROWNS LINE, Tay (Waubaushene), Ontario, L0K2C0
MLS: S12902496 | House (Freehold)
$779,900

































Property Description
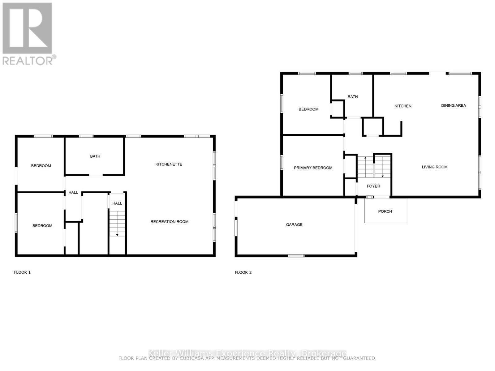
Rare Double Lot. Multi-Generational Setup. Endless Storage.Welcome to 329 & 331 Browns Line Road - a beautifully maintained raised bungalow offering over 2,000 sq ft of finished living space across two fully self-contained levels.The main floor features 2 bedrooms, a renovated 4-piece bath, and an updated kitchen filled with natural light. The lower level offers a private 1-bedroom suite with its own full kitchen and bath - perfect for extended family or flexible living.What makes this property exceptional?Two separately deeded 50 x 140 ft lots included on a dead end road.That means space for trailers, boats, snowmobiles, ATVs, gardens, and more - with a negotiable sea container for additional storage. The backyard has been professionally redesigned with raised beds and a private patio retreat.Located across from Waubaushene Beaches Provincial Park and just 1.3 km to Georgian Bay water access and the Trans Canada Trail. Less than 2 minutes to Hwy 400 - 35 minutes to Barrie, 90 minutes to Toronto.Built in 1998 | Septic + Municipal Water | Taxes approx. $2,703Space. Privacy. Flexibility. And a double lot - a rare find in Waubaushene. (id:64974)
Quick Facts
- Property Type: House (Freehold)
- Style: Raised bungalow
- Bedrooms: 3 (2 above, 1 below)
- Bathrooms: 2
- Ownership: Freehold
- Attached: No
- Parking: 6.0 spaces (Attached Garage, Garage)
- Frontage: 100 ft (30.5 m)
Costs
- Annual Taxes: $2,824.00
Listing Provided by: Keller Williams Experience Realty
Board: OnePoint Association of REALTORS®
Data provided via CREA DDF®.
Detailed Features
Interior & Systems
- Heating: Forced air, Natural gas
- Cooling: Central air conditioning
- Basement: Finished, Walk out, N/A
- Appliances: Washer, Refrigerator, Water meter, Hot Tub, Dishwasher, Stove, Dryer, Window Coverings
- Utilities: Cable
- Security: Smoke Detectors
Exterior & Construction
- Style: Raised bungalow
- Exterior: Vinyl siding
- Foundation: Poured Concrete
- Sewer: Septic System
- Water: Municipal water
Lot & Land
- Frontage: 100 ft (30.5 m)
- Features: Cul-de-sac, Flat site, Conservation/green belt, In-Law Suite
- Zoning: R1
Community & Neighbourhood
- Neighbourhood: Waubaushene
Room Details (9 rooms)
Listing Information
Listing History
MLS listing activity for 329 & 331 BROWNS LINE, Tay (Waubaushene), Ontario, L0K2C0 — dates reflect when changes were recorded in the DDF
🚗 Travel times
Neighborhood Walkability
Mortgage & Cost Calculators
Nearby Homes ?Nearby Homes — Search CriteriaSearch Radius1 kmPrice Range±5%Match BedroomsYesMatch BathroomsYes

187 ALBIN ROAD, Tay (Waubaushene)
House$698,500
$1,419/yr taxListing Courtesy of RE/MAX HALLMARK PEGGY HILL GROUP REALTY

107 PINE STREET, Tay (Waubaushene)
House$699,999
$1,712/yr taxListing Courtesy of Keller Williams Experience Realty

208 CHERRY STREET, Tay (Waubaushene)
House$629,900
$2,043/yr taxListing Courtesy of RIGHT AT HOME REALTY

83 KING ROAD, Tay (Waubaushene)
House$799,900
$4,036/yr taxListing Courtesy of FARIS TEAM REAL ESTATE BROKERAGE

75 HAZEL STREET, Tay (Waubaushene)
House$549,900
$2,309/yr taxListing Courtesy of ROYAL LEPAGE RCR REALTY

229 MOUNTAIN AVENUE, Tay (Waubaushene)
House$499,000
$2,400/yr taxListing Courtesy of Keller Williams Experience Realty
Similar Homes ?Similar Homes — Search CriteriaSearch Radius5 kmPrice Range±5%Match Home TypeYesMatch BedroomsYes

46 FOREST HARBOUR PARKWAY, Tay
House$799,777
$3,315/yr taxListing Courtesy of RE/MAX Georgian Bay Realty Ltd

1467 ROSEMOUNT ROAD, Tay
House$799,900
$3,957/yr taxListing Courtesy of Real Broker Ontario Ltd

83 KING ROAD, Tay (Waubaushene)
House$799,900
$4,036/yr taxListing Courtesy of FARIS TEAM REAL ESTATE BROKERAGE

118 WILLOWBROOK DRIVE, Welland (West Welland)
House$779,900
Listing Courtesy of REAL BROKER ONTARIO LTD.

1103 - 70 DISTILLERY LANE, Toronto (Waterfront Communities)
Condo - Apartment$779,900
$3,740/yr taxListing Courtesy of ROYAL LEPAGE SIGNATURE REALTY

152 BEAN STREET, Minto
House$779,900
Listing Courtesy of EXP REALTY

905 - 1480 RIVERSIDE DRIVE, Ottawa
Condo - Apartment$779,900
$5,792/yr taxListing Courtesy of ROYAL LEPAGE PERFORMANCE REALTY

43 JOANNE CRESCENT, Wasaga Beach
House$779,900
$843/yr taxListing Courtesy of Revel Realty Inc.

49 COOKE ARMSTRONG ROAD, Quinte West (Sidney Ward)
House$779,900
$3,410/yr taxListing Courtesy of SOLID ROCK REALTY

114 BEECH BOULEVARD, Tillsonburg
House$779,900
Listing Courtesy of Century 21 Heritage House Ltd Brokerage

LOT 7 (14) DARROW DRIVE, Tillsonburg
House$779,900
Listing Courtesy of Century 21 Heritage House Ltd Brokerage

1403 - 428 SPARKS STREET, Ottawa
Apartment$779,900
$6,675/yr taxListing Courtesy of REAL BROKER ONTARIO LTD.

341 GEORGE Street N Unit# 4, Cambridge
Condo - Row / Townhouse$779,900
$5,549/yr taxListing Courtesy of ROYAL LEPAGE CROWN REALTY SERVICES

118 WILLOWBROOK Drive, Welland
House$779,900
Listing Courtesy of Real Broker Ontario Ltd.

4906 - 108 PETER STREET, Toronto (Waterfront Communities)
Condo$779,900
$4,500/yr taxListing Courtesy of RE/MAX Parry Sound Muskoka Realty Ltd
Similar Properties ?Active Comparables — Search CriteriaSearch Radius2 kmPrice Range±5%Match Home TypeYesMatch BedroomsYes
No rental comparables found in this area.
Sold Comparables
Access to sold property data requires a registered and verified account with TRREB DDF integration.
Coming SoonRented Comparables
Access to rented property data requires a registered and verified account with TRREB DDF integration.
Coming SoonBook a Viewing
329 & 331 BROWNS LINE, Tay (Waubaushene), Ontario, L0K2C0
