326 VIDAL STREET N, Sarnia, Ontario, N7T5Y6
MLS: X12818228 | House (Freehold)
$925,000
















































Property Description
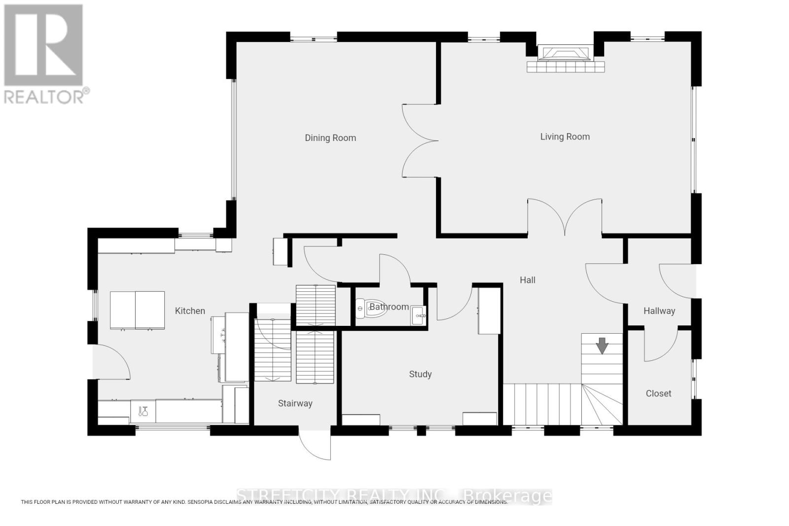
This impressive 3-storey Century home delivers the space today's growing families rarely find, combining classic charm with the comfort of a fully modernized home. A grand foyer welcomes you into a bright living room with a gas fireplace, a formal dining room perfect for hosting large family dinners, a private office, a powder room, and a beautiful kitchen with steps to the backyard oasis. The 2nd level features 4 spacious bedrooms +walk-in closets, a balcony, and a beautifully appointed 5 pc bathroom +laundry. The 2nd staircase leads to the third floor, which offers two additional oversized bedrooms, ample storage, and a 4 pc bathroom-ideal for teens, guests, or multigenerational living. The triple-brick renovated basement has a separate side entrance to a fully legal suite: a complete 2-bedroom apartment with a fully equipped Kitchen, used as a licensed short-term rental. Plus a 3rd bedroom with a wet bar, the 5th bathroom, and a 2nd laundry suite. Situated on nearly one-third of an acre, the fully fenced yard features a 20x40 inground pool with a newer liner, pump and filter, a 6-person hot tub, plenty of green space for kids to play, a detached double garage, and a generous concrete driveway. The substantial upgrades include: a 200-amp electrical service, new water and sewer lines installed in 2022, and fully upgraded heating and cooling infrastructure, including a high-efficiency boiler with an individual hydronic system, smart thermostats in every room, ductless A/C, a hybrid hwt, and vinyl windows. Don't miss out on this Opportunity to own a stunning character home with gleaming hardwood floors and exceptional craftsmanship, where all the heavy lifting has already been done. -offering space, comfort, and income potential in a prime location. (id:64974)
Quick Facts
- Property Type: House (Freehold)
- Bedrooms: 10 (7 above, 3 below)
- Bathrooms: 5 (1 half)
- Ownership: Freehold
- Attached: No
- Fireplaces: 1
- Parking: 10 spaces (Detached Garage, Garage)
- Frontage: 100 ft (30.5 m)
Costs
- Annual Taxes: $5,912.00
Listing Provided by: STREETCITY REALTY INC.
Board: London and St. Thomas Association of REALTORS®
Data provided via CREA DDF®.
Detailed Features
Interior & Systems
- Heating: Not known, Natural gas, Other
- Cooling: Wall unit
- Basement: Finished, Full, Apartment in basement, Separate entrance, N/A, N/A, N/A
- Appliances: All, Hot Tub, Dishwasher, Stove, Dryer, Microwave, Cooktop, Oven - Built-In, Two Washers, Garage door opener remote(s), Water Heater, Two Refrigerators
- Flooring: Tile, Hardwood, Vinyl
- Utilities: Sewer, Electricity, Cable
Exterior & Construction
- Exterior: Brick
- Foundation: Concrete, Brick
- Fencing: Fenced yard, Fully Fenced
- Sewer: Sanitary sewer
- Water: Municipal water
Lot & Land
- Frontage: 100 ft (30.5 m)
- Features: Wooded area, Carpet Free, Guest Suite, In-Law Suite
- Pool: Inground pool, Outdoor pool
- Water Body: St. Clair River
- Zoning: R2
Community & Neighbourhood
- Building: Separate Heating Controls, Fireplace(s)
- Neighbourhood: Sarnia
Room Details (27 rooms)
Listing Information
Listing History
Buy/Sell/Terminated/Expired listing history for 326 VIDAL STREET N, Sarnia, Ontario, N7T5Y6
Location & Neighborhood
🚗 Travel times
Neighborhood Walkability
Mortgage & Cost Calculators
Nearby Homes (Within 2km)
Similar Homes
Similar Properties
No rental comparables found in this area.
Sold Comparables
Access to sold property data requires a registered and verified account with TRREB DDF integration.
Coming SoonRented Comparables
Access to rented property data requires a registered and verified account with TRREB DDF integration.
Coming Soon























