322 Cosby Subd Road, Mindemoya, Ontario, P0P1S0
MLS: 2123161 | House (Freehold)
$1,575,000





























































Property Description
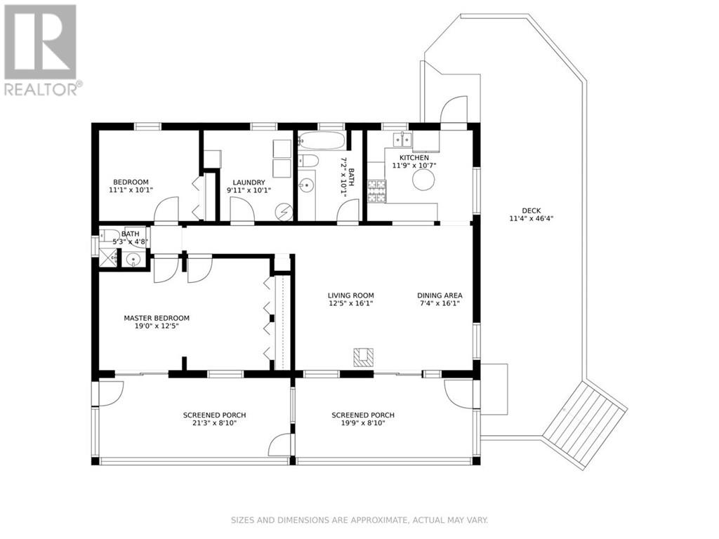
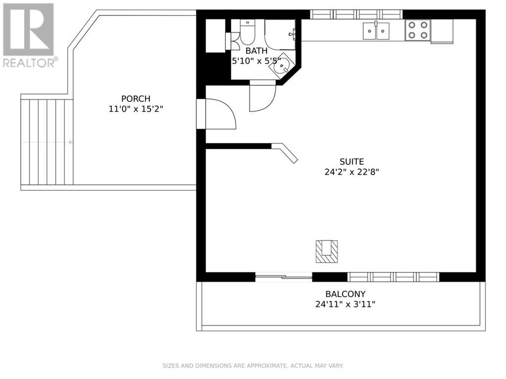
Welcome to peace and serenity! Located on the beautiful shores of Lake Manitou, ""Green Bay Lodge"" offers the epitome of lakeside luxury living. Boasting breathtaking Easterly views with gorgeous sunrises, this property beckons outdoor enthusiasts with perennial gardens and protected harbour. Immerse yourself in the tranquility of nature while enjoying modern amenities within this expansive retreat. This large, 13 acre property is meticulously crafted for comfort and style. The owners' living space seamlessly blends elegance and warmth, inviting you to unwind by the wood stove or gather with loved ones in the kitchen. There are five rental units at the lodge. Three units are under the main residence. There is a separate building with a large studio and a king suite under it. The entire operation comes turn key. Step outside onto the sprawling screened deck to savor morning coffee overlooking the lake or head out to the backyard to host unforgettable evenings under the starlit sky at the fire pit. The private dock and harbour extends an invitation for boating adventures, fishing escapades, or simply lazing by the lake, forgetting any memories of busy city life. A true haven for year round relaxation and entertainment, this waterfront lodge, or family compound is a rare gem, offering a balance of work from home lifestyle amidst nature's stunning canvas. Discover your slice of paradise where the allure of ""Green Bay Lodge"" could be your reality! (id:64974)
Quick Facts
- Property Type: House (Freehold)
- Style: 2 Level
- Bedrooms: 7
- Bathrooms: 7
- Ownership: Freehold
Listing Provided by: RE/MAX CROWN REALTY (1989) INC., BROKERAGE (SUDBURY)
Board: Sudbury Real Estate Board
Data provided via CREA DDF®.
Detailed Features
Interior & Systems
- Heating: Baseboard heaters, Wood Stove
- Basement: Full
- Flooring: Laminate
Exterior & Construction
- Style: 2 Level
- Exterior: Wood siding
- Roof: Asphalt shingle, Metal, Unknown
- Sewer: Septic System
Lot & Land
- Waterfront: Waterfront
- Water Body: Lake Manitou
- Zoning: R
Room Details (6 rooms)
Listing Information
Listing History
Buy/Sell/Terminated/Expired listing history for 322 Cosby Subd Road, Mindemoya, Ontario, P0P1S0
Location & Neighborhood
🚗 Travel times
Neighborhood Walkability
Mortgage & Cost Calculators
Similar Homes
Similar Properties
No rental comparables found in this area.
Sold Comparables
Access to sold property data requires a registered and verified account with TRREB DDF integration.
Coming SoonRented Comparables
Access to rented property data requires a registered and verified account with TRREB DDF integration.
Coming Soon



















