3206 - 8 THE ESPLANADE, Toronto (Waterfront Communities), Ontario, M5E0A6
MLS: C12755000 | Apartment (Condo)
$648,000


Property Description
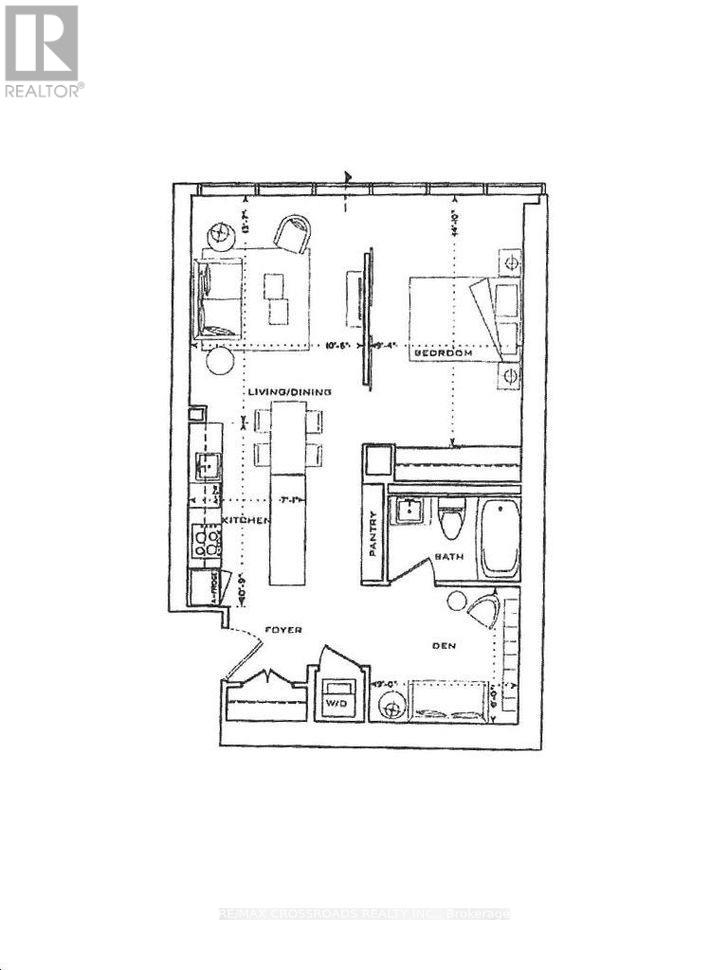
*Must assume tenant. 1 year lease term from 2025.6.1, rent $2650* Iconic L-Tower, 1 Br + Lrg Den, Steps To Union Station, Financial District, St Lawrence Market, Acc, Subway, Path, Gardiner, Lake, 9 Ft Ceilings, 700+ Sq Ft As Per Building, Hardwood Floors, Floor To Ceiling Windows, ** Must See** Express High Floor Elevators, Indoor Pool, Gym, 24 Hrs Concierge. High Security Building. (id:64974)
Quick Facts
- Property Type: Apartment (Condo)
- Bedrooms: 2 (1 above, 1 below)
- Bathrooms: 1
- Ownership: Condo/Strata
- Attached: Yes
Costs
- Annual Taxes: $3,612.08
- Condo/HOA Fee: $685.22 / monthly
- Corp: Del Property Management
- Includes: Common Area Maintenance, Heat, Water, Insurance
Listing Provided by: RE/MAX CROSSROADS REALTY INC.
Board: Toronto Regional Real Estate Board
Data provided via CREA DDF®.
Detailed Features
Interior & Systems
- Heating: Forced air, Natural gas
- Cooling: Central air conditioning
- Basement: None
- Appliances: Washer, Refrigerator, Dishwasher, Stove, Oven, Dryer, Microwave, Hood Fan, Window Coverings
- Flooring: Laminate
Exterior & Construction
- Exterior: Concrete
Lot & Land
- Features: Balcony
- Pool: Indoor pool
Community & Neighbourhood
- Community: Pets Allowed With Restrictions
- Building: Exercise Centre, Security/Concierge
- Neighbourhood: Waterfront Communities C1
Room Details (5 rooms)
Listing Information
Listing History
Buy/Sell/Terminated/Expired listing history for 3206 - 8 THE ESPLANADE, Toronto (Waterfront Communities), Ontario, M5E0A6
Location & Neighborhood
🚗 Travel times
Neighborhood Walkability
Mortgage & Cost Calculators
Nearby Homes (Within 2km)
Similar Homes
Similar Properties
No rental comparables found in this area.
Sold Comparables
Access to sold property data requires a registered and verified account with TRREB DDF integration.
Coming SoonRented Comparables
Access to rented property data requires a registered and verified account with TRREB DDF integration.
Coming Soon
























