3198 HWY 138 HIGHWAY, North Stormont, Ontario, K0C1C0
MLS: X12725204 | House (Freehold)
$549,900












































Property Description
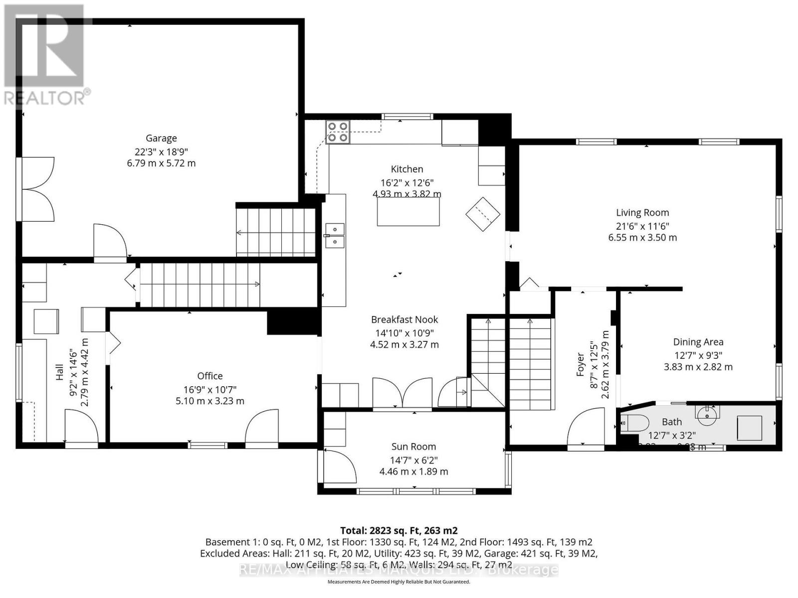
If space is what you're after, this versatile property truly delivers. Offering approximately 3,500 sq ft of total space, including a heated workshop, this home is ideal for growing families, creatives, or anyone needing room to spread out. The residence features six generously sized bedrooms, with two currently used as a music/jam room and a craft space, showcasing just how flexible the layout can be. Each bedroom offers comfortable proportions, making them easy to adapt to bedrooms, offices, or hobby rooms. At the heart of the home is a large eat-in kitchen, complete with an abundance of cabinetry and a central island that provides plenty of prep and workspace, perfect for family meals. The spacious living room is open to a formal dining area, allowing an ideal setting for entertaining. The main floor includes a convenient two-piece bathroom with laundry, while a full bathroom is located upstairs. Three separate staircases add character and functionality, and the basement offers cellar-style storage, ideal for keeping things organized without sacrificing living space. A standout feature is the heated workshop attached to the back of the home, which could remain as-is or be modified to suit your needs, think home business, studio, gym, or additional living space. Outside, you'll find a fully fenced backyard, perfect for kids or pets, along with two- single car detached garagse. Additional highlights include a durable metal roof and two propane furnaces for efficient heating. Offering endless possibilities and a highly adaptable layout, this property combines space, function, and flexibility, all while being just 20 minutes to Cornwall and 40 minutes to Ottawa. (id:64974)
Quick Facts
- Property Type: House (Freehold)
- Bedrooms: 6 (6 above)
- Bathrooms: 2 (1 half)
- Ownership: Freehold
- Attached: No
- Parking: 9 spaces (Detached Garage, Garage)
- Frontage: 137 ft (41.8 m)
Costs
- Annual Taxes: $1,592.00 (2025)
Listing Provided by: RE/MAX AFFILIATES MARQUIS LTD.
Board: Cornwall & District Real Estate Board
Data provided via CREA DDF®.
Detailed Features
Interior & Systems
- Heating: Forced air, Propane
- Cooling: None
- Basement: Unfinished, N/A
Exterior & Construction
- Exterior: Aluminum siding
- Foundation: Stone
- Sewer: Septic System
Lot & Land
- Frontage: 137 ft (41.8 m)
Community & Neighbourhood
- Neighbourhood: 712 - North Stormont (Roxborough) Twp
Listing Information
Listing History
Buy/Sell/Terminated/Expired listing history for 3198 HWY 138 HIGHWAY, North Stormont, Ontario, K0C1C0
Location & Neighborhood
🚗 Travel times
Neighborhood Walkability
Mortgage & Cost Calculators
Similar Homes
Similar Properties
No rental comparables found in this area.
Sold Comparables
Access to sold property data requires a registered and verified account with TRREB DDF integration.
Coming SoonRented Comparables
Access to rented property data requires a registered and verified account with TRREB DDF integration.
Coming Soon














