3184 LAKESHORE ROAD, Haldimand (Dunnville), Ontario, N1A2W8
MLS: X12926128 | House (Freehold)
$1,199,000




























Property Description
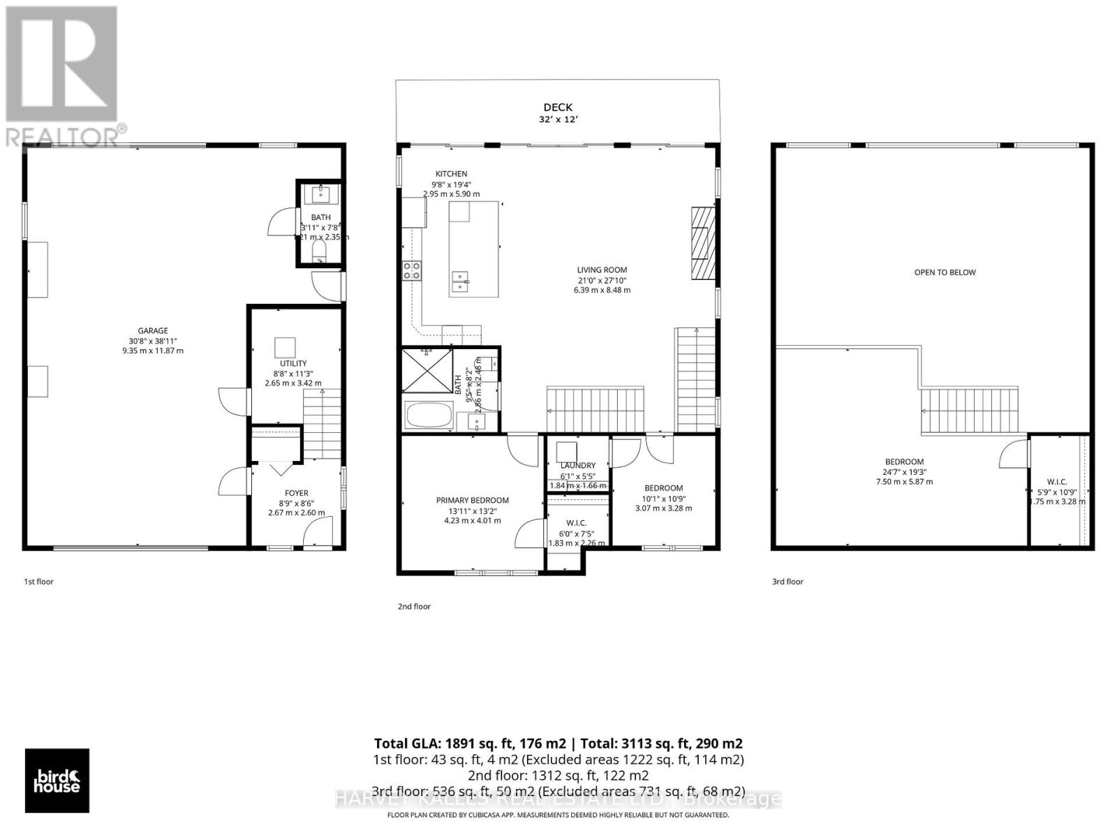
Soaring ceilings, uninterrupted lake views, and striking modern design define this custom-built detached home set in the charming town of Dunnville. Thoughtfully designed to maximize light, space, and connection to its natural surroundings, this residence offers a truly unique living experience.The main living level is designed for both everyday living/entertaining, featuring a striking 23-ft vaulted ceiling with floor-to-ceiling windows and gorgeous lake views. A marble-finished fireplace adds a refined focal point. The open concept space features engineered hardwood flooring, a sleek open-concept kitchen with oversized island, built-in appliances. Walk out to your waterfront-view composite deck with outdoor dining/cooking area and modern, glass railings.Privately set above the living space, the lofted primary suite offers a truly special retreat. Overlooking the main living space below, this airy and light-filled sanctuary feels both connected and secluded, with generous proportions, a walk-in closet, and elevated views that create a calm, resort-like atmosphere.Upon entry at the ground level, an impressive garage space with sauna, gym and mechanical room adds exceptional utility and flexibility. An additional detached garage, storage shed, and expansive asphalt driveway further enhance the functionality of the property.Located just minutes from the Grand River, Byng Island Conservation Area, Rock Point Provincial Park, and local amenities, this home offers the perfect balance of small-town charm and outdoor lifestyle. (id:64974)
Quick Facts
- Property Type: House (Freehold)
- Bedrooms: 3 (3 above)
- Bathrooms: 2 (1 half)
- Ownership: Freehold
- Attached: No
- Fireplaces: Yes
- Parking: 8.0 spaces (Detached Garage, Garage)
- Frontage: 120 ft (36.6 m)
Costs
- Annual Taxes: $2,860.00
Listing Provided by: HARVEY KALLES REAL ESTATE LTD.
Board: Toronto Regional Real Estate Board
Data provided via CREA DDF®.
Detailed Features
Interior & Systems
- Heating: Forced air, Propane
- Cooling: Central air conditioning
- Basement: None
- Appliances: Refrigerator, Sauna, Barbeque, Dishwasher, Range, Microwave, Oven - Built-In, Storage Shed, Window Coverings, Garage door opener remote(s)
- Flooring: Tile, Hardwood
Exterior & Construction
- Exterior: Steel, Stone
- Foundation: Concrete
- Fencing: Fenced yard
- Sewer: Septic System
- Water: Cistern
Lot & Land
- Frontage: 120 ft (36.6 m)
- Features: Lighting, Carpet Free, Sauna
- View: View, Unobstructed Water View
Community & Neighbourhood
- Neighbourhood: Dunnville
Room Details (9 rooms)
Listing Information
Listing History
MLS listing activity for 3184 LAKESHORE ROAD, Haldimand (Dunnville), Ontario, N1A2W8 — dates reflect when changes were recorded in the DDF
🚗 Travel times
Neighborhood Walkability
Mortgage & Cost Calculators
Nearby Homes ?Nearby Homes — Search CriteriaSearch Radius1 kmPrice Range±5%Match BedroomsYesMatch BathroomsYes
Similar Homes ?Similar Homes — Search CriteriaSearch Radius5 kmPrice Range±5%Match Home TypeYesMatch BedroomsYes

1287 DAVENPORT ROAD, Toronto (Dovercourt-Wallace Emerson-Junction)
House$1,199,000
$4,147/yr taxListing Courtesy of PROPERTY.CA INC.

1402 - 168 KING STREET E, Toronto (Moss Park)
Condo - Apartment$1,199,000
$3,905/yr taxListing Courtesy of RIGHT AT HOME REALTY

PH03 - 15 GRENVILLE STREET, Toronto (Bay Street Corridor)
Condo - Apartment$1,199,000
$5,512/yr taxListing Courtesy of RE/MAX IMPERIAL REALTY INC.

609 - 2727 YONGE STREET, Toronto (Lawrence Park South)
Condo - Apartment$1,199,000
$5,565/yr taxListing Courtesy of RE/MAX HALLMARK REALTY LTD.

5 - 209707 HWY 26, Blue Mountains
Condo - Row / Townhouse$1,199,000
$4,885/yr taxListing Courtesy of RE/MAX Hallmark York Group Realty Ltd.

142 SAFFRON STREET, Markham (Greensborough)
House$1,199,000
$4,908/yr taxListing Courtesy of RE/MAX ALL-STARS REALTY INC.

323 - 29 QUEENS QUAY E, Toronto (Waterfront Communities)
Condo - Apartment$1,199,000
$6,481/yr taxListing Courtesy of Royal Lepage Real Estate Associates

52 LEMBITU AVENUE, Georgina (Pefferlaw)
House$1,199,000
$3,352/yr taxListing Courtesy of COLDWELL BANKER THE REAL ESTATE CENTRE

609 - 1 HURONTARIO STREET, Mississauga (Port Credit)
Condo - Apartment$1,199,000
$5,247/yr taxListing Courtesy of Royal Lepage Real Estate Associates

59 CEDAR CREST BEACH ROAD, Clarington (Bowmanville)
House$1,199,000
$6,511/yr taxListing Courtesy of RE/MAX IMPACT REALTY

506086 HIGHWAY 89 HIGHWAY, Mono
House$1,199,000
$5,631/yr taxListing Courtesy of EXP REALTY

1609 - 1 PALACE PIER COURT, Toronto (Mimico)
Condo - Apartment$1,199,000
$4,080/yr taxListing Courtesy of ROYAL LEPAGE REAL ESTATE SERVICES LTD.

5459 CAMPBELLVILLE ROAD W, Milton (Campbellville)
House$1,199,000
$5,632/yr taxListing Courtesy of CENTURY 21 GREEN REALTY INC.

24A ROCCO'S LANE, Seguin
House$1,199,000
$2,973/yr taxListing Courtesy of RE/MAX Parry Sound Muskoka Realty Ltd

2208 ROBBIE'S WAY, London North (North R)
House$1,199,000
Listing Courtesy of SUTTON GROUP - SELECT REALTY
Similar Properties ?Active Comparables — Search CriteriaSearch Radius2 kmPrice Range±5%Match Home TypeYesMatch BedroomsYes
No active comparables found in this area.
No rental comparables found in this area.
Sold Comparables
Access to sold property data requires a registered and verified account with TRREB DDF integration.
Coming SoonRented Comparables
Access to rented property data requires a registered and verified account with TRREB DDF integration.
Coming SoonBook a Viewing
3184 LAKESHORE ROAD, Haldimand (Dunnville), Ontario, N1A2W8

