317080 6 & 10, Chatsworth, Ontario, N0H1G0
MLS: X12934026 | Retail
$728,000
























Property Description
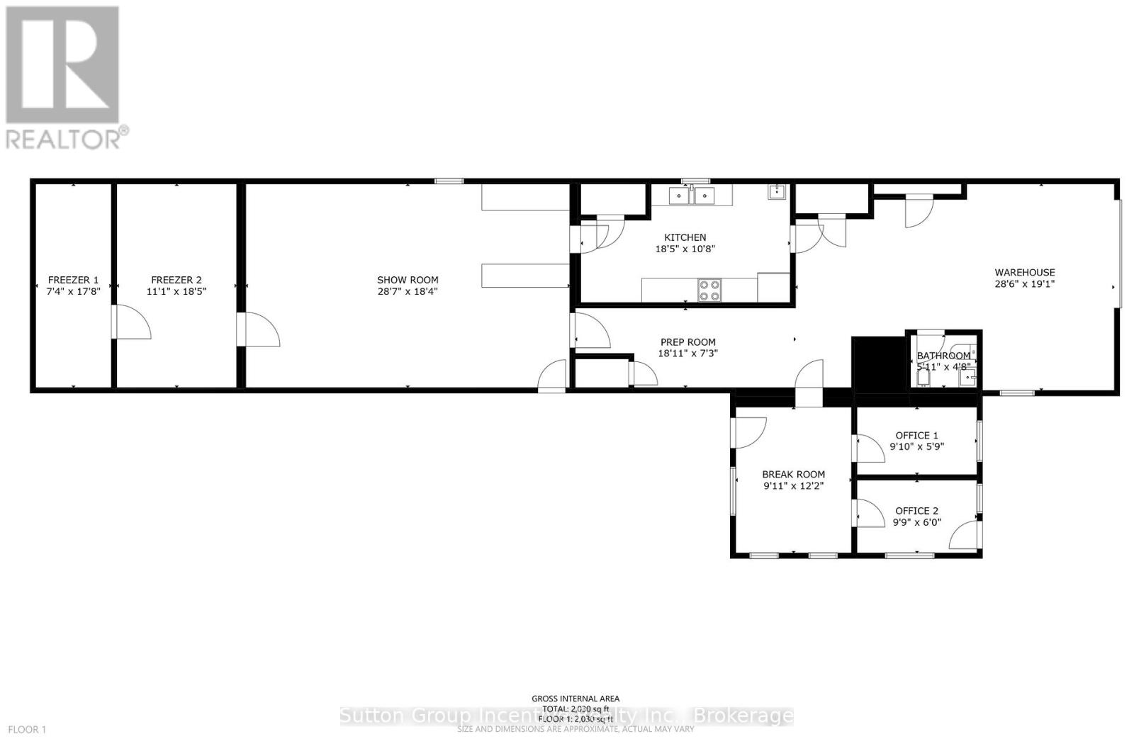
Prime highway commercial investment opportunity in the growing community of Chatsworth, just 10 minutes from Owen Sound. Strategically located in a major transportation hub connecting Toronto & the GTA and Kitchener-Waterloo, Guelph to the Georgian Bay. This high-visibility property features 669 feet of highway frontage and over 2,400 sq ft of versatile commercial space.Currently operating as an established business, the seller is willing to remain as a tenant and sign a 5-year triple net lease at $3,500/month + HST for the entire property, providing immediate and stable rental income.Recent upgrades include new windows and doors (2022), furnace (2022), air conditioning (2023), natural gas backup generator, owned gas water heater, and newer roof (metal and asphalt shingles). Property also features a walk-in fridge and freezer, drilled well (south side), septic system (north side), and shipping/receiving door.Zoned C-61, allowing for a wide variety of commercial uses. The current business utilizes only half of the space, offering additional income or expansion potential.Located near Georgian Bay, known for beaches, boating, and fishing, and within 30-60 minutes of ski destinations, making this an attractive year-round area. Business also available for sale see MLS X12933988 for details. (id:64974)
Quick Facts
- Property Type: Retail
- Bedrooms: None
- Bathrooms: None
- Living Area: 2,268 sq ft (210.7 m²)
- Frontage: 676 ft (206.1 m)
Costs
- Annual Taxes: $4,317.80
Listing Provided by: Sutton Group Incentive Realty Inc.
Board: OnePoint Association of REALTORS®
Data provided via CREA DDF®.
Detailed Features
Interior & Systems
- Heating: Not known
- Cooling: Unknown
- Appliances: Freezer
Exterior & Construction
- Sewer: Septic System
Lot & Land
- Frontage: 676 ft (206.1 m)
- Zoning: C1-61
Community & Neighbourhood
- Neighbourhood: Chatsworth
Listing Information
Listing History
MLS listing activity for 317080 6 & 10, Chatsworth, Ontario, N0H1G0 — dates reflect when changes were recorded in the DDF
🚗 Travel times
Neighborhood Walkability
Mortgage & Cost Calculators
Similar Homes ?Similar Homes — Search CriteriaSearch Radius5 kmPrice Range±5%Match Home TypeYesMatch BedroomsYes

150 PRINCESS STREET, Hamilton (Stipley)
Retail$725,000
$7,489/yr taxListing Courtesy of RE/MAX ESCARPMENT REALTY INC.

27-28 - 909 YONGE STREET, Toronto (Rosedale-Moore Park)
Retail$724,900
$13,686/yr taxListing Courtesy of SUTTON GROUP-ADMIRAL REALTY INC.

1 - 11611 YONGE STREET, Richmond Hill (Jefferson)
Retail$720,270
$8,936/yr taxListing Courtesy of RE/MAX HALLMARK REALTY LTD.

B7 - 3101 KENNEDY ROAD, Toronto (Milliken)
Retail$719,000
Listing Courtesy of RE/MAX GOLD REALTY INC.

B2 - 3101 KENNEDY ROAD, Toronto (Milliken)
Retail$740,000
Listing Courtesy of BAY STREET GROUP INC.

2 - 11611 YONGE STREET, Richmond Hill (Jefferson)
Retail$741,735
$8,588/yr taxListing Courtesy of RE/MAX HALLMARK REALTY LTD.

2-19 KING STREET W, Cobourg
Retail$748,000
$7,288/yr taxListing Courtesy of CHESTNUT PARK REAL ESTATE LIMITED

35 QUEEN STREET, New Tecumseth (Tottenham)
Retail$749,000
$4,014/yr taxListing Courtesy of RE/MAX GOLD REALTY INC.

2 - 365 HEALEY ROAD, Caledon (Bolton West)
Retail$749,000
$4,971/yr taxListing Courtesy of PROSPECT REALTY INC.

2522 COUNTY ROAD 64, Prince Edward County (Ameliasburg Ward)
Retail$749,000
$8,992/yr taxListing Courtesy of CENTURY 21 LANTHORN REAL ESTATE LTD.

636 MILL STREET, Greater Madawaska
Retail$749,000
$5,948/yr taxListing Courtesy of Century 21 Valley Realty Inc.

44 FRANCIS STREET, Hamilton (Industrial Sector)
Retail$749,900
$5,289/yr taxListing Courtesy of RE/MAX ESCARPMENT REALTY INC.

1140 BAY Street, Port Rowan
Retail$749,900
$0/yr taxListing Courtesy of RE/MAX Garden City Realty Inc.

1140 BAY STREET, Norfolk (Port Rowan)
Retail$749,900
Listing Courtesy of RE/MAX GARDEN CITY REALTY INC.

243 9TH AVENUE E, Owen Sound
Retail$750,000
$6,993/yr taxListing Courtesy of RE/MAX A-B Realty Ltd
Similar Properties ?Active Comparables — Search CriteriaSearch Radius2 kmPrice Range±5%Match Home TypeYesMatch BedroomsYes
No active comparables found in this area.
No rental comparables found in this area.
Sold Comparables
Access to sold property data requires a registered and verified account with TRREB DDF integration.
Coming SoonRented Comparables
Access to rented property data requires a registered and verified account with TRREB DDF integration.
Coming SoonBook a Viewing
317080 6 & 10, Chatsworth, Ontario, N0H1G0
