317 QUEEN STREET S, Mississauga (Streetsville), Ontario, L5M1M3
MLS: W12854160 | Offices
$1,400,000





































Property Description
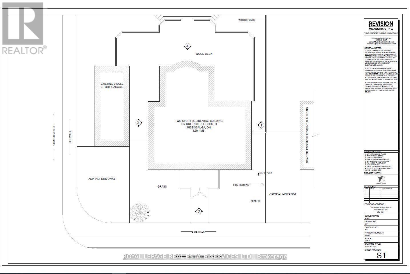
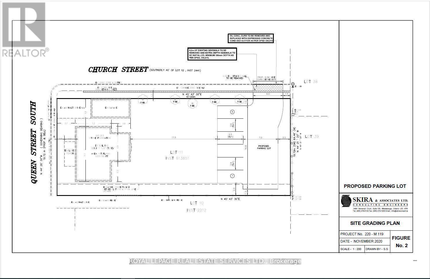
Great Opportunity for Investment/Live/Work Property Located at the corner of Queen St S & Church St in Famous Destination Olde Village of Streetsville. Residence with Commercial Unit, Zone STR - TR5. Permit issued on 2002-09-05 for Private Office within Single Family Dwelling (No Employees) described as Commercial Office - Single User. Classic Georgian Centre Hall Style - known as the McKeith Home built in 1852 and it is Designated under the terms of the Ontario Heritage Act as part of the Streetsville Heritage Conservation District, refer to Heritage Impact Assessment on file. Potential to convert entire home to commercial office space, proposed sketch for additional parking is on file. See sketch of former kitchen, now a blank slate for your dream kitchen. Newly renovated interior, generous size principal rooms, 2218 sq ft of living space. Was used as a Chiropractor Clinic, great street exposure. Backsonto green space and the Credit River ravine, gentle slope with panoramic view. Newly renovated interior, carpet free. Updated furnace & owned hot water tank in 2017. Washer & Dryer. New gas fireplace in living room. Attachments: Survey, Pre-listing Inspection Report, Heritage impact assessment report, Letterfrom Streetsville Heritage Conservation with FAQ for future potential, 2024 tax bill, Letterfrom Credit Valley Conservation Authority. Floor Plan (id:64974)
Quick Facts
- Property Type: Offices
- Bedrooms: None
- Bathrooms: 2
- Living Area: 2,238 sq ft (207.9 m²)
- Parking: 2 spaces
- Frontage: 63 ft (19.2 m)
Costs
- Annual Taxes: $7,314.47 (2025)
Listing Provided by: ROYAL LEPAGE REAL ESTATE SERVICES LTD.
Board: Toronto Regional Real Estate Board
Data provided via CREA DDF®.
Detailed Features
Interior & Systems
- Heating: Forced air, Natural gas
- Cooling: Fully air conditioned
Exterior & Construction
- Sewer: Sanitary sewer
- Water: Municipal water
Lot & Land
- Frontage: 63 ft (19.2 m)
- Features: Conservation/green belt
- Zoning: R3 Current use: Commercial and Residential Mixed
Community & Neighbourhood
- Neighbourhood: Streetsville
Listing Information
Listing History
Buy/Sell/Terminated/Expired listing history for 317 QUEEN STREET S, Mississauga (Streetsville), Ontario, L5M1M3
Location & Neighborhood
🚗 Travel times
Neighborhood Walkability
Mortgage & Cost Calculators
Nearby Homes (Within 2km)
Similar Homes
Similar Properties
No rental comparables found in this area.
Sold Comparables
Access to sold property data requires a registered and verified account with TRREB DDF integration.
Coming SoonRented Comparables
Access to rented property data requires a registered and verified account with TRREB DDF integration.
Coming Soon




























