3169 DAISY WAY, Oakville (GO Glenorchy), Ontario, L6M1L3
MLS: W12989102 | House (Freehold)
$4,400 / monthly








































Property Description
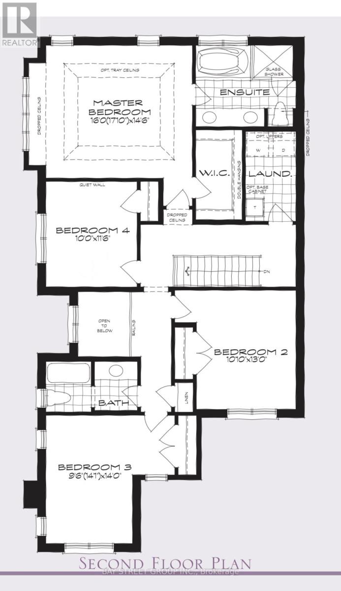
Rare Mattamy Built Corner Lot On Quiet Street In Most Desirable Preserve Community Oakville. Brick/ Stone Exterior Detached Home With Energy Star Certified. 5 Bdrms, the 5th Br Can Return As Den/Office. Shower & Bath Tub Ensuite With Extra High Double Sink Quartz Counter. Steps To School, Shopping, Etc. Interior/Exterior Led Pot Lights. Centre Island In Kitchen With Granite Counter &Marble Backsplash. Upgraded Elf, Countertop, Hardwood, &More. Lot Of Nat Lights. Furnished Rental, Part of High Quality Furnitures Can be Provided. (id:64974)
Quick Facts
- Property Type: House (Freehold)
- Bedrooms: 4 (4 above)
- Bathrooms: 4 (1 half)
- Ownership: Freehold
- Attached: No
- Fireplaces: Yes
- Parking: 5.0 spaces (Garage)
Listing Provided by: BAY STREET GROUP INC.
Board: Toronto Regional Real Estate Board
Data provided via CREA DDF®.
Detailed Features
Interior & Systems
- Heating: Forced air, Natural gas
- Cooling: Central air conditioning
- Basement: Full
- Appliances: Oven - Built-In
- Flooring: Hardwood, Carpeted, Ceramic
Exterior & Construction
- Exterior: Brick, Stone
- Foundation: Concrete
- Fencing: Fenced yard, Fully Fenced
- Sewer: Sanitary sewer
- Water: Municipal water
Community & Neighbourhood
- Community: Community Centre
- Building: Fireplace(s)
- Neighbourhood: 1008 - GO Glenorchy
Room Details (9 rooms)
Listing Information
Listing History
MLS listing activity for 3169 DAISY WAY, Oakville (GO Glenorchy), Ontario, L6M1L3 — dates reflect when changes were recorded in the DDF
🚗 Travel times
Neighborhood Walkability
Mortgage & Cost Calculators
Nearby Homes ?Nearby Homes — Search CriteriaSearch Radius1 kmPrice Range±5%Match BedroomsYesMatch BathroomsYes

285 SIXTEEN MILE DRIVE, Oakville (GO Glenorchy)
House$4,500/mo
Listing Courtesy of UNION CAPITAL REALTY

426 HIDDEN TRAIL, Oakville (GO Glenorchy)
House$4,590/mo
Listing Courtesy of HIGHLAND REALTY

3095 ROBERT BROWN BOULEVARD, Oakville (GO Glenorchy)
Single Family$4,500/mo
Listing Courtesy of CENTURY 21 REGAL REALTY INC.

140 MAGNOLIA CRESCENT, Oakville (GO Glenorchy)
House$1,799,990
$10,333/yr taxListing Courtesy of RE/MAX PREMIER INC.

208 - 3265 CARDING MILL TRAIL, Oakville (GO Glenorchy)
Condo - Apartment$759,000
$4,040/yr taxListing Courtesy of GLOBAL BRICKS EXECUTIVE HOMES REALTY

404 - 3265 CARDING MILL TRAIL, Oakville (GO Glenorchy)
Condo - Apartment$2,350/mo
Listing Courtesy of HC REALTY GROUP INC.

355 WISTERIA Way, Oakville
House$1,799,000
$7,570/yr taxListing Courtesy of RE/MAX Realty Enterprises Inc.

271 SIXTEEN MILE DRIVE, Oakville (GO Glenorchy)
House$2,750/mo
Listing Courtesy of RE/MAX REAL ESTATE CENTRE INC.

3087 MISTLETOE GARDENS, Oakville (GO Glenorchy)
Row / Townhouse$879,000
$3,881/yr taxListing Courtesy of ROYAL LEPAGE REALTY CENTRE

224 CHERRYHURST ROAD, Oakville (GO Glenorchy)
House$1,990,000
$9,940/yr taxListing Courtesy of KINGSWAY EXECUTIVE REALTY INC.

335 ELLEN DAVIDSON DRIVE, Oakville (GO Glenorchy)
Row / Townhouse$3,200/mo
Listing Courtesy of HOMELIFE/CIMERMAN REAL ESTATE LIMITED

203 - 3285 CARDING MILL TRAIL, Oakville (GO Glenorchy)
Condo - Apartment$2,900/mo
Listing Courtesy of ROYAL LEPAGE REAL ESTATE SERVICES LTD.

403 - 3285 CARDING MILL TRAIL, Oakville (GO Glenorchy)
Condo - Apartment$695,000
$3,522/yr taxListing Courtesy of RE/MAX ABOUTOWNE REALTY CORP.

404 - 3285 CARDING MILL TRAIL, Oakville (GO Glenorchy)
Condo - Apartment$2,300/mo
Listing Courtesy of ROYAL LEPAGE SIGNATURE REALTY

407 - 3285 CARDING MILL TRAIL, Oakville (GO Glenorchy)
Condo - Apartment$399,900
$2,771/yr taxListing Courtesy of ROYAL LEPAGE REALTY PLUS OAKVILLE
Similar Homes ?Similar Homes — Search CriteriaSearch Radius5 kmPrice Range±5%Match Home TypeYesMatch BedroomsYes

59 MERLIN STREET E, Oakville (GO Glenorchy)
House$4,400/mo
Listing Courtesy of CITYSCAPE REAL ESTATE LTD.

2379 QUETICO CRESCENT, Oakville (WM Westmount)
House$4,400/mo
Listing Courtesy of RIGHT AT HOME REALTY

374 SPRING BLOSSOM CRESCENT, Oakville (WC Wedgewood Creek)
Row / Townhouse$4,500/mo
Listing Courtesy of RE/MAX ABOUTOWNE REALTY CORP.

285 SIXTEEN MILE DRIVE, Oakville (GO Glenorchy)
House$4,500/mo
Listing Courtesy of UNION CAPITAL REALTY

3095 ROBERT BROWN BOULEVARD, Oakville (GO Glenorchy)
Single Family$4,500/mo
Listing Courtesy of CENTURY 21 REGAL REALTY INC.

505 HEATH STREET, Oakville (RO River Oaks)
House$4,500/mo
Listing Courtesy of BAY STREET GROUP INC.

426 HIDDEN TRAIL, Oakville (GO Glenorchy)
House$4,590/mo
Listing Courtesy of HIGHLAND REALTY

425 RIVER SIDE DRIVE, Oakville (CO Central)
House$4,200/mo
Listing Courtesy of ROYAL LEPAGE TERREQUITY REALTY

3124 POST ROAD S, Oakville (GO Glenorchy)
Row / Townhouse$4,200/mo
Listing Courtesy of HOMELIFE LANDMARK REALTY INC.

3030 JOHN MCKAY BOULEVARD, Oakville (JM Joshua Meadows)
Row / Townhouse$4,200/mo
Listing Courtesy of HOMELIFE/MIRACLE REALTY LTD
Similar Properties ?Active Comparables — Search CriteriaSearch Radius2 kmPrice Range±5%Match Home TypeYesMatch BedroomsYes

59 MERLIN STREET E, Oakville (GO Glenorchy)
House$4,400/mo
Listing Courtesy of CITYSCAPE REAL ESTATE LTD.

2379 QUETICO CRESCENT, Oakville (WM Westmount)
House$4,400/mo
Listing Courtesy of RIGHT AT HOME REALTY

374 SPRING BLOSSOM CRESCENT, Oakville (WC Wedgewood Creek)
Row / Townhouse$4,500/mo
Listing Courtesy of RE/MAX ABOUTOWNE REALTY CORP.

285 SIXTEEN MILE DRIVE, Oakville (GO Glenorchy)
House$4,500/mo
Listing Courtesy of UNION CAPITAL REALTY

3095 ROBERT BROWN BOULEVARD, Oakville (GO Glenorchy)
Single Family$4,500/mo
Listing Courtesy of CENTURY 21 REGAL REALTY INC.

505 HEATH STREET, Oakville (RO River Oaks)
House$4,500/mo
Listing Courtesy of BAY STREET GROUP INC.

426 HIDDEN TRAIL, Oakville (GO Glenorchy)
House$4,590/mo
Listing Courtesy of HIGHLAND REALTY

425 RIVER SIDE DRIVE, Oakville (CO Central)
House$4,200/mo
Listing Courtesy of ROYAL LEPAGE TERREQUITY REALTY

3124 POST ROAD S, Oakville (GO Glenorchy)
Row / Townhouse$4,200/mo
Listing Courtesy of HOMELIFE LANDMARK REALTY INC.

3030 JOHN MCKAY BOULEVARD, Oakville (JM Joshua Meadows)
Row / Townhouse$4,200/mo
Listing Courtesy of HOMELIFE/MIRACLE REALTY LTD

3124 POST ROAD S, Oakville (GO Glenorchy)
Row / Townhouse$4,200/mo
Listing Courtesy of HOMELIFE LANDMARK REALTY INC.

285 SIXTEEN MILE DRIVE, Oakville (GO Glenorchy)
House$4,500/mo
Listing Courtesy of UNION CAPITAL REALTY

3095 ROBERT BROWN BOULEVARD, Oakville (GO Glenorchy)
Single Family$4,500/mo
Listing Courtesy of CENTURY 21 REGAL REALTY INC.

505 HEATH STREET, Oakville (RO River Oaks)
House$4,500/mo
Listing Courtesy of BAY STREET GROUP INC.

426 HIDDEN TRAIL, Oakville (GO Glenorchy)
House$4,590/mo
Listing Courtesy of HIGHLAND REALTY
Sold Comparables
Access to sold property data requires a registered and verified account with TRREB DDF integration.
Coming SoonRented Comparables
Access to rented property data requires a registered and verified account with TRREB DDF integration.
Coming SoonBook a Viewing
3169 DAISY WAY, Oakville (GO Glenorchy), Ontario, L6M1L3
