3139 ORION BOULEVARD, Orillia, Ontario
MLS: S12953246 | House (Freehold)
$759,900



Property Description
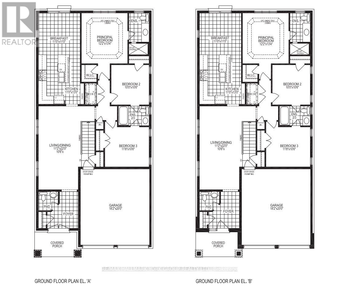
Take advantage of new rebates with revised pricing! The appeal of Orillia living truly comes to life in communities like Westridge Trailside. Set on a premium 40 ft x 131 ft lot, 3139 Orion Blvd presents the future Berkley model by respected local builder Dreamland Homes, an opportunity to own brand-new construction in one of the city's fastest growing neighbourhoods. Thoughtfully designed with both style and function in mind, this home offers over $20,000 in carefully selected upgrades, including 5" wide hardwood flooring throughout the main level, quartz kitchen countertops with a stainless steel undermount sink, a stained oak staircase, and smooth ceilings throughout. Central air conditioning and garage door openers add everyday comfort and convenience, creating a space that is truly move-in ready from day one. Perfectly positioned for both lifestyle and accessibility, you're just minutes from Costco, Lakehead University, Walter Henry Park, and a wide range of shopping and dining options. With quick connections to Highways 11 and 12, commuting to Toronto or escaping north to Muskoka is effortless, while Orillia itself continues to grow as a vibrant, well-connected city that still holds onto its small-town charm. Whether you're looking to settle into a modern, family-friendly community or invest in a growing area, this is a home that offers both immediate comfort and long-term value. With additional models and lots available, there's also the flexibility to build a home that truly fits your vision. (id:64974)
Quick Facts
- Property Type: House (Freehold)
- Style: Bungalow
- Bedrooms: 3 (3 above)
- Bathrooms: 3 (1 half)
- Ownership: Freehold
- Attached: No
- Fireplaces: Yes
- Parking: 4.0 spaces (Attached Garage, Garage)
- Frontage: 40 ft (12.2 m)
Listing Provided by: RE/MAX HALLMARK YORK GROUP REALTY LTD.
Board: Toronto Regional Real Estate Board
Data provided via CREA DDF®.
Detailed Features
Interior & Systems
- Heating: Forced air, Natural gas
- Cooling: Central air conditioning
- Basement: Unfinished, N/A
Exterior & Construction
- Style: Bungalow
- Exterior: Brick
- Foundation: Poured Concrete
- Sewer: Sanitary sewer
- Water: Municipal water
Lot & Land
- Frontage: 40 ft (12.2 m)
Community & Neighbourhood
- Building: Fireplace(s)
- Neighbourhood: Orillia
Room Details (6 rooms)
Listing Information
Listing History
MLS listing activity for 3139 ORION BOULEVARD, Orillia, Ontario — dates reflect when changes were recorded in the DDF
🚗 Travel times
Neighborhood Walkability
Mortgage & Cost Calculators
Nearby Homes ?Nearby Homes — Search CriteriaSearch Radius1 kmPrice Range±5%Match BedroomsYesMatch BathroomsYes

46 ATLANTIS DRIVE, Orillia
House$764,900
$5,760/yr taxListing Courtesy of RE/MAX RIGHT MOVE

2964 MONARCH DRIVE, Orillia
House$769,900
Listing Courtesy of RE/MAX HALLMARK YORK GROUP REALTY LTD.

2966 MONARCH DRIVE, Orillia
House$791,900
Listing Courtesy of RE/MAX HALLMARK YORK GROUP REALTY LTD.

LOT 46 ORION BOULEVARD, Orillia
House$799,900
Listing Courtesy of CENTURY 21 B.J. ROTH REALTY LTD.

90 ATLANTIS DRIVE, Orillia
House$799,000
$6,092/yr taxListing Courtesy of RE/MAX RIGHT MOVE

3194 ORION BOULEVARD, Orillia
House$899,900
Listing Courtesy of RE/MAX RIGHT MOVE

3199 ORION BOULEVARD, Orillia
House$999,900
Listing Courtesy of CENTURY 21 B.J. ROTH REALTY LTD.

73 ATLANTIS DRIVE, Orillia
House$3,650/mo
Listing Courtesy of RE/MAX RIGHT MOVE

LOT 1 MONARCH DRIVE, Orillia
House$901,900
Listing Courtesy of CENTURY 21 B.J. ROTH REALTY LTD.

LOT 34 MONARCH DRIVE, Orillia
House$964,900
Listing Courtesy of CENTURY 21 B.J. ROTH REALTY LTD.

3001 SIERRA DRIVE, Orillia
House$969,000
$7,287/yr taxListing Courtesy of RE/MAX HALLMARK YORK GROUP REALTY LTD.

3021 SIERRA DRIVE, Orillia
House$978,888
$7,272/yr taxListing Courtesy of REAL BROKER ONTARIO LTD.

3010 SIERRA DRIVE W, Orillia
House$799,000
$6,200/yr taxListing Courtesy of ROYAL LEPAGE SIGNATURE REALTY

2968 MONARCH DRIVE, Orillia
House$799,900
Listing Courtesy of RE/MAX HALLMARK YORK GROUP REALTY LTD.

3118 EMPEROR DRIVE, Orillia
House$899,999
$6,440/yr taxListing Courtesy of FARIS TEAM REAL ESTATE BROKERAGE
Similar Homes ?Similar Homes — Search CriteriaSearch Radius5 kmPrice Range±5%Match Home TypeYesMatch BedroomsYes

46 ATLANTIS DRIVE, Orillia
House$764,900
$5,760/yr taxListing Courtesy of RE/MAX RIGHT MOVE

27 VANESSA DRIVE, Orillia
House$749,999
$4,914/yr taxListing Courtesy of REAL BROKER ONTARIO LTD.

2964 MONARCH DRIVE, Orillia
House$769,900
Listing Courtesy of RE/MAX HALLMARK YORK GROUP REALTY LTD.

2966 MONARCH DRIVE, Orillia
House$791,900
Listing Courtesy of RE/MAX HALLMARK YORK GROUP REALTY LTD.
Similar Properties ?Active Comparables — Search CriteriaSearch Radius2 kmPrice Range±5%Match Home TypeYesMatch BedroomsYes

46 ATLANTIS DRIVE, Orillia
House$764,900
$5,760/yr taxListing Courtesy of RE/MAX RIGHT MOVE

27 VANESSA DRIVE, Orillia
House$749,999
$4,914/yr taxListing Courtesy of REAL BROKER ONTARIO LTD.

2964 MONARCH DRIVE, Orillia
House$769,900
Listing Courtesy of RE/MAX HALLMARK YORK GROUP REALTY LTD.

2966 MONARCH DRIVE, Orillia
House$791,900
Listing Courtesy of RE/MAX HALLMARK YORK GROUP REALTY LTD.
Sold Comparables
Access to sold property data requires a registered and verified account with TRREB DDF integration.
Coming SoonRented Comparables
Access to rented property data requires a registered and verified account with TRREB DDF integration.
Coming SoonBook a Viewing
3139 ORION BOULEVARD, Orillia, Ontario

