313 BURGAR STREET, Welland (Welland Downtown), Ontario, L3B2T5
MLS: X12887792 | House (Freehold)
$399,900




























Property Description
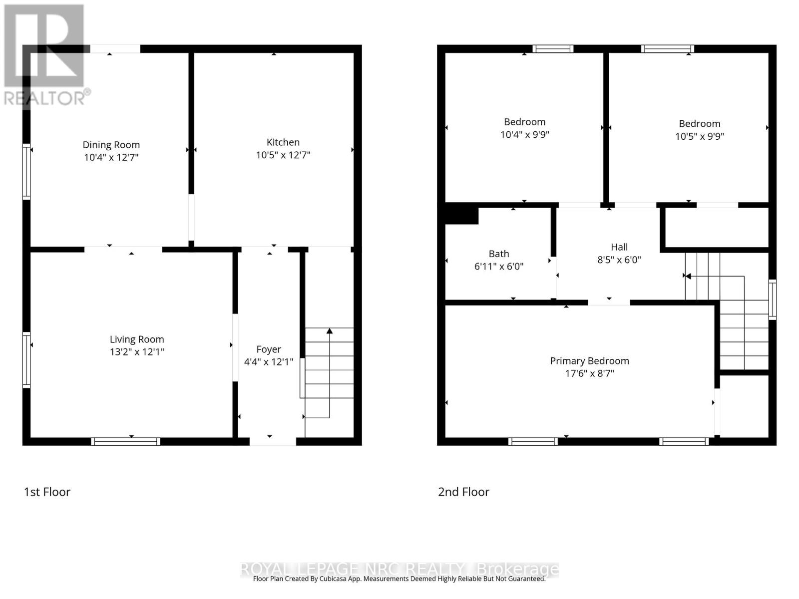
Welcome to 313 Burgar Street in Welland - a move-in ready home that's perfect for you! This charming 3-bedroom property features a functional layout with a separate dining room, bright living space, and an inviting kitchen complete with new stainless steel appliances. Upstairs, you'll find three generous bedrooms and a modern full bath. Centrally located close to parks, schools, shopping, and transit. With its fresh updates, new appliances, and affordable price point, this home offers convenience and value! Basement waterproofing and sump sump done in 2025. Kitchen appliances 2024. Washer and Dryer 2021. Other recent updates in 2020-2021 include new roof, fascia, soffits, floors on main floor and second floor, completely renovated kitchen, bathroom, front door. (id:64974)
Quick Facts
- Property Type: House (Freehold)
- Bedrooms: 3 (3 above)
- Bathrooms: 1
- Ownership: Freehold
- Attached: No
- Parking: 2.0 spaces (No Garage)
- Frontage: 37 ft (11.3 m)
Costs
- Annual Taxes: $2,011.00
Listing Provided by: ROYAL LEPAGE NRC REALTY
Board: Niagara Association of REALTORS®
Data provided via CREA DDF®.
Detailed Features
Interior & Systems
- Heating: Forced air, Natural gas
- Cooling: Central air conditioning
- Basement: Unfinished, Full
- Appliances: Washer, Refrigerator, Dishwasher, Stove, Dryer, Microwave
Exterior & Construction
- Exterior: Vinyl siding
- Foundation: Block
- Sewer: Sanitary sewer
- Water: Municipal water
Lot & Land
- Frontage: 37 ft (11.3 m)
- Features: Sump Pump
Community & Neighbourhood
- Neighbourhood: 768 - Welland Downtown
Room Details (6 rooms)
Listing Information
Listing History
MLS listing activity for 313 BURGAR STREET, Welland (Welland Downtown), Ontario, L3B2T5 — dates reflect when changes were recorded in the DDF
🚗 Travel times
Neighborhood Walkability
Mortgage & Cost Calculators
Nearby Homes ?Nearby Homes — Search CriteriaSearch Radius1 kmPrice Range±5%Match BedroomsYesMatch BathroomsYes

271 CROWLAND AVENUE, Welland (Lincoln/Crowland)
House$399,000
$2,928/yr taxListing Courtesy of EXP REALTY

271 CROWLAND Avenue, Welland
House$399,000
$2,928/yr taxListing Courtesy of eXp Realty (Team Branch)

11 - 162 FIRST STREET, Welland (Lincoln/Crowland)
Condo - Row / Townhouse$489,900
$3,698/yr taxListing Courtesy of RE/MAX GARDEN CITY REALTY INC, BROKERAGE

284 BURGAR STREET, Welland (Welland Downtown)
House$419,900
$2,681/yr taxListing Courtesy of RE/MAX GARDEN CITY REALTY INC, BROKERAGE

79 DUNKIRK ROAD, Welland (Lincoln/Crowland)
House$420,000
$3,042/yr taxListing Courtesy of COLDWELL BANKER ADVANTAGE REAL ESTATE INC, BROKERAGE

3505 OKE STREET, LaSalle
House$949,999
Listing Courtesy of REMAX CAPITAL DIAMOND REALTY

264 HELLEMS AVENUE, Welland (Welland Downtown)
House$699,000
$4,412/yr taxListing Courtesy of RE/MAX ESCARPMENT REALTY INC.

211 LINCOLN STREET, Welland (Lincoln/Crowland)
Row / Townhouse$329,900
$2,035/yr taxListing Courtesy of ROYAL LEPAGE NRC REALTY

341 CORVETTE Street, Welland
House$319,900
$1,940/yr taxListing Courtesy of Royal LePage NRC Realty Inc.

581 REGENT STREET, Strathroy-Caradoc (Mount Brydges)
Row / Townhouse$578,000
Listing Courtesy of SAKER REALTY CORPORATION

579 REGENT STREET, Strathroy-Caradoc (Mount Brydges)
Row / Townhouse$560,000
Listing Courtesy of SAKER REALTY CORPORATION

575 REGENT STREET, Strathroy-Caradoc (Mount Brydges)
Row / Townhouse$560,000
Listing Courtesy of SAKER REALTY CORPORATION

573 REGENT STREET, Strathroy-Caradoc (Mount Brydges)
Row / Townhouse$560,000
Listing Courtesy of SAKER REALTY CORPORATION

540 REGENT STREET, Strathroy-Caradoc (Mount Brydges)
House$728,300
Listing Courtesy of SAKER REALTY CORPORATION

538 REGENT STREET, Strathroy-Caradoc (Mount Brydges)
House$675,000
Listing Courtesy of SAKER REALTY CORPORATION
Similar Homes ?Similar Homes — Search CriteriaSearch Radius5 kmPrice Range±5%Match Home TypeYesMatch BedroomsYes

210 WRIGHT STREET, Welland (Lincoln/Crowland)
House$399,900
$2,073/yr taxListing Courtesy of RE/MAX GARDEN CITY REALTY INC, BROKERAGE

185 DENISTOUN Street Unit# 126, Welland
Condo - Row / Townhouse$399,000
$2,183/yr taxListing Courtesy of One Percent Realty Ltd.

107 SAINT GEORGE Street, Welland
House$399,000
$2,282/yr taxListing Courtesy of Chase Realty Inc.

39 DENISTOUN STREET, Welland (Broadway)
Row / Townhouse$399,000
$4,830/yr taxListing Courtesy of RE/MAX REAL ESTATE CENTRE INC.

271 CROWLAND AVENUE, Welland (Lincoln/Crowland)
House$399,000
$2,928/yr taxListing Courtesy of EXP REALTY

271 CROWLAND Avenue, Welland
House$399,000
$2,928/yr taxListing Courtesy of eXp Realty (Team Branch)

625 LINCOLN STREET, Welland (Lincoln/Crowland)
House$404,900
$3,138/yr taxListing Courtesy of ROYAL LEPAGE NRC REALTY

85 - 185 DENISTOUN STREET, Welland (Broadway)
Condo - Row / Townhouse$389,000
$2,148/yr taxListing Courtesy of RE/MAX GARDEN CITY REALTY INC, BROKERAGE
Similar Properties ?Active Comparables — Search CriteriaSearch Radius2 kmPrice Range±5%Match Home TypeYesMatch BedroomsYes

210 WRIGHT STREET, Welland (Lincoln/Crowland)
House$399,900
$2,073/yr taxListing Courtesy of RE/MAX GARDEN CITY REALTY INC, BROKERAGE

107 SAINT GEORGE Street, Welland
House$399,000
$2,282/yr taxListing Courtesy of Chase Realty Inc.

271 CROWLAND Avenue, Welland
House$399,000
$2,928/yr taxListing Courtesy of eXp Realty (Team Branch)

271 CROWLAND AVENUE, Welland (Lincoln/Crowland)
House$399,000
$2,928/yr taxListing Courtesy of EXP REALTY

185 DENISTOUN Street Unit# 126, Welland
Condo - Row / Townhouse$399,000
$2,183/yr taxListing Courtesy of One Percent Realty Ltd.

39 DENISTOUN STREET, Welland (Broadway)
Row / Townhouse$399,000
$4,830/yr taxListing Courtesy of RE/MAX REAL ESTATE CENTRE INC.

625 LINCOLN STREET, Welland (Lincoln/Crowland)
House$404,900
$3,138/yr taxListing Courtesy of ROYAL LEPAGE NRC REALTY

85 - 185 DENISTOUN STREET, Welland (Broadway)
Condo - Row / Townhouse$389,000
$2,148/yr taxListing Courtesy of RE/MAX GARDEN CITY REALTY INC, BROKERAGE

47 MARSHALL AVENUE, Welland (Broadway)
House$2,500/mo
Listing Courtesy of RIGHT AT HOME REALTY

85 - 185 DENISTOUN STREET, Welland (Broadway)
Condo - Row / Townhouse$2,100/mo
Listing Courtesy of RE/MAX GARDEN CITY REALTY INC, BROKERAGE

37 - 185 DENISTOUN STREET, Welland (Broadway)
Condo - Row / Townhouse$1,950/mo
Listing Courtesy of RE/MAX GARDEN CITY REALTY INC, BROKERAGE

MAIN FLOOR - 16 VANIER DRIVE, Welland (Lincoln/Crowland)
House$1,900/mo
Listing Courtesy of ROYAL LEPAGE NRC REALTY

1 - 936 EAST MAIN STREET, Welland (Welland Downtown)
Condo - Row / Townhouse$1,850/mo
Listing Courtesy of COLDWELL BANKER ADVANTAGE REAL ESTATE INC, BROKERAGE

69 EAST MAIN Street Unit# 203, Welland
Apartment$1,725/mo
Listing Courtesy of Corcoran Horizon Realty
Sold Comparables
Access to sold property data requires a registered and verified account with TRREB DDF integration.
Coming SoonRented Comparables
Access to rented property data requires a registered and verified account with TRREB DDF integration.
Coming SoonBook a Viewing
313 BURGAR STREET, Welland (Welland Downtown), Ontario, L3B2T5
