3115 NAPPERTON DRIVE, Adelaide Metcalfe, Ontario, N7G3H8
MLS: X12900960 | House (Freehold)
$1,469,900










































Property Description
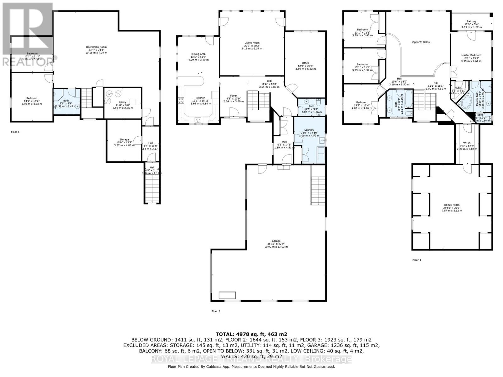
Built to last and designed to impress, this custom ICF-constructed home delivers exceptional energy efficiency, durability and privacy on a beautifully appointed 2-acre lot just minutes from Strathroy's amenities. The main living area makes a striking first impression with soaring vaulted ceilings and floor to ceiling rear windows that floor the space with natural light and frame your private grounds. The well- appointed kitchen features a functional peninsula and opens seamlessly to the dining area with garden door access to the outdoor patio. A dedicated office, 3 piece bath and laundry room with direct access to the 3 car garage round out the main floor. The oversized third bay is ideal for a trailer, workshop or extra storage and includes convenient basement access. Upstairs, four bedrooms offer quiet comfort, including a spacious primary suite with a private 5 piece ensuite and owners' balcony. A 4 piece family bath and bonus room above the garage - currently used as a media room - provide flexible living options for any lifestyle. The fully finished basement extends your living space with a large family room, two additional bedrooms, a 3 piece bath, cold storage and utility rooms. Outside the 2 acre lot is your private retreat - ideal for gardening, recreation or simply unwinding in seclusion. The detached 32' x 56' shop is a standout feature, offering serious potential for hobbyists, contractors or anyone needing substantial workspace and storage. A rare combination of craftsmanship, space and location. Properties like this don't come along often. (id:64974)
Quick Facts
- Property Type: House (Freehold)
- Bedrooms: 6 (4 above, 2 below)
- Bathrooms: 4 (1 half)
- Ownership: Freehold
- Attached: No
- Parking: 13.0 spaces (Attached Garage, Garage)
- Frontage: 100 ft (30.5 m)
Costs
- Annual Taxes: $9,161.00
Listing Provided by: ROYAL LEPAGE TRILAND REALTY
Board: London and St. Thomas Association of REALTORS®
Data provided via CREA DDF®.
Detailed Features
Interior & Systems
- Heating: Radiant heat, Geo Thermal
- Cooling: Central air conditioning
- Basement: Finished, Walk out, N/A
- Appliances: Washer, Refrigerator, Water softener, Dishwasher, Stove, Dryer, Water Heater
- Utilities: Electricity, Cable
Exterior & Construction
- Exterior: Stucco
- Foundation: Insulated Concrete Forms
- Sewer: Septic System
Lot & Land
- Frontage: 100 ft (30.5 m)
- Features: Open space
- Zoning: VR (H-7), EP
Community & Neighbourhood
- Neighbourhood: Rural Adelaide Metcalfe
Room Details (15 rooms)
Listing Information
Listing History
MLS listing activity for 3115 NAPPERTON DRIVE, Adelaide Metcalfe, Ontario, N7G3H8 — dates reflect when changes were recorded in the DDF
🚗 Travel times
Neighborhood Walkability
Mortgage & Cost Calculators
Nearby Homes ?Nearby Homes — Search CriteriaSearch Radius1 kmPrice Range±5%Match BedroomsYesMatch BathroomsYes
Similar Homes ?Similar Homes — Search CriteriaSearch Radius5 kmPrice Range±5%Match Home TypeYesMatch BedroomsYes

65 PAISLEY GREEN AVENUE, Caledon (Caledon East)
House$1,469,900
$6,389/yr taxListing Courtesy of REAL BROKER ONTARIO LTD.

LOT 7 KLEIN Circle, Ancaster
House$1,469,900
Listing Courtesy of Michael St. Jean Realty Inc.

17 MCNUTT STREET, Brampton (Bram West)
House$1,469,900
$10,662/yr taxListing Courtesy of ROYAL LEPAGE STATE REALTY

3173 SPRING CREEK CRESCENT, Mississauga (Meadowvale)
House$1,469,900
$8,188/yr taxListing Courtesy of Royal Lepage Real Estate Associates

17 MCNUTT Street, Brampton
House$1,469,900
$10,662/yr taxListing Courtesy of Royal LePage State Realty Inc.

207 FALLHARVEST WAY, Whitchurch-Stouffville (Stouffville)
House$1,469,990
Listing Courtesy of RE/MAX PREMIER INC.

223 FALLHARVEST WAY, Whitchurch-Stouffville (Stouffville)
House$1,469,990
Listing Courtesy of RE/MAX PREMIER INC.

5440 WADELL COURT, Ottawa
House$1,470,000
$8,812/yr taxListing Courtesy of ROYAL LEPAGE TEAM REALTY

6 GLENHEATHER TERRACE, Toronto (Rouge)
House$1,470,000
$6,312/yr taxListing Courtesy of RE/MAX CROSSROADS REALTY INC.

26 PAPE AVENUE, Toronto (South Riverdale)
House$1,470,000
$6,628/yr taxListing Courtesy of ROYAL LEPAGE SIGNATURE REALTY

26 HOSTEIN DRIVE, Hamilton (Ancaster)
House$1,469,000
$8,879/yr taxListing Courtesy of RE/MAX WEST REALTY INC.

2215 SPRINGFIELD COURT, Mississauga (Sheridan)
House$1,469,000
$8,105/yr taxListing Courtesy of Engel & Volkers Oakville

142 WATERSIDE CRESCENT, Vaughan (Maple)
House$1,469,000
$6,184/yr taxListing Courtesy of REMAX YOUR COMMUNITY REALTY

80 SCOTCHMERE CRESCENT, Brampton (Bram East)
House$1,469,000
$9,873/yr taxListing Courtesy of HOMELIFE SILVERCITY REALTY INC.

15 BABCOCK STREET, Hamilton (Waterdown)
House$1,469,000
$8,282/yr taxListing Courtesy of RE/MAX PREMIER INC.
Similar Properties ?Active Comparables — Search CriteriaSearch Radius2 kmPrice Range±5%Match Home TypeYesMatch BedroomsYes
No active comparables found in this area.
No rental comparables found in this area.
Sold Comparables
Access to sold property data requires a registered and verified account with TRREB DDF integration.
Coming SoonRented Comparables
Access to rented property data requires a registered and verified account with TRREB DDF integration.
Coming SoonBook a Viewing
3115 NAPPERTON DRIVE, Adelaide Metcalfe, Ontario, N7G3H8

