310 RUBIDGE STREET, Peterborough (Town Ward 3), Ontario, K9J3P4
MLS: X12480090 | Offices
$3,000.00 / monthly






























Property Description
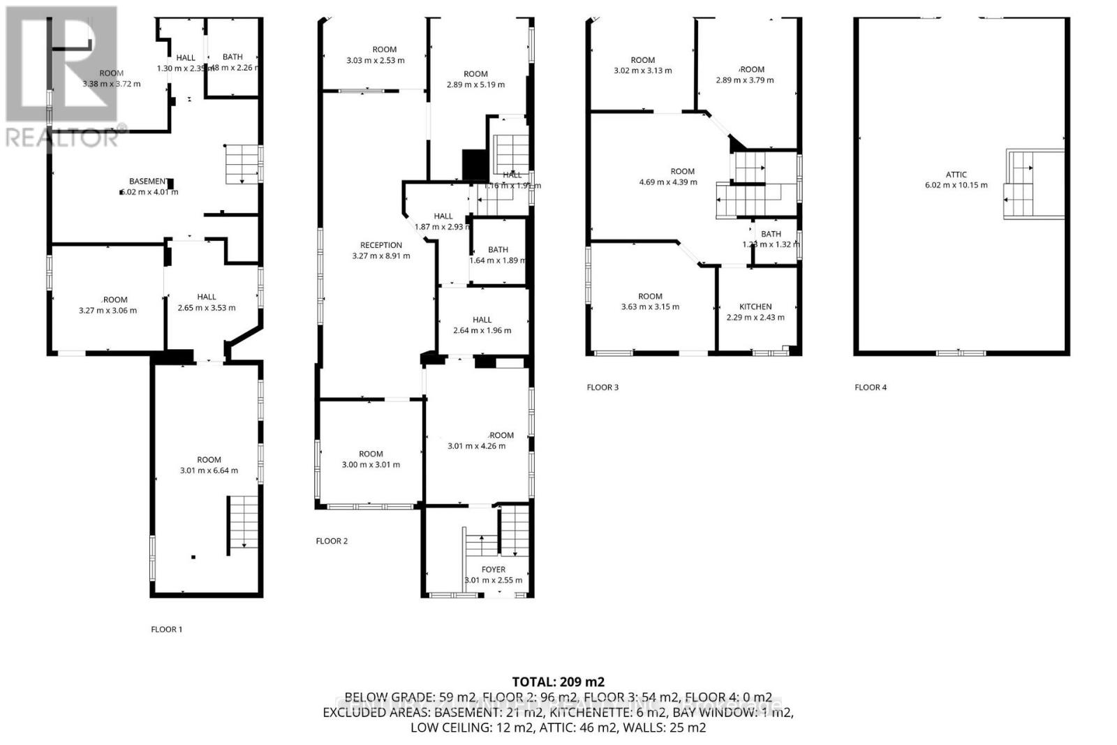
Step Inside a Space That Means Business.This beautifully renovated professional office space is for lease in the heart of Downtown Peterborough. With flexible lease terms, modern updates, and convenient parking options, this property is ideal for medical, wellness, or professional service tenants looking to elevate their brand in a high-visibility location. HIGHLIGHTS: Freshly renovated & move-in ready-bright - Professional finishes throughout - Flexible lease terms to suit your business needs - 3 bathrooms for staff and client convenience - Multiple private offices, reception area & meeting space - On-site parking plus + additional parking across the street. Position your business where it belongs-in the centre of Peterborough's commercial hub. (id:64974)
Quick Facts
- Property Type: Offices
- Bedrooms: None
- Bathrooms: None
- Living Area: 2,889 sq ft (268.4 m²)
- Parking: 2 spaces
- Frontage: 25 ft (7.6 m)
Costs
- Annual Taxes: $8,855.28
Listing Provided by: CENTURY 21 UNITED REALTY INC.
Board: Central Lakes Association of REALTORS®
Data provided via CREA DDF®.
Detailed Features
Interior & Systems
- Heating: Baseboard heaters, Forced air, Natural gas
- Cooling: Fully air conditioned
- Appliances: Alarm System
Exterior & Construction
- Water: Municipal water
Lot & Land
- Frontage: 25 ft (7.6 m)
- Zoning: C5
Community & Neighbourhood
- Neighbourhood: Town Ward 3
Listing Information
Listing History
Buy/Sell/Terminated/Expired listing history for 310 RUBIDGE STREET, Peterborough (Town Ward 3), Ontario, K9J3P4
Location & Neighborhood
🚗 Travel times
Neighborhood Walkability
Mortgage & Cost Calculators
Nearby Homes (Within 2km)
Similar Homes
Similar Properties
Sold Comparables
Access to sold property data requires a registered and verified account with TRREB DDF integration.
Coming SoonRented Comparables
Access to rented property data requires a registered and verified account with TRREB DDF integration.
Coming Soon

































