310 13 CONCESSION ROAD W, Tiny, Ontario, L0L2J0
MLS: S12766140 | House (Freehold)
$599,900






































Property Description
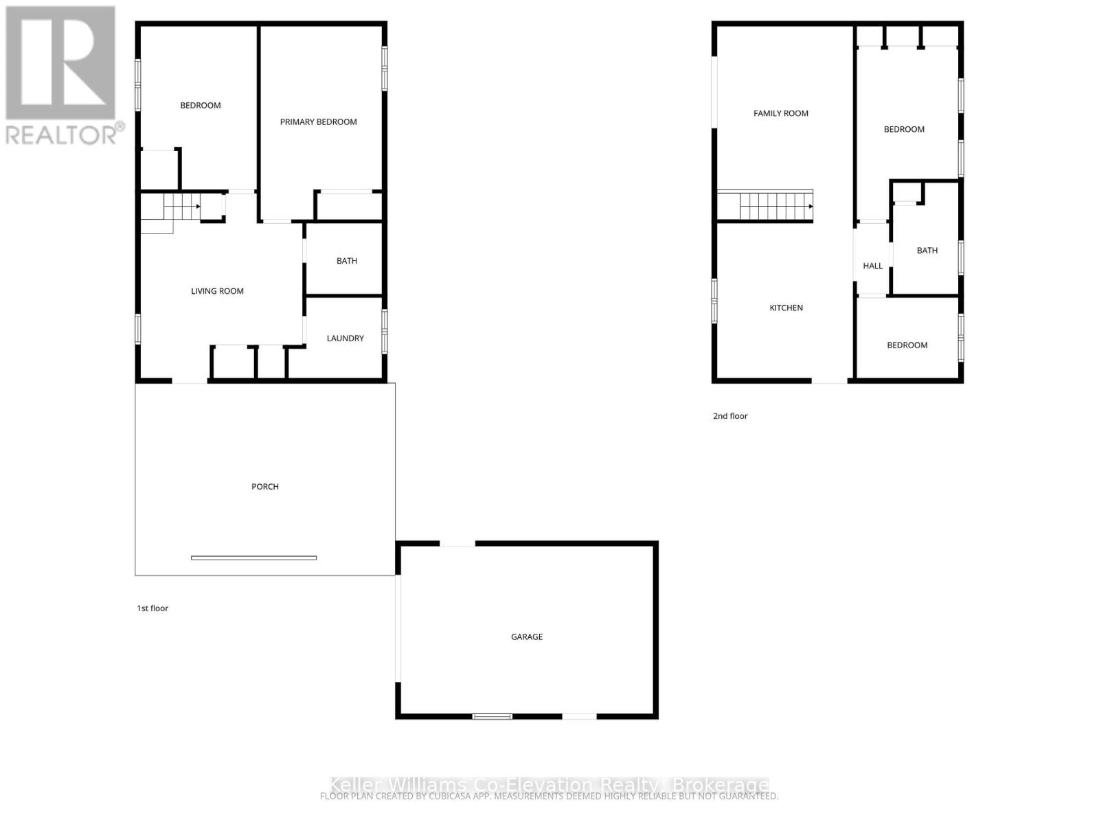
Have you ever walked into a home and instantly felt at ease? The kind of place that feels like a deep breath the moment you step inside. This is that house. Tucked into a quiet, forested setting and backing onto greenbelt, this property offers privacy, starry skies, birdsong and the kind of calm that's getting harder to find. Surrounded by nature yet just minutes from one of Tiny's best sandy beaches, you truly get the best of both worlds, peaceful rural living without feeling far from everything. Set on an expansive 170 x 150 ft double-wide lot, there is room to breathe, room to play, and room to imagine what's next. The oversized insulated garage, built in 2011, with electrical is perfect for hobbies, storage or a future workshop. An additional 10x12 shed also offers additional outdoor storage. High-speed internet is available, so working from home or streaming is seamless. Inside, the home is filled with soft, natural light that keeps the space feeling bright and uplifting all day long. With four bedrooms, two bathrooms and a spacious eat-in kitchen, there is flexibility for growing families, guests or even in-law potential. The layout feels welcoming and functional, a home that simply feels good to be in. When you fall in love with this house, it just might love you right back. Although the lot cannot be severed, there is the potential to build an accessory dwelling, or perhaps a shop (to be confirmed with Township). Recent improvements include: Windows - 2021 * New flooring throughout, Updated bathrooms * Seamless Eavestroughs * Jet pump and pressure tank* Garage - New Panel & Exterior Light* all in 2024 * and New deck - Oct 2025 * Age of Shingles - 2011. (id:64974)
Quick Facts
- Property Type: House (Freehold)
- Style: Raised bungalow
- Bedrooms: 4 (4 above)
- Bathrooms: 2
- Ownership: Freehold
- Attached: No
- Parking: 5 spaces (Detached Garage, Garage)
- Frontage: 170 ft (51.8 m)
Costs
- Annual Taxes: $1,741.00 (2026)
Listing Provided by: Real Broker Ontario Ltd
Board: OnePoint Association of REALTORS®
Data provided via CREA DDF®.
Detailed Features
Interior & Systems
- Heating: Baseboard heaters, Electric
- Cooling: None
- Basement: Full
- Appliances: Washer, Refrigerator, Dishwasher, Stove, Dryer, Water Treatment
- Utilities: Electricity
- Security: Smoke Detectors
Exterior & Construction
- Style: Raised bungalow
- Exterior: Vinyl siding
- Foundation: Block
- Sewer: Septic System
Lot & Land
- Frontage: 170 ft (51.8 m)
- Features: Wooded area, Irregular lot size, Backs on greenbelt
- Zoning: RR
Community & Neighbourhood
- Community: School Bus
- Neighbourhood: Rural Tiny
Room Details (8 rooms)
Listing Information
Listing History
Buy/Sell/Terminated/Expired listing history for 310 13 CONCESSION ROAD W, Tiny, Ontario, L0L2J0
Location & Neighborhood
🚗 Travel times
Neighborhood Walkability
Mortgage & Cost Calculators
Nearby Homes (Within 2km)
Similar Homes
Similar Properties
No rental comparables found in this area.
Sold Comparables
Access to sold property data requires a registered and verified account with TRREB DDF integration.
Coming SoonRented Comparables
Access to rented property data requires a registered and verified account with TRREB DDF integration.
Coming Soon



















