31 WILLOW Drive, Brantford, Ontario, N3R2W5
MLS: 40820336 | House (Freehold)
$615,000




































Property Description
Nestled on a quiet, mature street, 31 Willow Drive combines timeless charm with thoughtful updates. The sunlit living room features original hardwood floors and an inviting fireplace (electric) open to the kitchen (eat-in dining room), 2+1 bedrooms and 2 fully updated bathrooms. A newly renovated basement expands your living options with fresh, modern finishes. Outdoors is an oversized fenced yard offers privacy, large deck, gas BBQ hook-up and room to play ,double car driveway, while the one-car garage adds everyday convenience. With close proximity to Hwy 403, the Wayne Gretzky Centre, schools, city transit, shopping and scenic parks, this home offers an ideal balance of tranquility and accessibility. (id:64974)
Quick Facts
- Property Type: House (Freehold)
- Style: Bungalow
- Bedrooms: 3 (2 above, 1 below)
- Bathrooms: 2
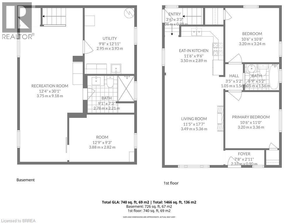
- Living Area: 1,466 sq ft (136.2 m²)
- Above Grade: 740 sq ft (68.7 m²)
- Below Grade: 726 sq ft (67.4 m²)
- Year Built: 1950
- Ownership: Freehold
- Attached: No
- Fireplaces: 1
- Parking: 7.0 spaces (Detached Garage)
- Lot Size: 0.2000 acres (0.08 ha)
- Frontage: 60 ft (18.3 m)
Costs
- Annual Taxes: $3,702.84
Listing Provided by: Peak Realty Ltd.
Board: Brantford Regional Real Estate Assn Inc
Data provided via CREA DDF®.
Detailed Features
Interior & Systems
- Heating: Forced air, Natural gas
- Cooling: Central air conditioning
- Basement: Finished, Full
- Appliances: Washer, Refrigerator, Water softener, Gas stove(s), Dryer, Window Coverings, Microwave Built-in
- Fireplace Features: Electric, Other - See remarks
Exterior & Construction
- Style: Bungalow
- Exterior: Vinyl siding
- Foundation: Poured Concrete
- Sewer: Municipal sewage system
- Water: Municipal water
Lot & Land
- Lot Size: 0.2000 acres (0.08 ha)
- Frontage: 60 ft (18.3 m)
- Features: Paved driveway
- Zoning: R1A
Community & Neighbourhood
- Community: School Bus, Community Centre
- Subdivision: 2012 - Fairview/Greenbrier
Room Details (9 rooms)
Listing Information
Listing History
MLS listing activity for 31 WILLOW Drive, Brantford, Ontario, N3R2W5 — dates reflect when changes were recorded in the DDF
🚗 Travel times
Neighborhood Walkability
Mortgage & Cost Calculators
Nearby Homes ?Nearby Homes — Search CriteriaSearch Radius1 kmPrice Range±5%Match BedroomsYesMatch BathroomsYes

31 WILLOW Drive, Brantford
Single Family$639,999
$3,703/yr taxListing Courtesy of Peak Realty Ltd.

31 WILLOW DRIVE, Brantford
Single Family$639,999
$3,703/yr taxListing Courtesy of PEAK REALTY LTD.

34 NORMAN Street Unit# 409, Brantford
Condo - Apartment$2,000/mo
Listing Courtesy of Re/Max Twin City Realty Inc

34 NORMAN Street Unit# 311, Brantford
Condo - Apartment$439,900
$2,105/yr taxListing Courtesy of Re/Max Twin City Realty Inc

34 NORMAN Street Unit# 211, Brantford
Condo - Apartment$519,900
Listing Courtesy of Century 21 Heritage House LTD

502 - 34 NORMAN STREET, Brantford
Condo - Apartment$499,900
$2,504/yr taxListing Courtesy of RE/MAX ESCARPMENT REALTY INC.

303 - 34 NORMAN STREET, Brantford
Condo - Apartment$505,000
$2,750/yr taxListing Courtesy of HONESTDOOR INC.

71 KING GEORGE Road Unit# 305, Brantford
Apartment$1,875/mo
Listing Courtesy of TAG Realty

54 DEBBY Crescent, Brantford
House$639,900
$2,812/yr taxListing Courtesy of Century 21 Heritage House LTD

71 BARNES Avenue, Brantford
House$699,900
$4,825/yr taxListing Courtesy of Royal LePage Action Realty

25 BUCKINGHAM Street, Brantford
House$2,900/mo
Listing Courtesy of Revel Realty Inc

25 BUCKINGHAM STREET, Brantford
House$2,900/mo
Listing Courtesy of REVEL REALTY INC.

71 BARNES AVENUE, Brantford
House$699,900
$4,825/yr taxListing Courtesy of ROYAL LEPAGE ACTION REALTY

9 - 146 NORTH PARK STREET, Brantford
Condo - Row / Townhouse$539,900
$4,717/yr taxListing Courtesy of RE/MAX ESCARPMENT REALTY INC.

8 WADDINGTON Street, Brantford
House$579,000
$3,764/yr taxListing Courtesy of Coldwell Banker Homefront Realty
Similar Homes ?Similar Homes — Search CriteriaSearch Radius5 kmPrice Range±5%Match Home TypeYesMatch BedroomsYes

56 BALMORAL Drive, Brantford
House$614,900
$3,795/yr taxListing Courtesy of Re/Max Twin City Realty Inc.

385 PARK Road N Unit# 1, Brantford
Condo - Row / Townhouse$614,900
$3,984/yr taxListing Courtesy of Pay It Forward Realty

21 BEVERLY ROAD, Brantford
House$615,900
$3,703/yr taxListing Courtesy of CENTURY 21 FIRST CANADIAN CORP

30 BOWERY ROAD, Brantford
Row / Townhouse$619,000
$4,659/yr taxListing Courtesy of RE/MAX GOLD REALTY INC.

16 PARIS Road, Brantford
House$619,900
$4,763/yr taxListing Courtesy of Coldwell Banker Homefront Realty

26 HALLMARK Street, Brantford
House$609,995
$3,856/yr taxListing Courtesy of Peak Realty Ltd.

390 BRANTWOOD PARK Road, Brantford
House$624,900
$3,672/yr taxListing Courtesy of Re/Max Twin City Realty Inc

390 BRANTWOOD PARK ROAD, Brantford
House$624,900
$3,672/yr taxListing Courtesy of RE/MAX TWIN CITY REALTY INC.

42 - 520 GREY STREET, Brantford
Row / Townhouse$624,900
$4,379/yr taxListing Courtesy of RE/MAX ESCARPMENT REALTY INC.

520 GREY Street Unit# 42, Brantford
Row / Townhouse$624,900
$4,379/yr taxListing Courtesy of RE/MAX Escarpment Realty Inc.

52 - 550 GREY STREET, Brantford
Condo - Row / Townhouse$605,000
$4,394/yr taxListing Courtesy of Sotheby's International Realty Canada, Brokerage

9 INGLEWOOD Street, Brantford
House$625,000
$3,780/yr taxListing Courtesy of RE/MAX Escarpment Realty Inc.

110A GILKISON STREET, Brant (Brantford Twp)
House$629,000
$4,317/yr taxListing Courtesy of CITYSCAPE REAL ESTATE LTD.

11 - 570 WEST STREET, Brantford
Condo - Row / Townhouse$629,900
$4,375/yr taxListing Courtesy of ROYAL LEPAGE ACTION REALTY

570 WEST Street Unit# 11, Brantford
Condo - Row / Townhouse$629,900
$4,375/yr taxListing Courtesy of Royal LePage Action Realty
Similar Properties ?Active Comparables — Search CriteriaSearch Radius2 kmPrice Range±5%Match Home TypeYesMatch BedroomsYes

56 BALMORAL Drive, Brantford
House$614,900
$3,795/yr taxListing Courtesy of Re/Max Twin City Realty Inc.

385 PARK Road N Unit# 1, Brantford
Condo - Row / Townhouse$614,900
$3,984/yr taxListing Courtesy of Pay It Forward Realty

16 PARIS Road, Brantford
House$619,900
$4,763/yr taxListing Courtesy of Coldwell Banker Homefront Realty

570 WEST Street Unit# 11, Brantford
Condo - Row / Townhouse$629,900
$4,375/yr taxListing Courtesy of Royal LePage Action Realty

11 - 570 WEST STREET, Brantford
Condo - Row / Townhouse$629,900
$4,375/yr taxListing Courtesy of ROYAL LEPAGE ACTION REALTY

120 HENRY STREET, Brantford
House$599,900
$3,349/yr taxListing Courtesy of REVEL REALTY INC.

120 HENRY Street, Brantford
House$599,900
$3,349/yr taxListing Courtesy of Revel Realty Inc

130 HENRY Street, Brantford
House$599,900
$3,872/yr taxListing Courtesy of Royal LePage Wolle Realty

83 DUNSDON Street, Brantford
House$599,900
$4,563/yr taxListing Courtesy of RE/MAX TWIN CITY FAISAL SUSIWALA REALTY

61 ABIGAIL AVENUE, Brantford
House$639,000
$3,949/yr taxListing Courtesy of ROYAL LEPAGE STATE REALTY

61 ABIGAIL Avenue, Brantford
House$639,000
$3,949/yr taxListing Courtesy of Royal LePage State Realty Inc.

54 DEBBY Crescent, Brantford
House$639,900
$2,812/yr taxListing Courtesy of Century 21 Heritage House LTD

31 WILLOW DRIVE, Brantford
Single Family$639,999
$3,703/yr taxListing Courtesy of PEAK REALTY LTD.

31 WILLOW Drive, Brantford
Single Family$639,999
$3,703/yr taxListing Courtesy of Peak Realty Ltd.

25 BUCKINGHAM STREET, Brantford
House$2,900/mo
Listing Courtesy of REVEL REALTY INC.

25 BUCKINGHAM Street, Brantford
House$2,900/mo
Listing Courtesy of Revel Realty Inc

280 KING GEORGE ROAD, Brantford
House$2,650/mo
Listing Courtesy of NEWGEN REALTY EXPERTS

126 - 36 HAYHURST ROAD, Brantford
Condo - Apartment$2,500/mo
Listing Courtesy of REAL BROKER ONTARIO LTD.

36 HAYHURST Road Unit# 126, Brantford
Condo - Apartment$2,500/mo
Listing Courtesy of Real Broker Ontario Ltd.
Sold Comparables
Access to sold property data requires a registered and verified account with TRREB DDF integration.
Coming SoonRented Comparables
Access to rented property data requires a registered and verified account with TRREB DDF integration.
Coming SoonBook a Viewing
31 WILLOW Drive, Brantford, Ontario, N3R2W5
