31 OAKWOOD AVENUE, Norfolk (Simcoe), Ontario, N3Y1H5
MLS: X12530606 | House (Freehold)
$559,000











































Property Description
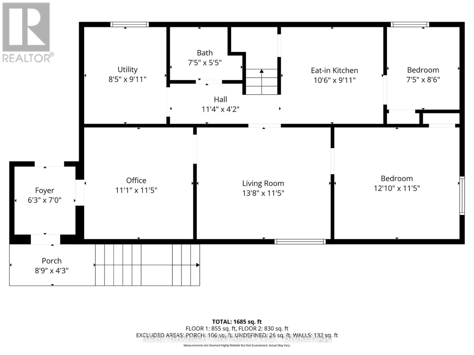
Attention investors and smart owner-occupants. This solid all-brick bungalow is located in a quiet, family-friendly neighbourhood in Simcoe and is currently configured as a duplex-style residence, offering flexible income and living potential.The main floor unit features a bright layout with three bedrooms, kitchen, bathroom, and access to the attached garage. The lower-level suite, complete with a separate entrance, includes two bedrooms, a four-piece bathroom, a spacious recreation room, and a dedicated laundry area-ideal for generating rental income or providing extended family accommodations.This property is a registered legal rental with Norfolk County and benefits from separately metered hydro for each level, allowing for independent utility management and simplified cost recovery. Recent updates include the roof, windows, and mechanical systems, enhancing long-term reliability and reducing future capital expenditures.Well-suited for investors seeking a turnkey income property or owner-occupants looking to offset mortgage costs, this versatile home offers strong functionality, durable construction, and excellent income potential in a desirable Simcoe location. (id:64974)
Quick Facts
- Property Type: House (Freehold)
- Style: Raised bungalow
- Bedrooms: 5 (3 above, 2 below)
- Bathrooms: 2
- Ownership: Freehold
- Attached: No
- Parking: 3 spaces (Attached Garage, Garage)
- Frontage: 112 ft (34.2 m)
Costs
- Annual Taxes: $3,415.10 (2025)
Listing Provided by: REAL BROKER ONTARIO LTD.
Board: Toronto Regional Real Estate Board
Data provided via CREA DDF®.
Detailed Features
Interior & Systems
- Heating: Forced air, Natural gas
- Cooling: Central air conditioning
- Basement: Finished, Separate entrance, N/A, N/A
- Appliances: Washer, Refrigerator, Stove, Dryer, Water Heater
- Utilities: Sewer, Electricity, Cable
Exterior & Construction
- Style: Raised bungalow
- Exterior: Concrete, Brick
- Foundation: Concrete
- Sewer: Sanitary sewer
- Water: Municipal water
Lot & Land
- Frontage: 112 ft (34.2 m)
- Features: In-Law Suite
- Zoning: R2
Community & Neighbourhood
- Community: School Bus
- Building: Separate Electricity Meters, Separate Heating Controls
- Neighbourhood: Simcoe
Room Details (17 rooms)
Listing Information
Listing History
Buy/Sell/Terminated/Expired listing history for 31 OAKWOOD AVENUE, Norfolk (Simcoe), Ontario, N3Y1H5
Location & Neighborhood
🚗 Travel times
Neighborhood Walkability
Mortgage & Cost Calculators
Nearby Homes (Within 2km)
Similar Homes
Similar Properties
No rental comparables found in this area.
Sold Comparables
Access to sold property data requires a registered and verified account with TRREB DDF integration.
Coming SoonRented Comparables
Access to rented property data requires a registered and verified account with TRREB DDF integration.
Coming Soon















