31 HEMLOCK ROAD, South Bruce Peninsula, Ontario, N0H2T0
MLS: X12923280 | House (Freehold)
$624,900










































Property Description
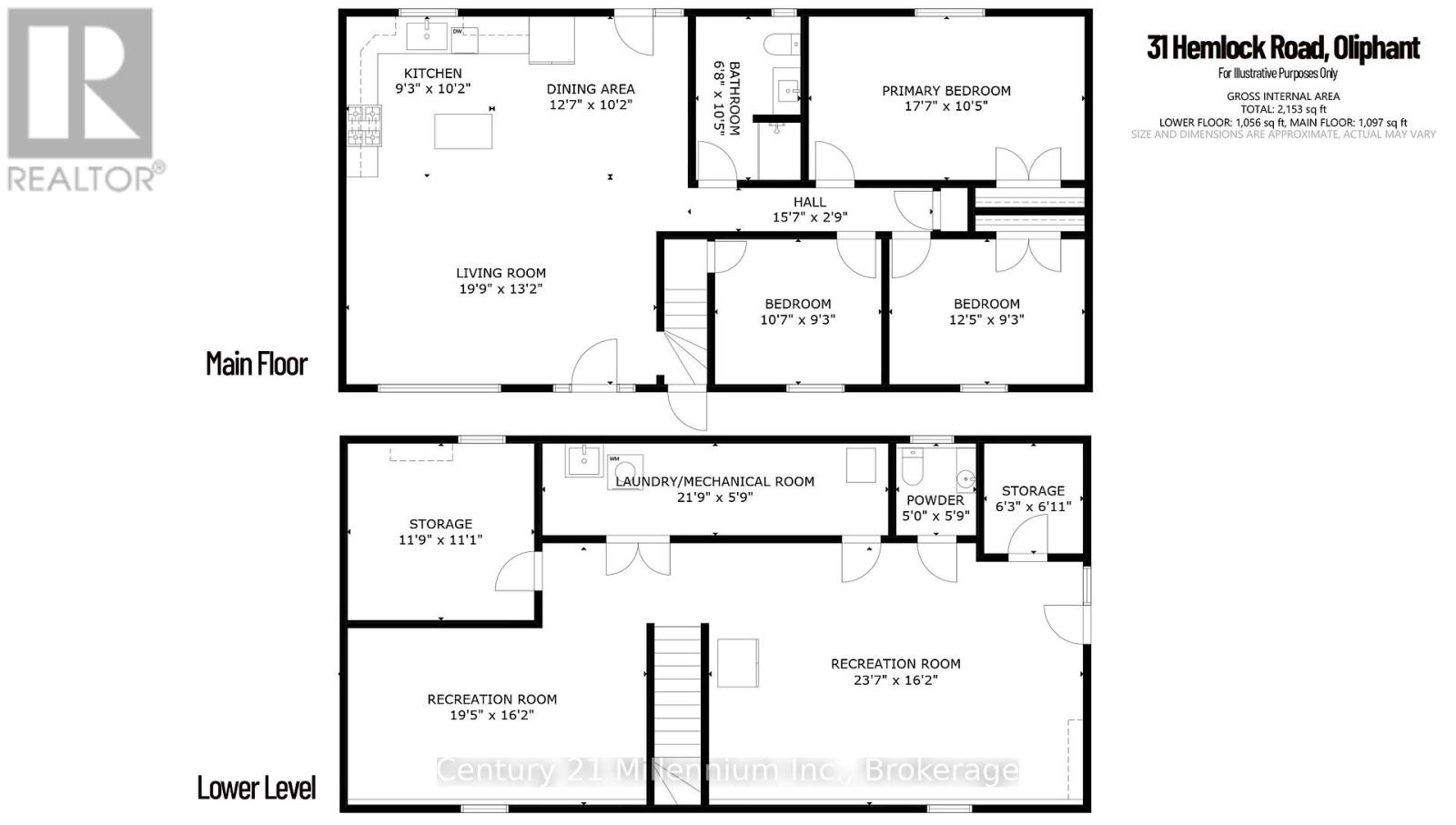
Welcome to this lovingly maintained and beautifully landscaped 3-bedroom, 1.5-bath home, ideally located in the peaceful lakeside community of Oliphant. Perfect as a year-round residence or seasonal retreat, this property offers the perfect mix of comfort, functionality, and outdoor enjoyment just minutes from the shores of Lake Huron. From the moment you arrive, you'll notice the paved driveway leading to a detached two-car garage, complemented by two additional outbuildings perfect for storage, hobbies, or workshop space. Enjoy morning coffee on the front deck and unwind on the spacious back deck, both surrounded by mature trees and thoughtfully designed gardens. Inside, the home features a bright and welcoming interior with tile floors throughout the main living areas. The kitchen is equipped with a gas stove and newer appliances, making meal prep a breeze. The open-concept layout flows easily into the dining and living areas, where the cozy atmosphere makes you feel right at home. All three bedrooms are generously sized, offering plenty of space for family or guests. The main bathroom includes a convenient walk-in shower, and there's an additional half bath for added comfort. The walk-out lower level adds significant living space with a large rec room ideal for entertaining or relaxing and a versatile bonus room that can serve as a home office, guest room, or extra storage space. For added convenience after a day at the beach or gardening, an outdoor shower is tucked around the back. Comfort is ensured year-round with central air conditioning and a propane furnace. Ideally located on a quiet street and just a short drive to Wiarton, Sauble Beach, and a variety of outdoor recreation options including boating, fishing, and hiking, this move-in ready home in Oliphant is the perfect place to create lasting memories. (id:64974)
Quick Facts
- Property Type: House (Freehold)
- Bedrooms: 3 (3 above)
- Bathrooms: 2 (1 half)
- Ownership: Freehold
- Attached: No
- Parking: 6.0 spaces (Detached Garage, Garage)
- Frontage: 118 ft (36 m)
Costs
- Annual Taxes: $2,800.00 (2025)
Listing Provided by: Century 21 Millennium Inc.
Board: OnePoint Association of REALTORS®
Data provided via CREA DDF®.
Detailed Features
Interior & Systems
- Heating: Forced air, Propane
- Cooling: Central air conditioning
- Basement: Finished, Full, Separate entrance, Walk out, N/A, N/A
- Appliances: Washer, Refrigerator, Water softener, Dishwasher, Stove, Dryer, Microwave, Water Treatment, Water Heater
- Utilities: Electricity, Cable
- Electrical: Generator
- Security: Smoke Detectors
Exterior & Construction
- Exterior: Vinyl siding
- Foundation: Concrete
- Sewer: Septic System
- Water: Drilled Well
Lot & Land
- Frontage: 118 ft (36 m)
- Features: Wooded area, Partially cleared, Flat site, Dry, Level, Sump Pump
- Zoning: R3
Community & Neighbourhood
- Community: School Bus
- Neighbourhood: South Bruce Peninsula
Listing Information
Listing History
MLS listing activity for 31 HEMLOCK ROAD, South Bruce Peninsula, Ontario, N0H2T0 — dates reflect when changes were recorded in the DDF
🚗 Travel times
Neighborhood Walkability
Mortgage & Cost Calculators
Nearby Homes ?Nearby Homes — Search CriteriaSearch Radius1 kmPrice Range±5%Match BedroomsYesMatch BathroomsYes

23 HEMLOCK ROAD, South Bruce Peninsula
House$739,000
$3,493/yr taxListing Courtesy of Century 21 Millennium Inc.

324 BRYANT STREET, South Bruce Peninsula
House$529,000
$2,917/yr taxListing Courtesy of Chestnut Park Real Estate

18 TAMARAC ROAD, South Bruce Peninsula
House$879,900
$3,545/yr taxListing Courtesy of Royal Lepage Real Estate Associates

465 SHORELINE AVENUE, South Bruce Peninsula
House$599,000
$3,689/yr taxListing Courtesy of Century 21 Millennium Inc.
Similar Homes ?Similar Homes — Search CriteriaSearch Radius5 kmPrice Range±5%Match Home TypeYesMatch BedroomsYes

77 SHORELINE AVENUE, South Bruce Peninsula
House$649,000
$2,302/yr taxListing Courtesy of Keller Williams Realty Centres

465 SHORELINE AVENUE, South Bruce Peninsula
House$599,000
$3,689/yr taxListing Courtesy of Century 21 Millennium Inc.

6 WILLOW Street Unit# 2203, Waterloo
Condo - Apartment$624,900
$4,535/yr taxListing Courtesy of RE/MAX SOLID GOLD REALTY (II) LTD.

GPH1 - 111 WORSLEY STREET, Barrie (City Centre)
Condo - Apartment$624,900
$5,929/yr taxListing Courtesy of KELLER WILLIAMS EXPERIENCE REALTY

271 - 16B ELGIN STREET, Markham (Thornhill)
Condo - Apartment$624,900
$2,093/yr taxListing Courtesy of CENTURY 21 PERCY FULTON LTD.

201 WESTBANK Trail Unit# 13, Stoney Creek
Row / Townhouse$624,900
$3,522/yr taxListing Courtesy of RE/MAX Escarpment Golfi Realty Inc.

1869 MUSKOKA 118 Road W Unit# BTW-101, Bracebridge
Condo - Apartment$624,900
$6,288/yr taxListing Courtesy of Royal LePage Burloak Real Estate Services

1103 - 40 RICHVIEW ROAD, Toronto (Humber Heights)
Condo - Apartment$624,900
$2,564/yr taxListing Courtesy of RE/MAX EXPERTS

3207 - 319 JARVIS STREET, Toronto (Moss Park)
Condo - Apartment$624,900
$4,276/yr taxListing Courtesy of CMI REAL ESTATE INC.

8A - 400 LAURIER AVENUE E, Ottawa
Condo - Apartment$624,900
$4,302/yr taxListing Courtesy of ENGEL & VOLKERS OTTAWA

37 LOCK STREET, St. Catharines (Port Dalhousie)
House$624,900
$3,802/yr taxListing Courtesy of ROYAL LEPAGE NRC REALTY

456 BLAKE BOULEVARD, Ottawa
Single Family$624,900
$3,927/yr taxListing Courtesy of ROYAL LEPAGE PERFORMANCE REALTY

D - 124 GUIGUES AVENUE, Ottawa
Condo - Row / Townhouse$624,900
$5,407/yr taxListing Courtesy of RE/MAX HALLMARK REALTY GROUP

35 MIDHURST Heights Unit# 33, Stoney Creek
Condo - Row / Townhouse$624,900
$4,510/yr taxListing Courtesy of RE/MAX Escarpment Realty Inc.

33 - 35 MIDHURST HEIGHTS, Hamilton (Stoney Creek Mountain)
Condo - Row / Townhouse$624,900
$4,510/yr taxListing Courtesy of RE/MAX ESCARPMENT REALTY INC.
Similar Properties ?Active Comparables — Search CriteriaSearch Radius2 kmPrice Range±5%Match Home TypeYesMatch BedroomsYes
No rental comparables found in this area.
Sold Comparables
Access to sold property data requires a registered and verified account with TRREB DDF integration.
Coming SoonRented Comparables
Access to rented property data requires a registered and verified account with TRREB DDF integration.
Coming SoonBook a Viewing
31 HEMLOCK ROAD, South Bruce Peninsula, Ontario, N0H2T0
