31 CHAPEL Street, Vienna, Ontario, N0J1Z0
MLS: 40808778 | House (Freehold)
$849,000











































Property Description
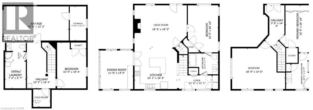
Experience the epitome of luxurious living at 31 Chapel Street, a breathtaking two-story Muskoka-style home situated in the charming community of Vienna. Spanning 2349 square feet of living space, this remarkable residence artfully combines sophisticated design with nearly two acres of pristine land along the tranquil Otter River. Upon entry, you are greeted by a spacious foyer that flows into an elegant open-concept main floor. The gourmet kitchen features stunning granite countertops and is complemented by hardwood floors that create a warm, inviting atmosphere. The grand great room serves as the heart of the home, showcasing a striking two-story stone fireplace and offering captivating views to the second-floor mezzanine. Expansive walk-out patio doors seamlessly connect the indoor space to the enchanting rear yard, making it ideal for entertaining. The main floor also boasts a sunlit dining room, surrounded by windows, and an oversized bedroom with a luxurious three-piece ensuite bathroom. On the second floor, a stunning mezzanine overlooks the great room and leads to a serene balcony, perfect for enjoying scenic vistas. This level includes a spacious guest bedroom and an opulent master suite featuring a private four-piece ensuite bathroom finished in exquisite marble. The professionally landscaped yard evokes a true Muskoka feel, providing picturesque views of the river, lush trees, and abundant wildlife. A two-story deck, complete with a soothing hot tub, creates an ideal outdoor haven for relaxation. The thoughtfully designed lower level enhances the home’s functionality, featuring upgraded cork flooring, a fourth bedroom, a cold room, a utility room, and an additional three-piece bathroom, with convenient access to the garage. This extraordinary property combines luxury, comfort, and serene living, inviting you to embrace a lifestyle enriched by nature. 31 Chapel Street is more than a residence; it is a sanctuary of elegance. (id:64974)
Quick Facts
- Property Type: House (Freehold)
- Style: 2 Level
- Bedrooms: 4 (3 above, 1 below)
- Bathrooms: 3
- Living Area: 2,608 sq ft (242.3 m²)
- Above Grade: 2,006 sq ft (186.4 m²)
- Below Grade: 602 sq ft (55.9 m²)
- Year Built: 2006
- Ownership: Freehold
- Attached: No
- Fireplaces: 1
- Parking: 10 spaces (Attached Garage)
- Lot Size: 1.7500 acres (0.71 ha)
- Frontage: 300 ft (91.4 m)
Costs
- Annual Taxes: $6,390.00
Listing Provided by: RE/MAX Twin City Realty Inc.
Board: Cornerstone Association of REALTORS®
Data provided via CREA DDF®.
Detailed Features
Interior & Systems
- Heating: Forced air, Natural gas
- Cooling: Central air conditioning
- Basement: Finished, Full
- Appliances: Washer, Refrigerator, Hot Tub, Gas stove(s), Dishwasher, Dryer, Hood Fan, Window Coverings, Microwave Built-in
- Utilities: Natural Gas, Electricity, Cable, Telephone
- Security: Smoke Detectors
Exterior & Construction
- Style: 2 Level
- Exterior: Concrete, Stucco, Shingles, Brick Veneer
- Foundation: Poured Concrete
- Sewer: Municipal sewage system
- Water: Municipal water
Lot & Land
- Lot Size: 1.7500 acres (0.71 ha)
- Frontage: 300 ft (91.4 m)
- Features: Ravine, Crushed stone driveway, Country residential, Sump Pump, Automatic Garage Door Opener, Private Yard
- View: View of water
- Zoning: A1
Community & Neighbourhood
- Community: Quiet Area
- Subdivision: Vienna
Room Details (13 rooms)
Listing Information
Listing History
Buy/Sell/Terminated/Expired listing history for 31 CHAPEL Street, Vienna, Ontario, N0J1Z0
Location & Neighborhood
🚗 Travel times
Neighborhood Walkability
Mortgage & Cost Calculators
Nearby Homes (Within 2km)
Similar Homes
Similar Properties
No rental comparables found in this area.
Sold Comparables
Access to sold property data requires a registered and verified account with TRREB DDF integration.
Coming SoonRented Comparables
Access to rented property data requires a registered and verified account with TRREB DDF integration.
Coming Soon

















