309 - 810 SCOLLARD COURT, Mississauga (East Credit), Ontario, L5V0A4
MLS: W12818604 | Apartment (Condo)
$449,900


















































Property Description
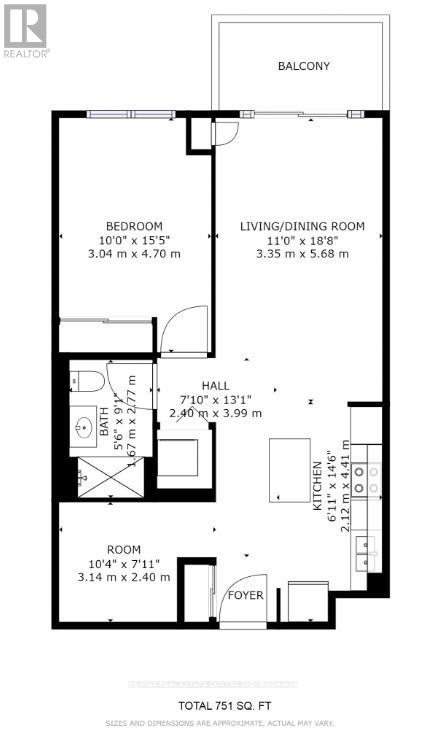
Amazing 1 Bedroom Condo with Den. This Modern and Spacious unit has been Freshly Painted, has Beautiful Laminate Flooring Thoughout and Professionally Cleaned. Large Kitchen with Full Size Fridge, Ceramic Cooktop, Built In Wall Oven, Dishwasher, Granite Counters & Upgraded Centre Island. Conveniently Located at Mavis and Eglington, This Spacious Unit Boasts Lots Of Sunlight, A Balcony, A Storage Locker and 1 Underground Parking Spot. Enjoy Over 42,000 Sqft Of Luxury Resort-Like Amenities Incl. Salt Water Indoor Pool, Full Service Spa, Private Restaurants, Fine Dining, Bowling Alley, Games & Crafts Rooms, 50's Diner, Library, Coffee Shop, General Store, 24 Hour Concierge, And Much, Much More! A Truly Exceptional Offering. (id:64974)
Quick Facts
- Property Type: Apartment (Condo)
- Bedrooms: 2 (1 above, 1 below)
- Bathrooms: 1
- Ownership: Condo/Strata
- Attached: Yes
- Parking: 1 space (Garage, Underground)
Costs
- Annual Taxes: $2,894.82
- Condo/HOA Fee: $713.55 / monthly
- Corp: First Service Residential - 416.901.6793
- Includes: Common Area Maintenance, Heat, Water, Insurance, Parking
Listing Provided by: RE/MAX REAL ESTATE CENTRE INC.
Board: Toronto Regional Real Estate Board
Data provided via CREA DDF®.
Detailed Features
Interior & Systems
- Heating: Forced air, Natural gas
- Cooling: Central air conditioning
- Basement: None
- Appliances: Washer, Refrigerator, Dishwasher, Range, Oven, Dryer, Cooktop, Oven - Built-In
Exterior & Construction
- Exterior: Concrete, Brick
Lot & Land
- Features: Balcony, Carpet Free
- Zoning: RM7D5
Community & Neighbourhood
- Community: Pets Allowed With Restrictions
- Building: Storage - Locker, Separate Electricity Meters
- Neighbourhood: East Credit
Room Details (5 rooms)
Listing Information
Listing History
Buy/Sell/Terminated/Expired listing history for 309 - 810 SCOLLARD COURT, Mississauga (East Credit), Ontario, L5V0A4
Location & Neighborhood
🚗 Travel times
Neighborhood Walkability
Mortgage & Cost Calculators
Nearby Homes (Within 2km)
Similar Homes
Similar Properties
No rental comparables found in this area.
Sold Comparables
Access to sold property data requires a registered and verified account with TRREB DDF integration.
Coming SoonRented Comparables
Access to rented property data requires a registered and verified account with TRREB DDF integration.
Coming Soon























