308 - 600 ALDEN ROAD, Markham (Milliken Mills East), Ontario, L3R0E7
MLS: N12925508 | Offices
$4,950 / monthly


Property Description
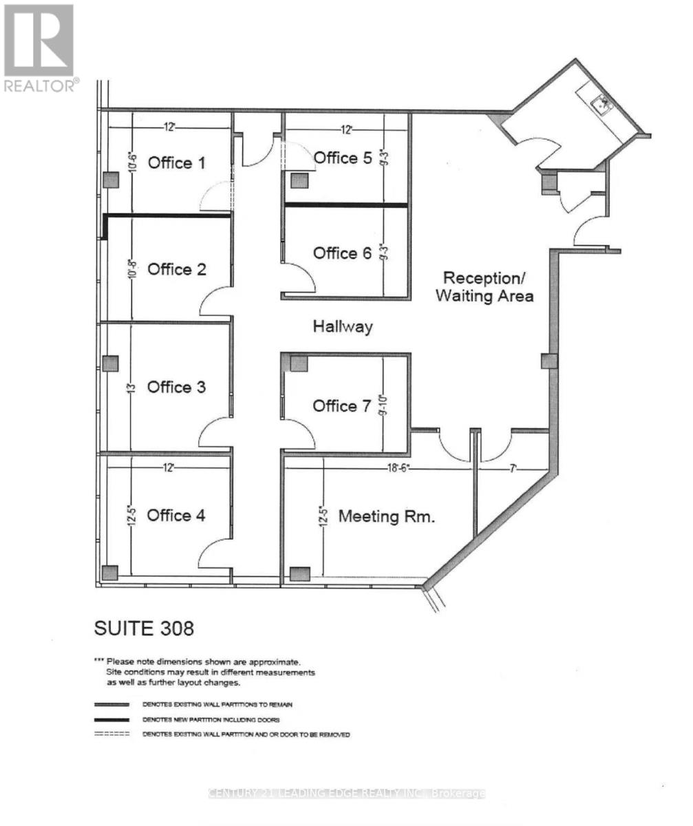
Very Bright, Nicely Appointed Space With A Mix Of Private Offices, Meeting Rooms, Kitchen And Reception. The Building Offers Free Underground And Surface Parking. TTC & YRT Access Just Outside The Building. Easily Accessible With Full Interchange At Warden And Highway 407. List Price Subject To Increase Over The Term. (id:64974)
Quick Facts
- Property Type: Offices
- Bedrooms: None
- Bathrooms: None
- Living Area: 2,619 sq ft (243.3 m²)
Listing Provided by: CENTURY 21 LEADING EDGE REALTY INC.
Board: Toronto Regional Real Estate Board
Data provided via CREA DDF®.
Detailed Features
Interior & Systems
- Heating: Forced air, Natural gas
- Cooling: Fully air conditioned
Exterior & Construction
- Water: Municipal water
Lot & Land
- Features: Elevator
- Zoning: Office
Community & Neighbourhood
- Neighbourhood: Milliken Mills East
Listing Information
Listing History
MLS listing activity for 308 - 600 ALDEN ROAD, Markham (Milliken Mills East), Ontario, L3R0E7 — dates reflect when changes were recorded in the DDF
🚗 Travel times
Neighborhood Walkability
Mortgage & Cost Calculators
Nearby Homes ?Nearby Homes — Search CriteriaSearch Radius1 kmPrice Range±5%Match BedroomsYesMatch BathroomsYes

216 - 570 ALDEN ROAD, Markham (Milliken Mills West)
OfficesContact for Price
$4/yr taxListing Courtesy of ROYAL LEPAGE TERREQUITY REALTY

21 - 570 HOOD ROAD, Markham (Milliken Mills West)
Offices$4,200/mo
$3,656/yr taxListing Courtesy of KELLER WILLIAMS REALTY CENTRES

406 & 407 - 3950 14TH AVENUE, Markham (Milliken Mills West)
Offices$1,450,000
$8,991/yr taxListing Courtesy of RE/MAX EXCEL REALTY LTD.

406 - 3950 14TH AVENUE, Markham (Milliken Mills West)
Offices$750,000
$4,496/yr taxListing Courtesy of RE/MAX EXCEL REALTY LTD.

407 - 3950 14TH AVENUE, Markham (Milliken Mills West)
Offices$720,000
$4,496/yr taxListing Courtesy of RE/MAX EXCEL REALTY LTD.

603 - 3950 14TH AVENUE, Markham (Milliken Mills West)
Offices$399,000
$4,099/yr taxListing Courtesy of REMAX YOUR COMMUNITY REALTY

604 - 3950 14TH AVENUE, Markham (Milliken Mills West)
Offices$699,000
$4,869/yr taxListing Courtesy of REMAX YOUR COMMUNITY REALTY

603/604 - 3950 14TH AVENUE, Markham (Milliken Mills West)
Offices$1
$8,968/yr taxListing Courtesy of REMAX YOUR COMMUNITY REALTY

205 - 7550 BIRCHMOUNT ROAD, Markham (Milliken Mills West)
Offices$3,600/mo
Listing Courtesy of HOMELIFE GOLCONDA REALTY INC.
Similar Homes ?Similar Homes — Search CriteriaSearch Radius5 kmPrice Range±5%Match Home TypeYesMatch BedroomsYes

204 - 178 MAIN ST. UNIONVILLE STREET, Markham (Unionville)
Offices$5,000/mo
Listing Courtesy of CENTURY 21 LEADING EDGE REALTY INC.

3 - 237 ROMINA ROAD, Vaughan (Concord)
Offices$4,950/mo
Listing Courtesy of ROYAL LEPAGE SIGNATURE REALTY

13 - 680 REXDALE BOULEVARD, Toronto (West Humber-Clairville)
Offices$4,950/mo
$16/yr taxListing Courtesy of TARGET WEST REALTY INC.

7 - 1200 DERRY ROAD E, Mississauga (Northeast)
Offices$4,998/mo
$12,477/yr taxListing Courtesy of COLDWELL BANKER SUN REALTY

9 - 2565 STEELES AVENUE E, Brampton (Steeles Industrial)
Offices$4,900/mo
$9,224/yr taxListing Courtesy of RE/MAX SKYWAY REALTY INC.

ATRIUM - 28 PRINCESS AVENUE, St. Thomas
Offices$5,000/mo
$4/yr taxListing Courtesy of CENTURY 21 FIRST CANADIAN CORP

700 - 119 SPADINA AVENUE, Toronto (Waterfront Communities)
Offices$5,000/mo
$20/yr taxListing Courtesy of KELLER WILLIAMS REFERRED URBAN REALTY

259 DIVISION STREET, Cobourg
Offices$5,008/mo
Listing Courtesy of CENTURY 21 UNITED REALTY INC.

516 - 130 QUEENS QUAY E, Toronto (Waterfront Communities)
Offices$4,816/mo
$11,616/yr taxListing Courtesy of FOREST HILL REAL ESTATE INC.

3 - 5 BOBCAYGEON ROAD, Minden Hills (Lutterworth)
Offices$4,800/mo
$9,946/yr taxListing Courtesy of Royal LePage Meadowtowne Realty Inc., Brokerage

344C - 344 LAKESHORE ROAD E, Oakville (OO Old Oakville)
Offices$4,800/mo
Listing Courtesy of RE/MAX ABOUTOWNE REALTY CORP.

300 - 226 BATHURST STREET, Toronto (Trinity-Bellwoods)
Offices$5,129/mo
Listing Courtesy of FOREST HILL REAL ESTATE INC.

UNIT A/B - 65 MELFORD DRIVE, Toronto (Malvern)
Offices$4,750/mo
Listing Courtesy of INTERCITY REALTY INC.

7 - 945 3RD AVENUE E, Owen Sound
Offices$4,737/mo
Listing Courtesy of Chestnut Park Real Estate

200 SUITE 34,35,36,36A - 350 BURNHAMTHORPE ROAD W, Mississauga (City Centre)
Offices$4,715/mo
Listing Courtesy of FOREST HILL REAL ESTATE INC.
Similar Properties ?Active Comparables — Search CriteriaSearch Radius2 kmPrice Range±5%Match Home TypeYesMatch BedroomsYes

204 - 178 MAIN ST. UNIONVILLE STREET, Markham (Unionville)
Offices$5,000/mo
Listing Courtesy of CENTURY 21 LEADING EDGE REALTY INC.

3 - 237 ROMINA ROAD, Vaughan (Concord)
Offices$4,950/mo
Listing Courtesy of ROYAL LEPAGE SIGNATURE REALTY

13 - 680 REXDALE BOULEVARD, Toronto (West Humber-Clairville)
Offices$4,950/mo
$16/yr taxListing Courtesy of TARGET WEST REALTY INC.

7 - 1200 DERRY ROAD E, Mississauga (Northeast)
Offices$4,998/mo
$12,477/yr taxListing Courtesy of COLDWELL BANKER SUN REALTY

9 - 2565 STEELES AVENUE E, Brampton (Steeles Industrial)
Offices$4,900/mo
$9,224/yr taxListing Courtesy of RE/MAX SKYWAY REALTY INC.

ATRIUM - 28 PRINCESS AVENUE, St. Thomas
Offices$5,000/mo
$4/yr taxListing Courtesy of CENTURY 21 FIRST CANADIAN CORP

700 - 119 SPADINA AVENUE, Toronto (Waterfront Communities)
Offices$5,000/mo
$20/yr taxListing Courtesy of KELLER WILLIAMS REFERRED URBAN REALTY

259 DIVISION STREET, Cobourg
Offices$5,008/mo
Listing Courtesy of CENTURY 21 UNITED REALTY INC.

516 - 130 QUEENS QUAY E, Toronto (Waterfront Communities)
Offices$4,816/mo
$11,616/yr taxListing Courtesy of FOREST HILL REAL ESTATE INC.

3 - 5 BOBCAYGEON ROAD, Minden Hills (Lutterworth)
Offices$4,800/mo
$9,946/yr taxListing Courtesy of Royal LePage Meadowtowne Realty Inc., Brokerage

344C - 344 LAKESHORE ROAD E, Oakville (OO Old Oakville)
Offices$4,800/mo
Listing Courtesy of RE/MAX ABOUTOWNE REALTY CORP.

300 - 226 BATHURST STREET, Toronto (Trinity-Bellwoods)
Offices$5,129/mo
Listing Courtesy of FOREST HILL REAL ESTATE INC.

UNIT A/B - 65 MELFORD DRIVE, Toronto (Malvern)
Offices$4,750/mo
Listing Courtesy of INTERCITY REALTY INC.

7 - 945 3RD AVENUE E, Owen Sound
Offices$4,737/mo
Listing Courtesy of Chestnut Park Real Estate

200 SUITE 34,35,36,36A - 350 BURNHAMTHORPE ROAD W, Mississauga (City Centre)
Offices$4,715/mo
Listing Courtesy of FOREST HILL REAL ESTATE INC.
No rental comparables found in this area.
Sold Comparables
Access to sold property data requires a registered and verified account with TRREB DDF integration.
Coming SoonRented Comparables
Access to rented property data requires a registered and verified account with TRREB DDF integration.
Coming SoonBook a Viewing
308 - 600 ALDEN ROAD, Markham (Milliken Mills East), Ontario, L3R0E7
