307 GILMOUR STREET, Ottawa, Ontario, K2P0P7
MLS: X12520114 | Offices
$2,750,000













































Property Description
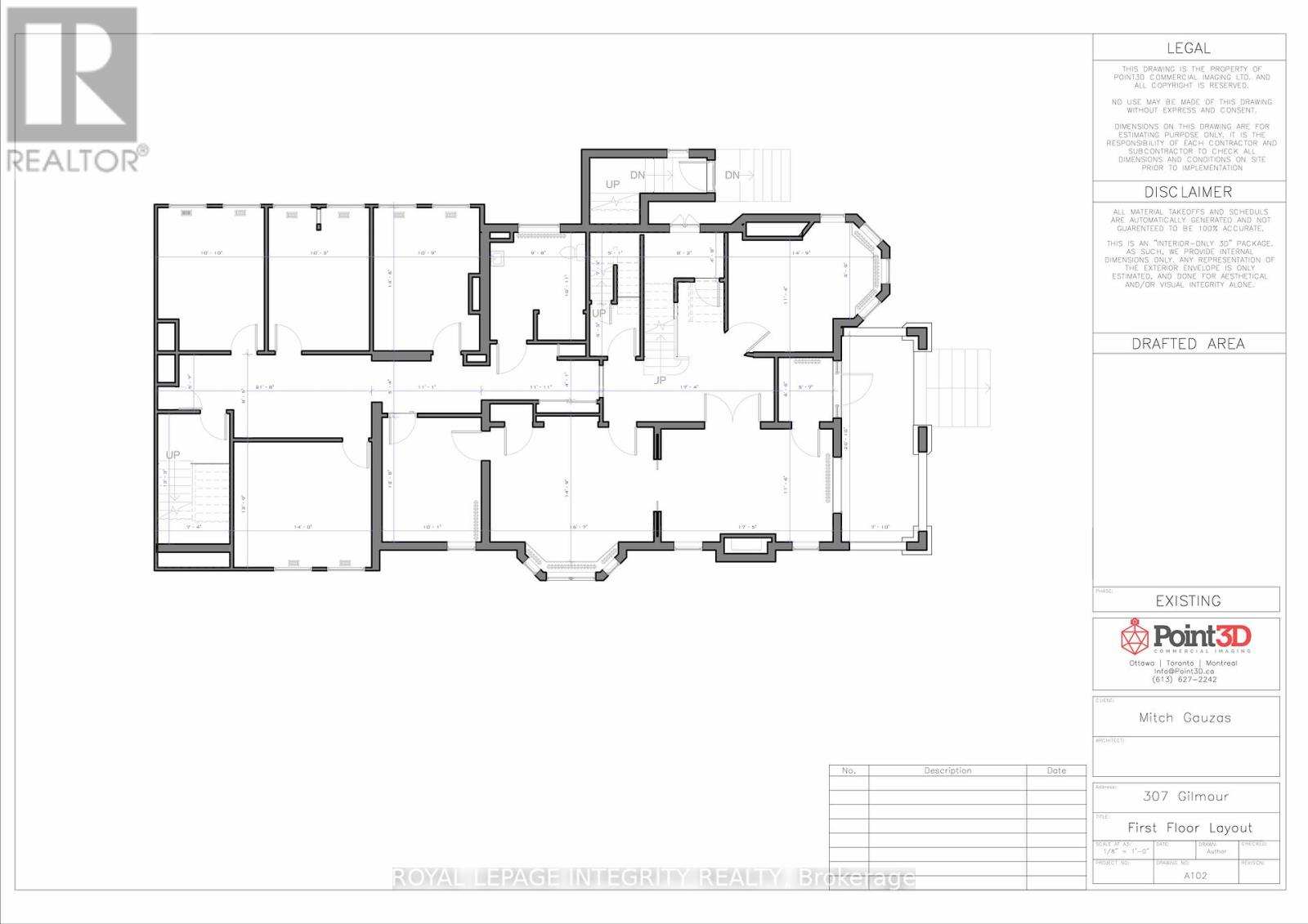
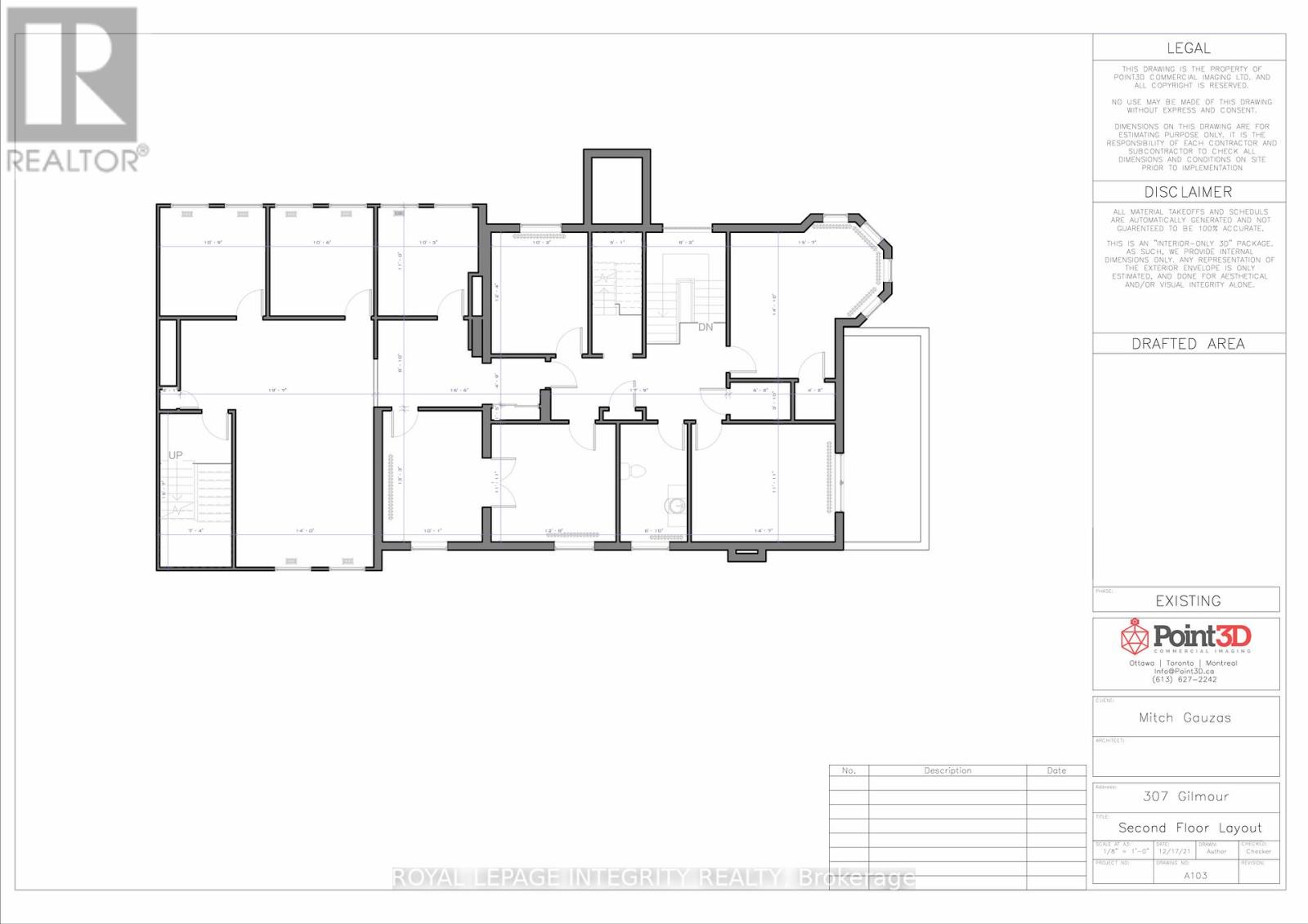
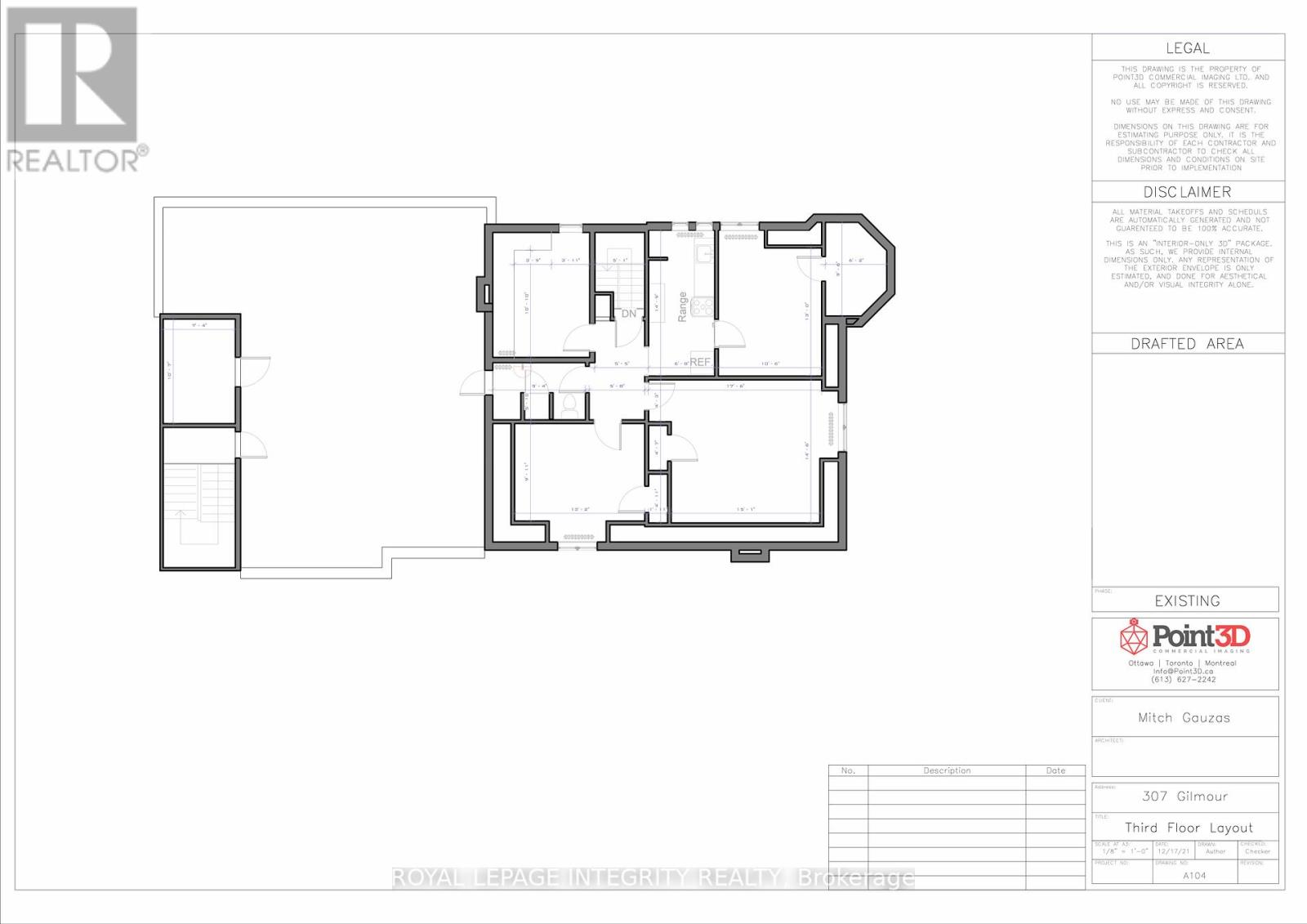
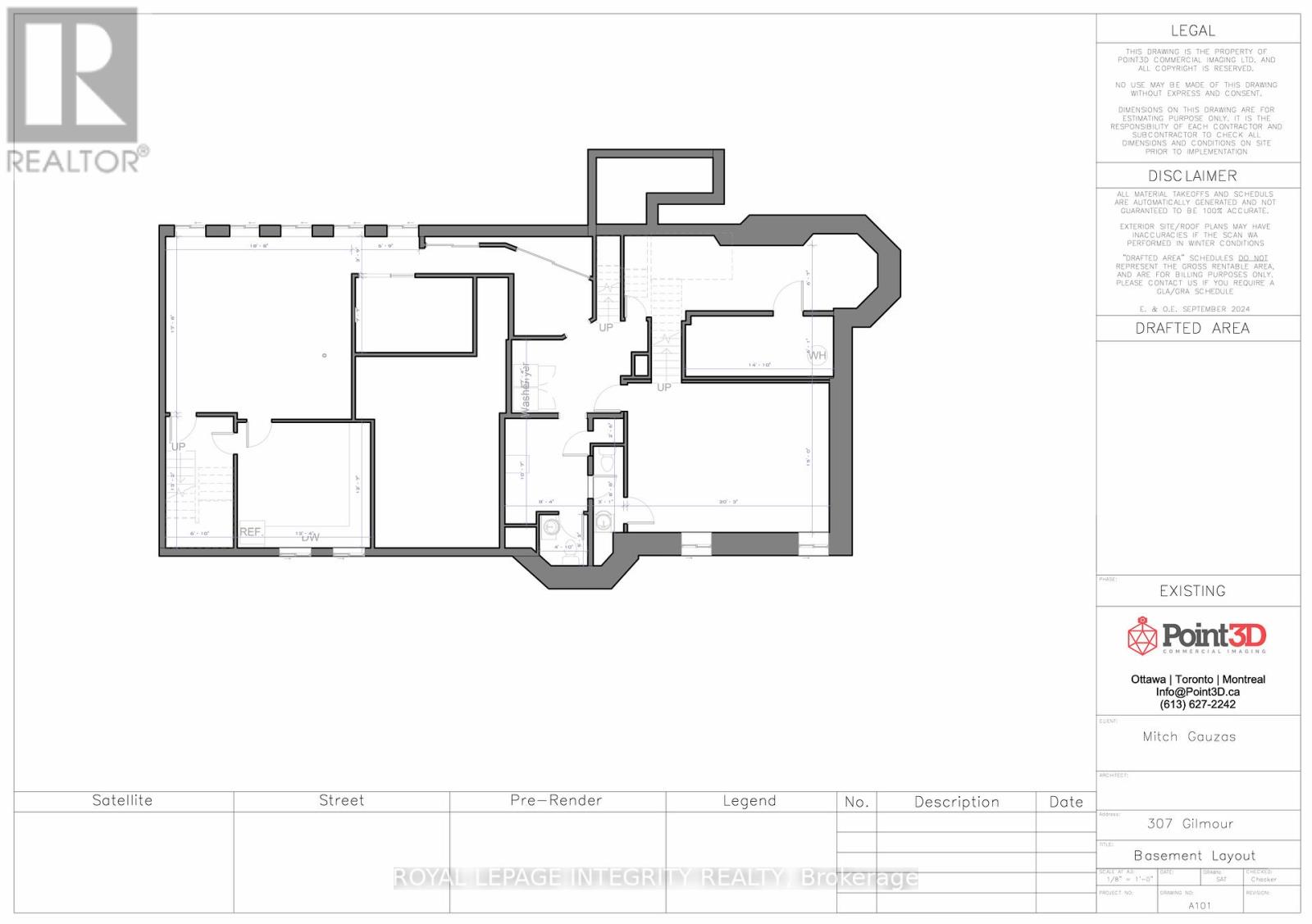
Prime Downtown Ottawa Office Building for Sale. An exceptional opportunity for an owner-user or investor in the heart of downtown Ottawa. This standalone office building will be delivered vacant on closing as the current owner-occupier is relocating. The property is zoned for a wide range of commercial uses including diplomatic missions and medical offices, and also presents an excellent urban redevelopment opportunity. Existing zoning permits a building height of up to 23 meters, allowing for a mixed-use residential mid-rise with ground-floor retail. The building is BOMA-certified with 6,863 sq. ft. of usable/rentable area on a generously sized lot featuring 12 parking spaces. The main floor offers 1,701 sq. ft. with a reception area, boardroom, six enclosed offices, and a washroom. The second floor measures 2,029 sq. ft. and includes eight enclosed offices, an open bullpen area, and a washroom. The third floor includes four offices, a kitchenette, and access to the flat roof.Ideally situated within walking distance of the Elgin Street Courthouse, City Hall, and Parliament Hill, the property offers unbeatable accessibility. With a Walk Score of 100, Transit Score of 87, and Bike Score of 99, it is one of Ottawa's most connected urban addresses. Whether you are seeking a turn-key office building or a prime redevelopment site, this property offers exceptional potential and flexibility. (id:64974)
Quick Facts
- Property Type: Offices
- Bedrooms: None
- Bathrooms: 3
- Living Area: 6,863 sq ft (637.6 m²)
- Parking: 12 spaces
- Frontage: 88 ft (26.8 m)
Costs
- Annual Taxes: $19,576.58 (2025)
Listing Provided by: ROYAL LEPAGE INTEGRITY REALTY
Board: Ottawa Real Estate Board
Data provided via CREA DDF®.
Detailed Features
Interior & Systems
- Heating: Forced air, Natural gas
- Cooling: Fully air conditioned
Exterior & Construction
- Water: Municipal water
Lot & Land
- Frontage: 88 ft (26.8 m)
- Zoning: N5B[479] H(23) Mature Neighbourhood Overlay
Community & Neighbourhood
- Neighbourhood: 4103 - Ottawa Centre
Listing Information
Listing History
Buy/Sell/Terminated/Expired listing history for 307 GILMOUR STREET, Ottawa, Ontario, K2P0P7
Location & Neighborhood
🚗 Travel times
Neighborhood Walkability
Mortgage & Cost Calculators
Nearby Homes (Within 2km)
Similar Homes
Similar Properties
No rental comparables found in this area.
Sold Comparables
Access to sold property data requires a registered and verified account with TRREB DDF integration.
Coming SoonRented Comparables
Access to rented property data requires a registered and verified account with TRREB DDF integration.
Coming Soon
































